Fot. Hertha Hurnaus | Arch. Atelier Gitterle

nowoczesna rezydencjaw winnicy

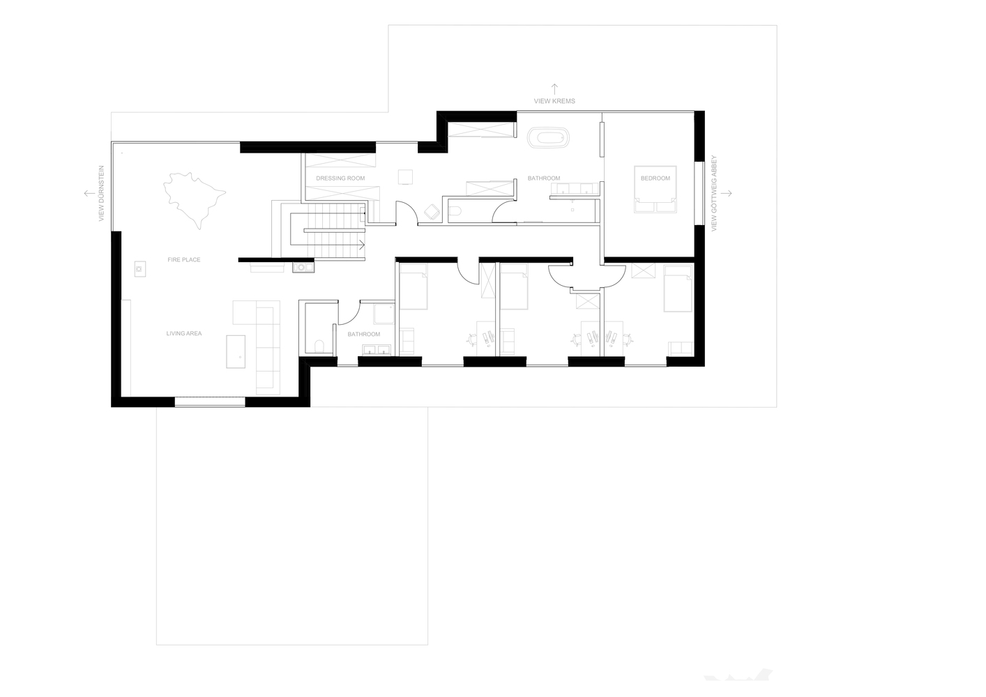
Ta przestronna, jednorodzinna rezydencja, która znajduje się w mieście Krems an der Donau w Austrii, została zaprojektowana w 2018 roku przez firmę Atelier Gitterle.

Fot. Hertha Hurnaus | Arch. Atelier Gitterle

Klienci oczekiwali, że architekci stworzą dla nich dom rodzinny, który będzie obejmował również biuro dla otwieranej przez nich firmy kosmetycznej. Lokalizacja budynku w centrum winnicy została wybrana bardzo świadomie, ponieważ młoda firma produkuje kosmetyki z produktów pochodzących właśnie z tej winnicy.

Fot. Hertha Hurnaus | Arch. Atelier Gitterle

Budynek został doskonale osadzony w topografii nieruchomości, ukazując też wspaniałe dziedzictwo kulturowe miasta, w tym jego piękny zamek Dürnstein oraz opactwo Göttweig. Biura firmy zwrócone są w stronę ulicy i mają osobne wejście oraz dostęp do magazynu. Po przeciwnej stronie domu znajdują się przestrzenie prywatne.Ogromne okna sprawiają, że pomieszczenia zalane są naturalnym światłem i doskonale łączą się z otaczającą dom winnicą. Przeszklenia zostały starannie zaplanowane tak, by otwierały się na krajobrazy, ale jednocześnie zapewniały mieszkańcom odpowiednią prywatność.

Fot. Hertha Hurnaus | Arch. Atelier Gitterle

Prosty projekt rezydencji został połączony z ekologicznymi materiałami budowlanymi, by sprostać założeniom całej filozofii życiowej właścicieli. Konstrukcja powstała z drewna, ocieplenie to ekologiczne włókna drzewne, a elewacja również została wykonana z odpowiednio pozyskanych materiałów drewnianych. Część dachu, która kryje pomieszczenia dla gości lub partnerów biznesowych, została zaprojektowana jako zielony dach.