Fot. Aldo Amoretti | Arch. Archisbang

nowoczesna renowacja z zachowaniemoryginalnych elementów

Włoskie studio Archisbang przekształciło wiejski dom pod Turynem w pensjonat. Pensjonat o nazwie We Rural położony jest w miejscowości Poirino i oferuje szereg udogodnień dla gości oraz przestrzeń do organizacji imprez.

Architekci przyjęli podejście zakładające „nieingerencję” w budynek, przed którym stały duże ceglane kolumny, tworząc szereg strukturalnie niezależnych elementów wspierających jego nowe zastosowania. „Zamierzaliśmy wejść na palcach” mówi współzałożycielka studia Silvia Minutolo. „Współczesna interwencja musi radykalnie się wyróżniać, ale jednocześnie prowadzić dialog z istniejącym budynkiem”.

Fot. Aldo Amoretti | Arch. Archisbang

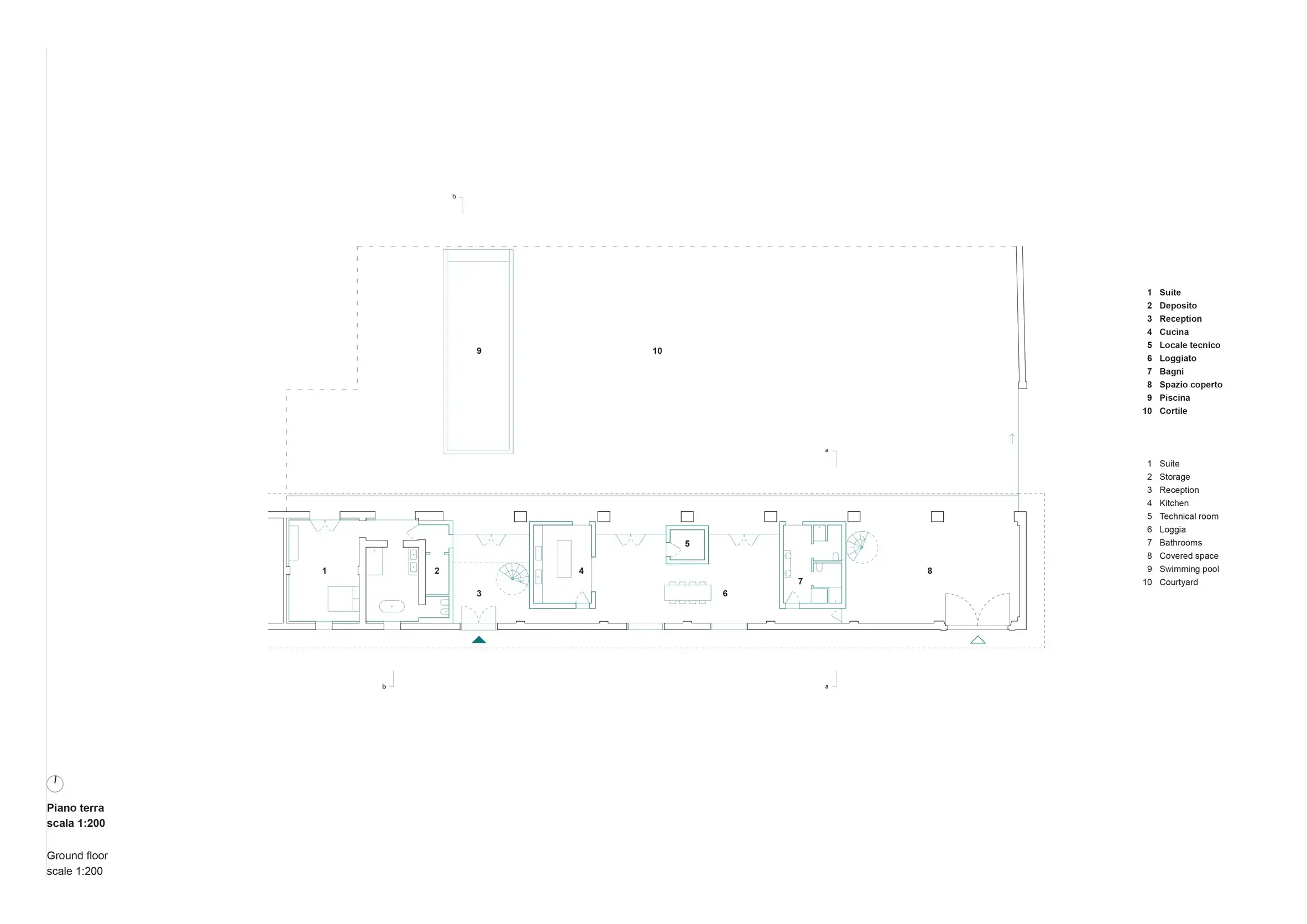
Do We Rural wchodzi się od południa. Zamkniętą i solidną fasadę zaktualizowano za pomocą szeregu otworów w stalowej ramie zapewniających niezależny dostęp do różnych przestrzeni. Po wejściu do środka pokoje zorientowano na północ, z widokiem na duży dziedziniec i basen. Pomieszczenia te powstały w oparciu o wymiary istniejących otworów wychodzących na północ. Zbudowano je w całości z drewna, aby ułatwić ich demontaż lub przebudowę w przyszłości.

Fot. Aldo Amoretti | Arch. Archisbang

Na przemian z blado otynkowanymi ścianami tych drewnianych wstawek znajduje się seria pełnowymiarowych okien i drzwi z poliwęglanu. Zapewniają one większą prywatność w niektórych pomieszczeniach, jednocześnie przepuszczając światło północne. Na wschodnim krańcu domu istniejącą przestrzeń pozostawiono otwartą, z czarnymi spiralnymi schodami prowadzącymi do sali gimnastycznej na pierwszym piętrze. Od zachodu drugie kręcone schody zapewniają dostęp do trzech sypialni, połączonych podwyższonym chodnikiem, który przecina recepcję poniżej.

Odsłonięta cegła oryginalnego budynku ożywia wnętrza, kontrastując z gładkim tynkiem, kamiennymi podłogami oraz czarną stalową konstrukcją i wyposażeniem.