Arch. SYSTEM RECOVERY ARCHITECTS

Kompaktowa oaza wczeskim krajobrazie chronionym

Ten drewniany dom w lesie został zaprojektowany z myślą o parze szukającej ucieczki od miejskiego zgiełku i szybkiego tempa życia w Pradze. Ich celem było stworzenie małego domu wakacyjnego – minimalistycznego, ale w pełni funkcjonalnego – w wyjątkowej lokalizacji: w sercu chronionego krajobrazu Křivoklátsko, w pobliżu wsi Žloukovice. Miejsce to ma bogatą historię – w latach powojennych powstała tu leśna osada złożona z małych chatek budowanych przez młodych ludzi z ruchu inspirowanego filozofią E.T. Setona. Działka, na której powstał dom, znajduje się właśnie na terenie tej wyjątkowej osady.

Arch. SYSTEM RECOVERY ARCHITECTS

Zgodnie z restrykcyjnymi przepisami obowiązującymi na obszarach chronionych, projekt musiał spełniać szereg warunków dotyczących m.in. kąta nachylenia dachu, rodzaju elewacji i rozmiaru zabudowy. Architekci stworzyli prosty dom z drewna z dwuspadowym dachem, idealnie wpisujący się w krajobraz. Dzięki dużym przeszkleniom w salonie i kuchni, przestrzeń otwiera się zarówno na południowy, jak i północny las, dając poczucie bycia zanurzonym w naturze. Panoramiczne okna działają jak żywe obrazy, zmieniające się wraz z porami roku. Jedno z okien można całkowicie wsunąć w ścianę, dzięki czemu granica między wnętrzem a tarasem całkowicie się zaciera – to charakterystyczna cecha, jaką często oferuje nowoczesna stodoła.

Arch. SYSTEM RECOVERY ARCHITECTS

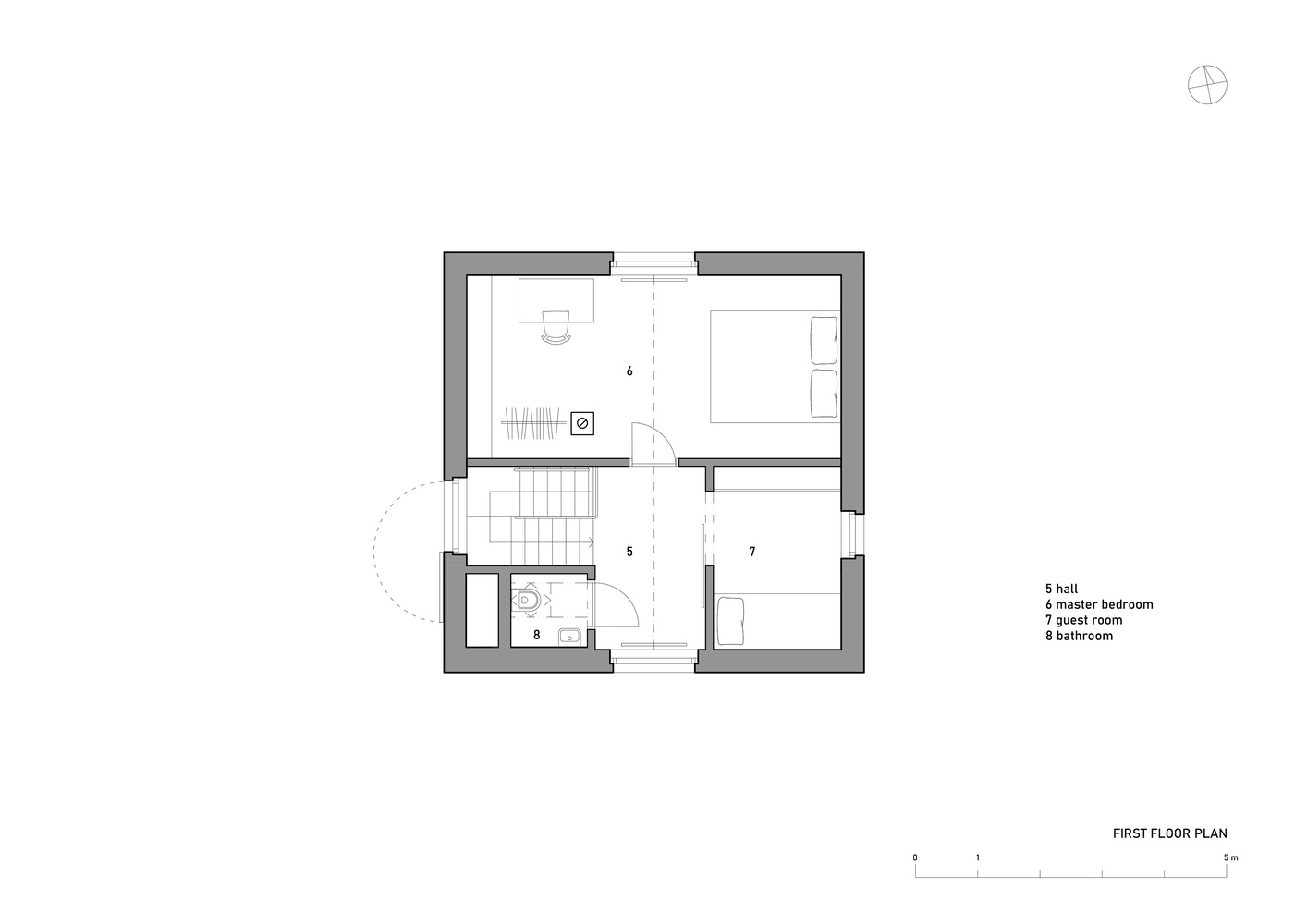
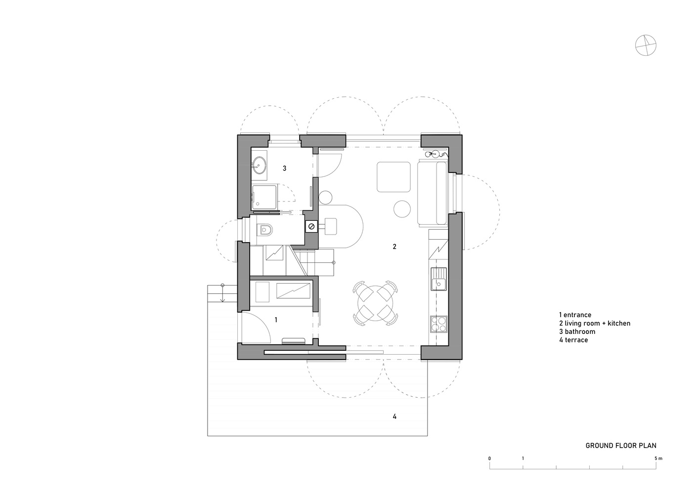
Powierzchnia zabudowy tego kompaktowego domu letniskowego to zaledwie 6,75 x 6,75 metra. Mimo skromnych rozmiarów, przestrzeń została optymalnie zaplanowana – dom oferuje komfortowy salon, kuchnię, łazienkę oraz sypialnię na poddaszu, a także miejsce do spania dla gości. Prefabrykowane panele drewniane pozwoliły na szybki montaż konstrukcji w jeden dzień, a elewacja z modrzewia o zmiennej szerokości nadaje całości naturalny i współczesny charakter. Wnętrze wykończono olejowanym świerkiem, tradycyjnie używanym przez lokalnych osadników. Na szczególną uwagę zasługują także elementy stolarki wykonywane na zamówienie, a także okiennice ze stalowych ram i perforowanej blachy, zapewniające bezpieczeństwo i estetykę. Całość ogrzewana jest klasycznym kominkiem żeliwnym, co dodatkowo podkreśla przytulny, rustykalny charakter domu.