Fot. ANDREW BEZUGLOV | Arch. Karlikova Architects

Willa w lesie świerkowymnad wodą

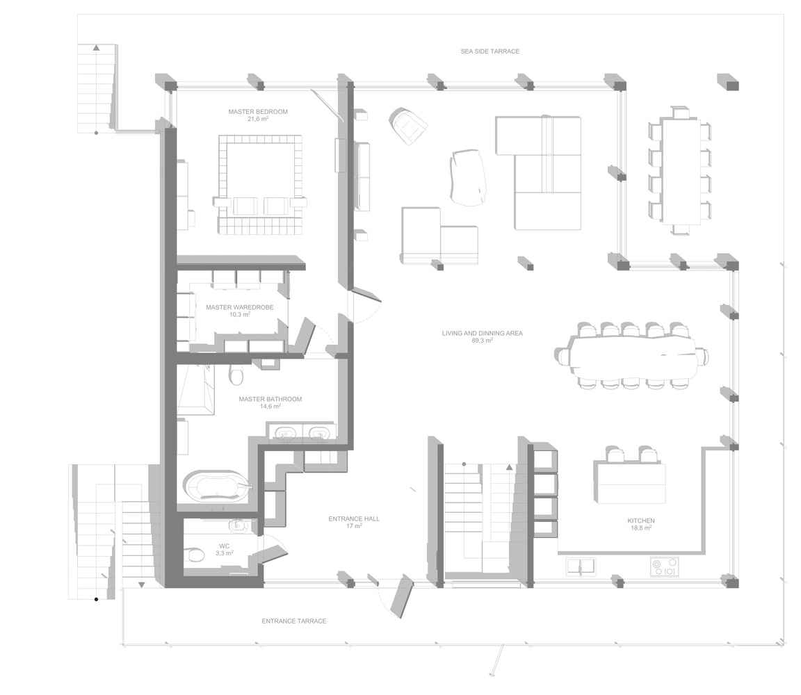
Wood and Glass Villa to podmiejska willa położona w malowniczym lesie świerkowym nad brzegiem kijowskiego zbiornika wodnego. Ten nowoczesny dom o powierzchni 590 m² został zaprojektowany z myślą o gościach i celebracji – to miejsce, które ma tętnić życiem, dźwiękami śmiechu i spotkań. Wnętrza otwierają się na przepiękne widoki – sypialnie wychodzą na wodę, a kuchnia i korytarze mają okna skierowane w stronę lasu. Inspiracją dla architektury był bawarski chalet, bliski właścicielowi, jednak forma została uproszczona – przypominając nowoczesną stodołę, w której natura i światło odgrywają główną rolę.

Fot. ANDREW BEZUGLOV | Arch. Karlikova Architects

Dom powstał z wykorzystaniem prefabrykatów, co pozwoliło na szybkie tempo realizacji oraz wysoką jakość wykonania – konstrukcja zajęła zaledwie tydzień. Dzięki dużej różnicy poziomów terenu, powstała piwnica z przestrzenią garażową, która może służyć również jako strefa imprezowa. Jednym z najbardziej wymagających elementów projektu były schody konsolowe – oddzielone konstrukcyjnie od piwnicy oraz drewnianej płyty, wymagały kilku modyfikacji już na etapie montażu. Cała realizacja domu, od rozpoczęcia budowy po oddanie do użytku, trwała około roku.

Fot. ANDREW BEZUGLOV | Arch. Karlikova Architects

We wnętrzach dominuje naturalne drewno dopasowane kolorystycznie do świerków otaczających działkę, a podłogi odwzorowują wzór kory. Kolorystyka jest stonowana i neutralna – dzięki temu centralnym punktem pozostaje krajobraz za oknami. Willa ma dwa wejścia – z piwnicy i z salonu. Przestronna kuchnia, jadalnia z dużym świetlikiem dachowym i salon z widokiem na wodę zapewniają komfort oraz wrażenie przestrzeni, mimo standardowej wysokości 270 cm. Parter obejmuje również główną sypialnię z prywatną łazienką i garderobą, a na piętrze znajdują się cztery sypialnie gościnne, dwie łazienki, garderoba oraz otwarty gabinet z widokiem na zbiornik wodny. To idealna luksusowa willa dla tych, którzy szukają wyjątkowego miejsca blisko natury.