Fot. Martin Karšňák | Arch. Jaro Krobot architekt
  • Architekt

    Jaro Krobot architekt
  • Fotograf

    Martin Karšňák
  • Lokalizacja

    Lucatín, Słowacja

Architektura wsłowackim krajobrazie

Wooden Brick House to ekologiczny dom jednorodzinny o powierzchni 93 m², zlokalizowany w malowniczej wiosce Lucatín, w środkowej części Słowacji. Budynek stanął w miejscu starej, zdegradowanej struktury, która nie nadawała się do remontu. Co ważne, część materiałów uzyskanych z rozbiórki wykorzystano ponownie w nowej realizacji, co doskonale wpisuje się w założenia zrównoważonego projektowania i szacunku dla lokalnych zasobów.

Fot. Martin Karšňák | Arch. Jaro Krobot architekt

Wcześniej w tym miejscu znajdowała się tradycyjna stodoła, która została rozebrana, aby stworzyć przestrzeń pod nowy dom. Jej ślady są jednak wciąż obecne – zarówno symbolicznie, jak i materialnie – poprzez odzyskane drewno, użyte w nowym budynku i pobliskich realizacjach. Architekci podkreślają, że największym wyzwaniem projektu było pogodzenie miejscowych przepisów budowlanych z troską o delikatne środowisko naturalne tego regionu.

Fot. Martin Karšňák | Arch. Jaro Krobot architekt

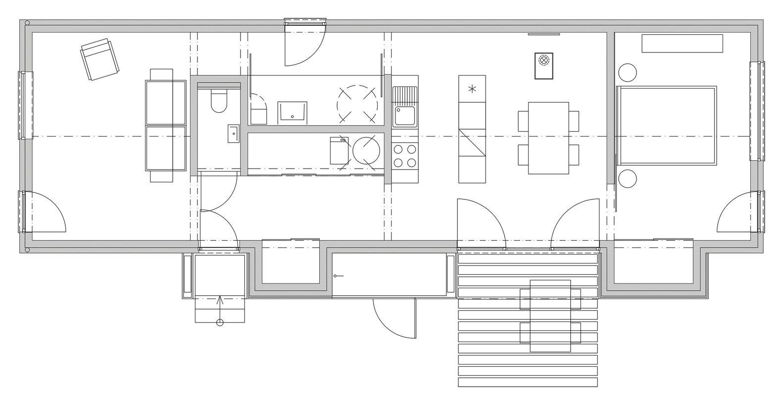
Efektem jest dom niemal w całości wykonany z drewna – konstrukcja szkieletowa, drewniane elewacje i ciepłe, naturalne wykończenia wnętrz. Powściągliwa bryła i wykorzystane materiały przywodzą na myśl nowoczesną stodołę, wpisującą się w krajobraz, zamiast go dominować. Wnętrza urządzono w ciepłych odcieniach drewna, przełamanych bielą i kontrastującą, ciemną podłogą. Duże drewniane belki stropowe zostały celowo odsłonięte, by podkreślić rzemieślniczy charakter konstrukcji i dodać przestrzeni głębi. Ze względu na ograniczoną szerokość budynku, funkcje dzienne ułożono sekwencyjnie – od lewej znajdują się salon, łazienka i pralnia, dalej otwarta kuchnia z jadalnią, a na końcu sypialnia z dużą zabudowaną szafą. Mniejsze wnęki i przestrzenie zostały efektywnie zagospodarowane jako schowki i przestrzeń do przechowywania, co czyni dom wyjątkowo funkcjonalnym mimo niewielkiego metrażu.

Fot. Martin Karšňák | Arch. Jaro Krobot architekt

Wooden Brick House to minimalistyczna, energooszczędna rezydencja, która łączy ekologiczne podejście, naturalne materiały i tradycję wiejskiej zabudowy w świeżej, nowoczesnej odsłonie.