Fot. ALBERT VECERKA/ESTO | Arch. ANDREW FRANZ ARCHITECT

Luksusowy apartamentw dawnym magazynie

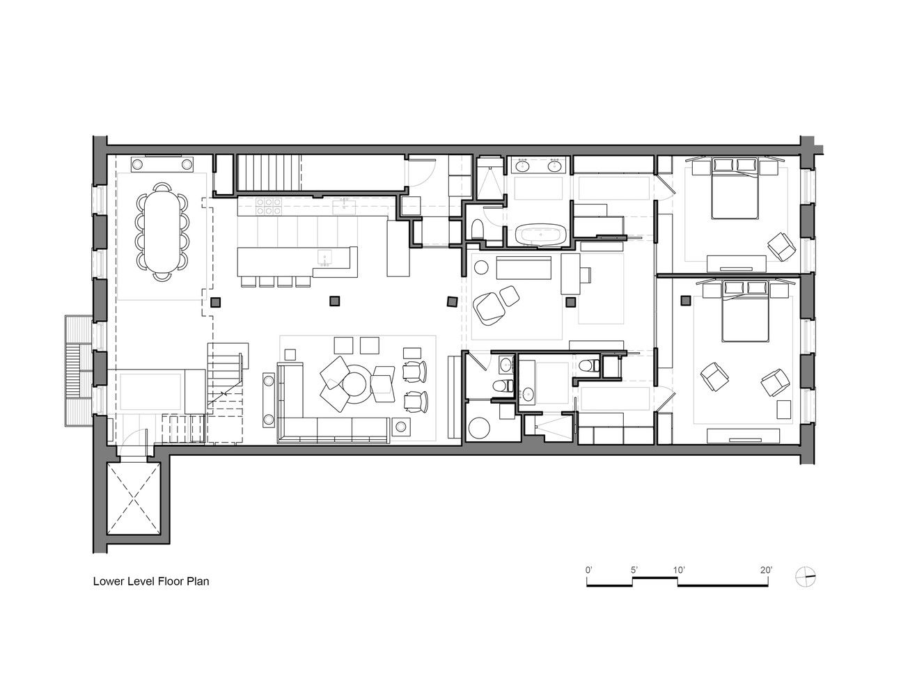
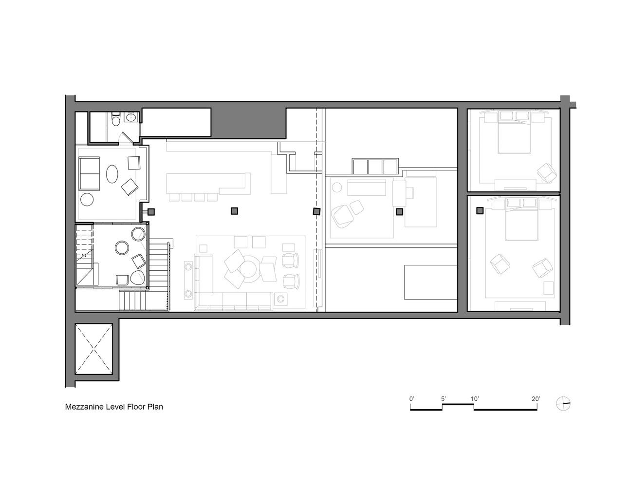
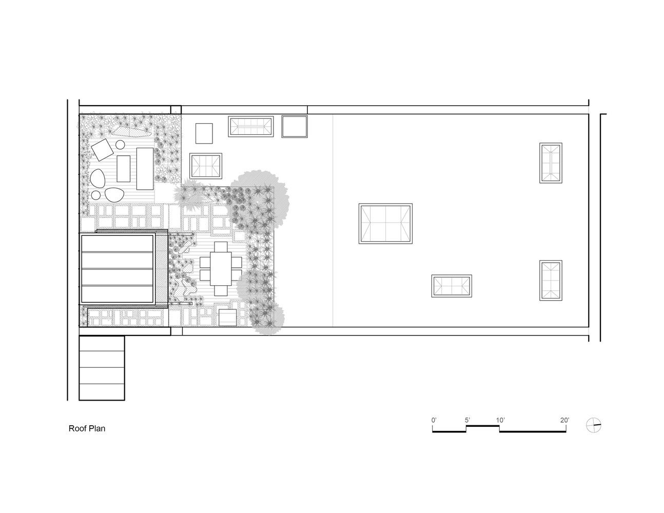
Tribeca Loft to niezwykły apartament powstały w zabytkowym magazynie kawioru z 1884 roku, zlokalizowany w tętniącej życiem dzielnicy Manhattanu. Architekci z pracowni Andrew Franz Architect stworzyli spektakularną przestrzeń o powierzchni 280 m², z dużymi, otwartymi strefami dziennymi i unikalnym ogrodem na dachu. Dzięki przeszklonemu, otwieranemu dachowi dziedziniec wewnętrzny wprowadza naturalne światło do wnętrz, zapewniając jednocześnie wentylację i silny związek z otoczeniem – podobnie jak w koncepcji, którą często oferuje nowoczesna stodoła.

Fot. ALBERT VECERKA/ESTO | Arch. ANDREW FRANZ ARCHITECT

Projekt umiejętnie łączy przeszłość z teraźniejszością. Zabytkowe elementy, takie jak drewniane belki czy ceglane ściany, zestawiono z nowoczesnymi materiałami i technologiami. Wykonane na zamówienie stalowe schody z drewnianymi stopniami oraz orzechowe wykończenia tworzą spójną, industrialną estetykę. Loft zyskał drugie życie jako stylowy apartament o wysokim standardzie, zachowując jednocześnie ducha dawnego magazynu. Estetyka wnętrza nawiązuje do idei nowoczesnej stodoły – minimalistycznej, ale bogatej w naturalne detale.

Fot. ALBERT VECERKA/ESTO | Arch. ANDREW FRANZ ARCHITECT

Zrównoważony rozwój to kluczowy element projektu. Architekci wykorzystali lokalne materiały, sprzęt energooszczędny i systemy odzysku, a taras dachowy obsadzono rodzimymi roślinami wymagającymi minimalnej pielęgnacji. Przemyślane rozwiązania nie tylko zmniejszają ślad węglowy, ale także wpływają na komfort życia mieszkańców. Tribeca Loft to harmonijne połączenie historii, nowoczesnej technologii i odpowiedzialnego designu – przestrzeń, która udowadnia, że luksus i ekologia mogą iść w parze.