Arch. Glenn Murcutt

Ikona nowoczesnej architekturyw Australii

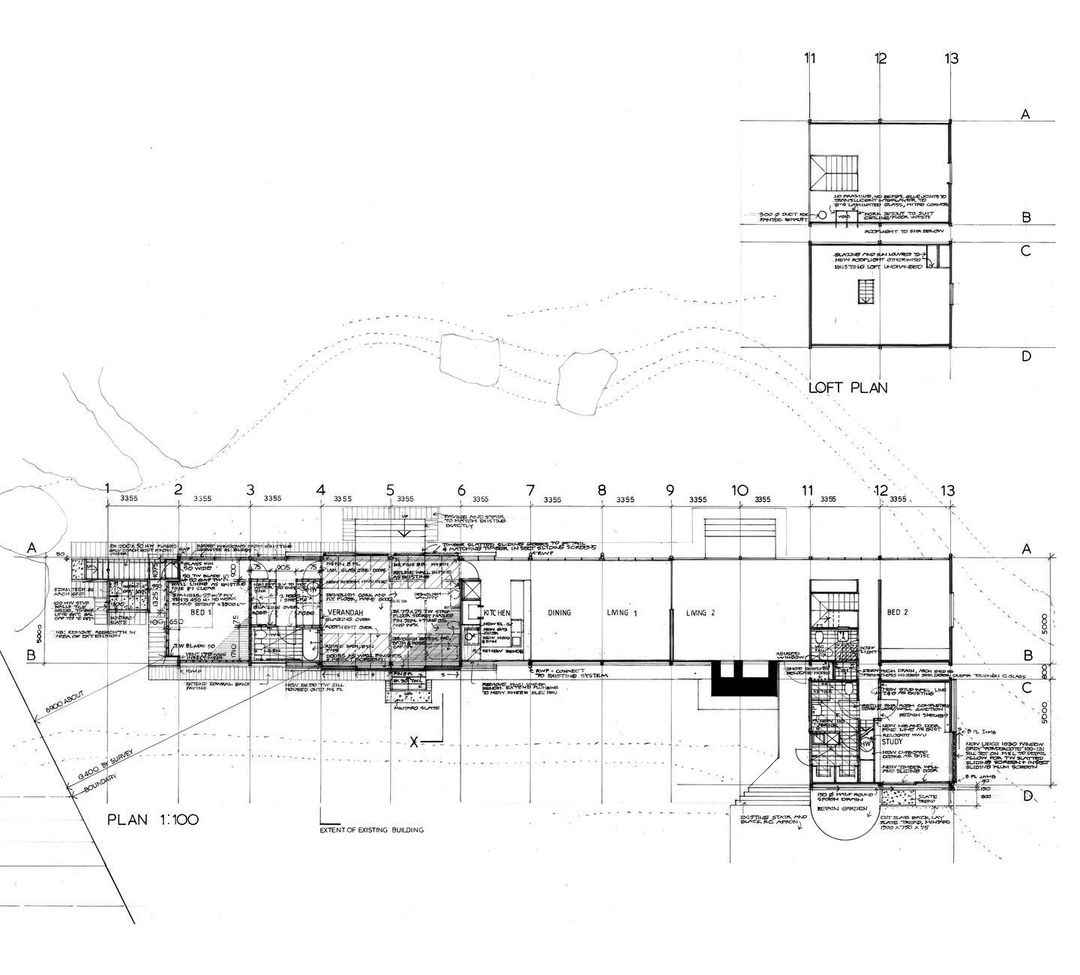
Fredericks-White House autorstwa Glenna Murcutta, najsłynniejszego australijskiego architekta, to przykład przemyślanej i eleganckiej nowoczesnej stodoły. Projekt łączy minimalistyczną formę z funkcjonalnością, wpisując się w tropikalny krajobraz z widokiem na dolinę. Budynek składa się z podwójnego pawilonu z zakrzywionymi dachami z blachy falistej, którego rama konstrukcyjna oraz wnętrza wykonane są z drewna. Architekt doskonale wykorzystał orientację działki w osi wschód-zachód – północna część z dużymi przeszkleniami pozwala maksymalnie korzystać z naturalnego światła. Jedynym pozostałym elementem dawnego gospodarstwa rolnego jest komin, który spina oba pawilony w spójną całość.

Arch. Glenn Murcutt

Styl Murcutta w dużej mierze inspirowany był Henrym Davidem Thoreau, pisarzem i przyrodnikiem, który propagował prostotę i wyjątkową staranność w codziennych czynnościach. Glenn Murcutt podkreśla, że architektura powinna harmonijnie współgrać z krajobrazem i klimatem. Do budowy Fredericks-White House użyto różnych materiałów – drewna, metalu, szkła, cegły i betonu – z pełną świadomością energochłonności ich produkcji. Projekt doskonale łączy nowoczesność, trwałość i ekologię, stając się jednym z najbardziej rozpoznawalnych dzieł australijskiego mistrza.

Arch. Glenn Murcutt

Za ten projekt Murcutt otrzymał wiele prestiżowych nagród, w tym Merit Award od Royal Australian Institute of Architects, a w 2002 roku Nagrodę Pritzkera za konsekwentny wkład w architekturę. Nowoczesna stodoła Fredericks-White House jest przykładem harmonii formy, funkcji i środowiska naturalnego, pokazując, że minimalistyczna architektura może być jednocześnie elegancka, praktyczna i w pełni zintegrowana z krajobrazem.