Fot. MyHome.eco

Kupprojekt

Cena zakupu

Cena
projektu

6300 zł

Dane powierzchniowe

Powierzchnia
zabudowy

175,002 m²

Powierzchnia
użytkowa

121,4 m²

Kąt
nachylenia

45°

Specyfikacja materiałowa

  • technologia murowana,
  • bloczki silikatowe,
  • ławy fundamentowe,
  • ogrzewanie gazowe podłogowe (opcja: pompa ciepła) wentylacja mechaniczna w standardzie,
  • dach kryty blachą na rąbek.

Oprojekcie

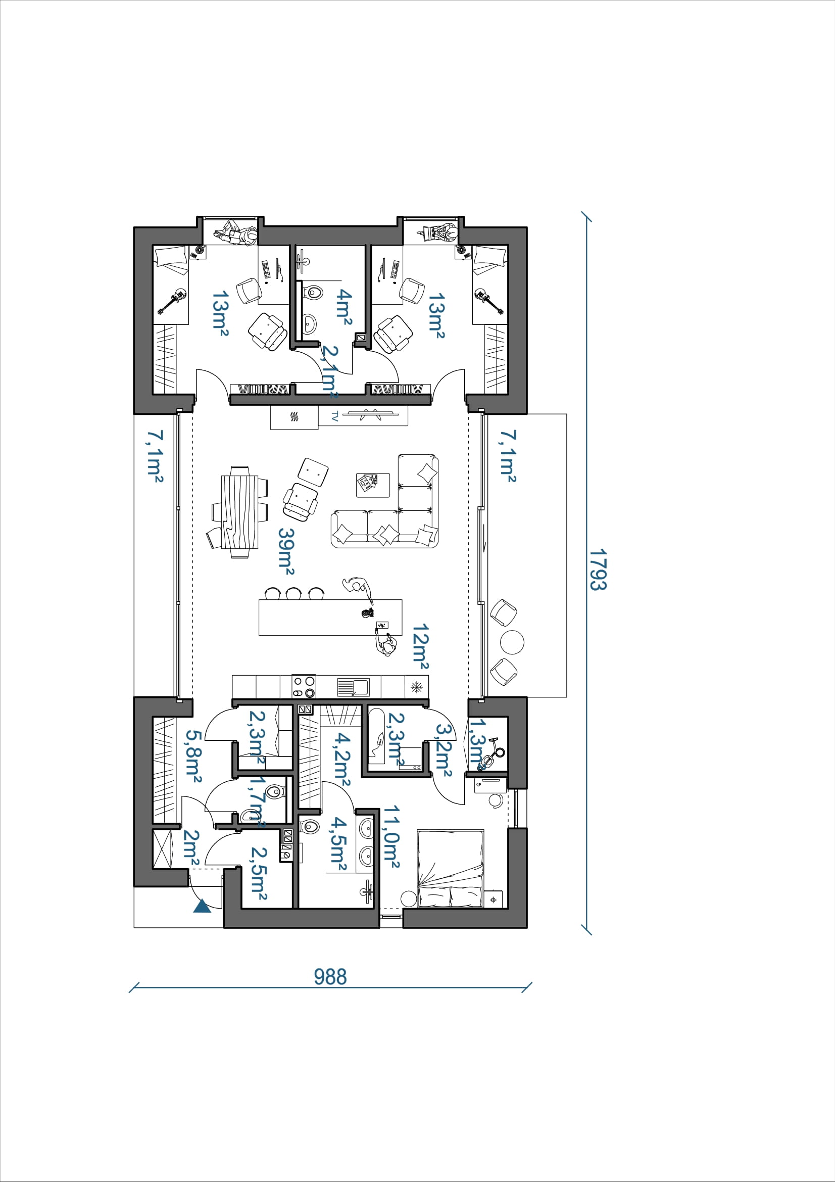
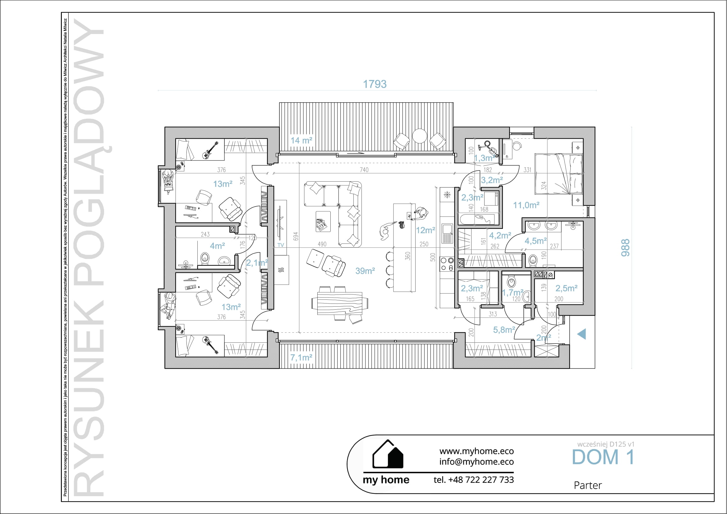
Gotowy projekt DOM 1 Pracowni MyHome.eco jest ewenementem pod względem wykorzystanej przestrzeni – korytarze zostały zmniejszone do minimum! Budynek zaprojektowany w stylu nowoczesnej stodoły, tworzący prostą i ekonomiczną w budowie bryłę, nie generując zbędnych kosztów w postaci skomplikowanych połaci dachowych. Minimalistyczne i trwałe materiały elewacyjne, tworzą dom o ponadczasowej stylistyce, eleganckiej i wyważonej.

Miejscem centralnym budynku jest strefa dzienna z salonem, kuchnią i jadalnią, które płynnie łączą się z ogrodem, dzięki panoramicznym przeszkleniom. Otwierają one wnętrze domu na przestrzał i zapewniają dynamiczne oświetlenie o każdej porze dnia. Strefa dzienna pełni rolę buforową rozdzielając sypialnie master od sypialni dzieci, zwiększając dzięki temu komfort życia domowników. Pokoje dzieci zostały urozmaicone o okna typu ‘’window seat’’, czyli tapicerowane wnęki z siedziskami.

W tym minimalistycznym projekcie DOM 1 funkcjonalność i ergonomia łączą się z energooszczędnością, dzięki właściwie zaprojektowanej bryle. Projekt DOM posiada aż 6 wariantów, sprawdź pozostałe na MyHome.eco.