Fot. HAVhouse
  • Strona internetowa

    HAVhouse
  • Social media

    FBIG
  • Lokalizacja

    Koszalin

Kupprojekt

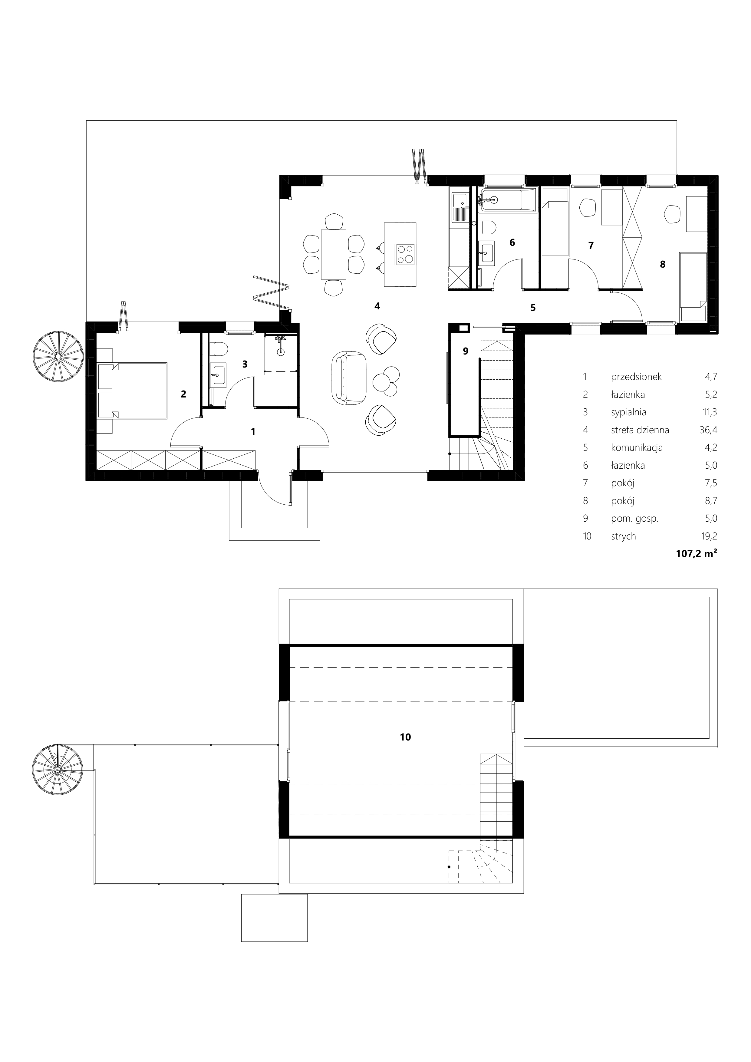
Dane powierzchniowe

Powierzchnia
zabudowy

108,82 m²

Powierzchnia
użytkowa

107,22 m²

Specyfikacja materiałowa

  • Ściany konstrukcyjne i działowe oraz strop zaprojektowano z paneli z drewna klejonego HBE o grubości 6 i 8 cm.
  • Elewacja z antracytowych płyt HPL oraz desek drewnianych.
  • Dach płaski z możliwością wykończenia jako zielony ekstensywny lub jako taras użytkowy dostępny z pokoju na poddaszu oraz z zewnątrz dzięki spiralnym schodom. 
  • Wymiary budynku (sz. / dł. / wys):  7,4m x 17,8m x 6,8m

 

Oprojekcie

Przedstawiamy Wam projekt domu jednorodzinnego na bazie dwóch modułów, z  dachem dwuspadowym nad centralną częścią budynku i poddaszem użytkowym oraz z tarasem na dachu płaskim, z możliwością samodzielnego montażu. Ściany konstrukcyjne i działowe oraz strop zaprojektowano z paneli z drewna klejonego HBE o grubości 6 i 8 cm. 

Centralna część budynku to strefa dzienna z salonem, jadalnią i kuchnią. Dzięki dużym przeszkleniom od frontu oraz tarasu, pomieszczenie zyskuje dużo światła, a tym samym otwiera się na zewnętrze. Lewe skrzydło budynku stanowi sypialnia z dwuosobowym łóżkiem, łazienka i przejściowa garderoba. W prawym skrzydle domu znajduje się łazienka oraz dwie małe jednoosobowe sypialnie.

W ramach realizacji projektu istnieje możliwość wyboru dachu solarnego, który zwiększa energooszczędność budynku i pozwala na optymalne wykorzystanie energii odnawialnej.

Cena realizacji ustalana jest indywidualnie, zgodnie z zakresem prac i oczekiwaniami inwestora.

Zainteresowany projektem naszego domu modułowego? Skontaktuj się z nami telefonicznie lub mailowo.

Kilka słów o nas

Jesteśmy grupą entuzjastów ekologicznego budownictwa modułowego. Podstawowym materiałem konstrukcyjnym naszych modułów przestrzennych są prefabrykowane panele z drewna klejonego warstwowo HBE.

Projektujemy i wykonujemy:

  •  standardowe budynki jednorodzinne,
  •  jednorodzinne budynki modułowe,
  •  całoroczne łodzie mieszkalne na pływakach żelbetowych.

Domy modułowe reprezentują rewolucyjne podejście do nowoczesnego życia, łącząc najnowocześniejszą technologię, zrównoważony rozwój i wszechstronność w nowej erze architektury mieszkaniowej. Te innowacyjne budynki zmieniają sposób, w jaki myślimy o domach, oferując niezliczone korzyści, które zaspokajają potrzeby i aspiracje współczesnego życia. Projektujemy i wykonujemy pod klucz także nadbudówki łodzi mieszkalnych wraz z pływakami żelbetowymi. W pełni wyposażone pływające domy stanowią niezwykłe połączenie nowoczesnego designu i żeglarskiej pomysłowości.