Fot. Greg Richardson | Arch. MacKay-Lyons Sweetapple Architects

Minimalistyczna architekturai piękna natura

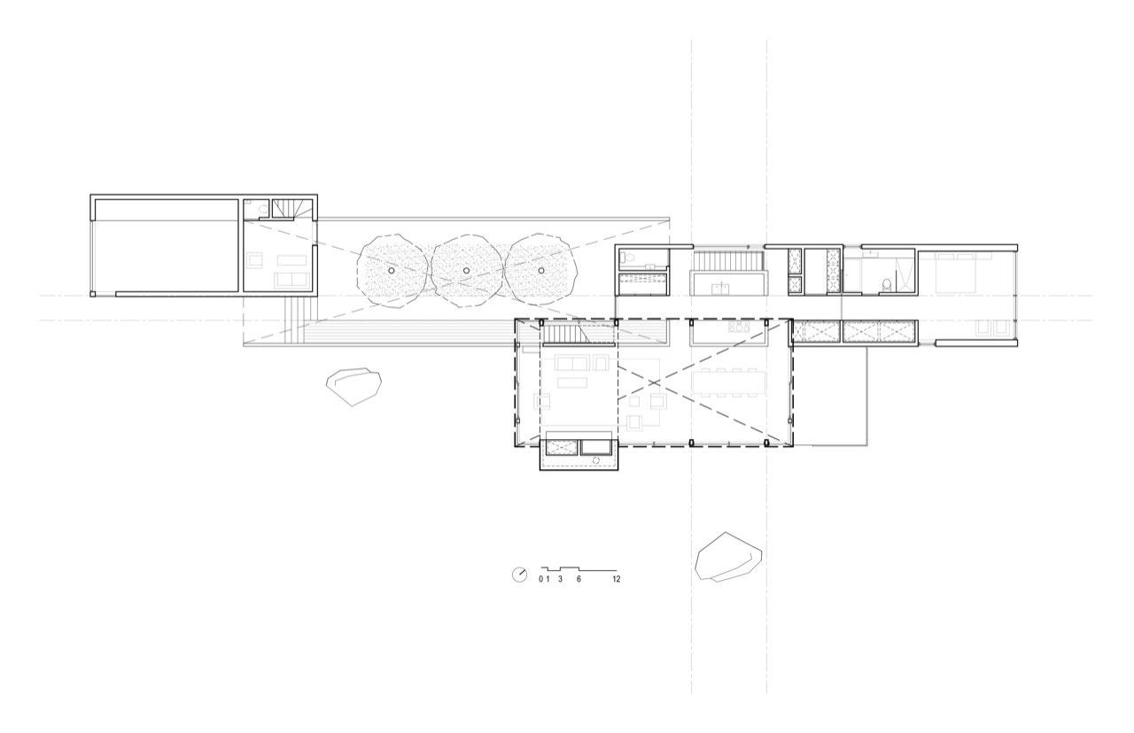
Nowoczesna stodoła o nazwie “Martin-Lancaster” ma powierzchnię blisko 280 m2 i stoi na pięknym wybrzeżu atlantyckim w Nowej Szkocji.

Fot. Greg Richardson | Arch. MacKay-Lyons Sweetapple Architects

Projekt obejmuje cztery główne komponenty. Domek z dwuspadowym dachem dla gości i z miejscem garażowym, pawilon mieszkalny z dwuspadowym dachem, zwrócony na północ bar oraz dziedziniec, który łączy wszystkie elementy. Kierunek komunikacyjny, ustalony przez architektów, skierowano w stronę oceanu. Najpierw przechodzi się przez garaż, który stanowi pewnego rodzaju bramę ochronną. Następnie wchodzi się na osłonięty dziedziniec i dalej wzdłuż ławy przechodzi się do dwupoziomowego pawilonu mieszkalnego, z którego można przejść na taras z widokiem na wodę. Pawilon zwrócony w stronę południową wyposażono w wyróżniający się, betonowy kominek.

Fot. Greg Richardson | Arch. MacKay-Lyons Sweetapple Architects

To projekt abstrakcyjny i mocno stonowany, który wyraźnie nawiązuje do lokalnych materiałów i tradycji budowlanych tego regionu Nowej Szkocji. Projekt charakteryzuje ograniczona ilość detali, monolityczne formy oraz wykończenie ścian zewnętrznych i dachu cedrowym gontem. To wszystko stanowi też odpowiedź na morski klimat, który w tym miejscu narzuca pewne zobowiązania wszystkim projektom. Ciężka, drewniana konstrukcja pawilonu mieszkalnego podkreśla znaczenie i funkcje tego miejsca.