Fot. Ivar Bastress, Erica Allen | Arch. Birdseye

Nowoczesny domnad jeziorem

A-Frame to nowoczesna rezydencja jednorodzinna położona nad brzegiem jeziora Bomoseen w Castleton, Vermont. Dom znajduje się na zachodniej stronie jeziora, z południową ekspozycją, tuż obok mostu samochodowego łączącego brzegi wschodni i zachodni. Wyzwania lokalizacyjne obejmowały tereny podmokłe oraz jezioro, co miało wpływ na lokalizację i konfigurację budynku.

Fot. Ivar Bastress, Erica Allen | Arch. Birdseye

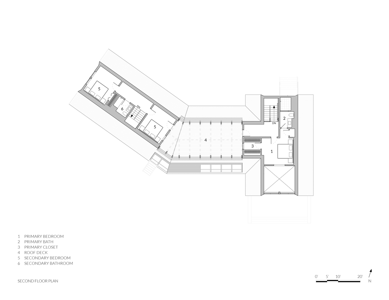
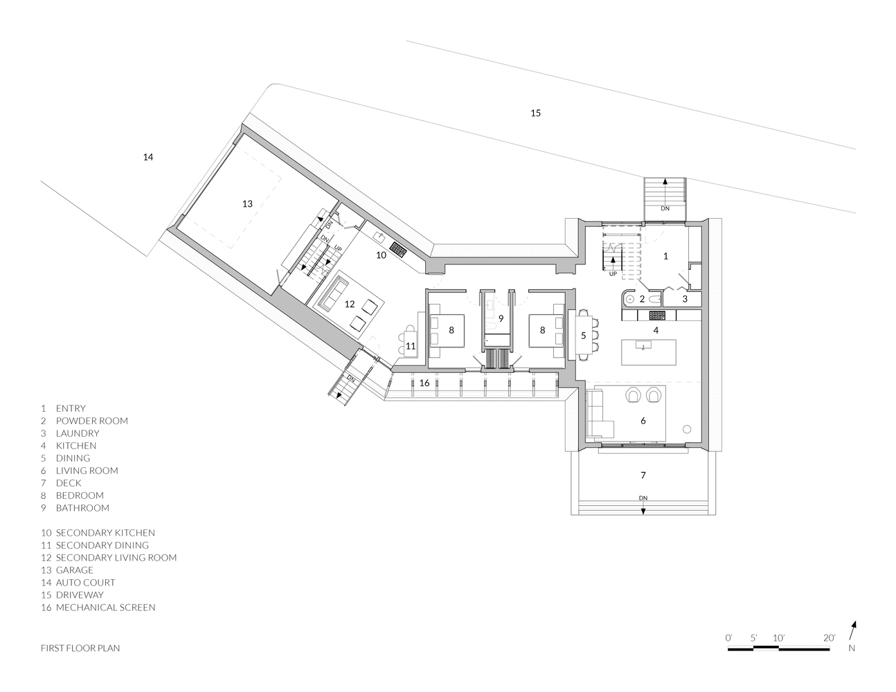
Dom zaprojektowano z myślą o maksymalnych widokach na jezioro oraz łatwym dostępie do brzegu jeziora. Plan budynku podzielony jest na dwie oddzielne przestrzenie mieszkalne. Główna przestrzeń obejmuje przedpokój, toaletę, pomieszczenie gospodarcze, kuchnię, jadalnię, salon, apartament z dwiema sypialniami, główny apartament z sypialniami, górny taras na dachu oraz garaż na dwa samochody. Druga przestrzeń to oddzielne mieszkanie z własnym wejściem, przestrzenią dzienną, kuchnią, jadalnią i apartamentem z dwiema sypialniami oraz dostępem do tarasu na dachu.

Fot. Ivar Bastress, Erica Allen | Arch. Birdseye

Koncepcja domu inspirowana jest minimalistycznym archetypem obozu nad jeziorem – klasyczną ramą w kształcie litery A z połowy wieku. Projekt przekształca ten kultowy kształt w trzy splecione konstrukcje w kształcie litery A. Dwie ramy są połączone pod kątem 40 stopni, a trzecia jest ustawiona prostopadle do jednej z nich. Wzdłuż jednego segmentu usunięto system dachowy, odsłaniając drewnianą osłonę w kształcie litery A nad wspólnym tarasem na dachu. Forma ta oddaje hołd minimalistycznej architekturze i ręcznemu rzemiosłu, eksponując proces projektowy.

Fot. Ivar Bastress, Erica Allen | Arch. Birdseye

A-Frame został zaprojektowany z myślą o optymalnej orientacji względem miejsca. Budynek został zaprojektowany tak, by przechwytywać naturalne światło oraz widoki na jezioro, jednocześnie minimalizując ekspozycję na stronę północną. Konstrukcja opiera się na płycie betonowej i znajduje się na nachyleniu, co minimalizuje potrzebę wykopów i podwyższa efektywność budowy. Większość konstrukcji została wykonana z prefabrykowanych paneli dachowych, co przyspieszyło proces budowy i zminimalizowało odpady. Zewnętrzna powłoka budynku składa się z wysoko izolowanych paneli dachowych i ścian wypełniających, pokrytych cedrem oraz wyposażonych w termiczne okna uchylno-obrotowe, zapewniające energooszczędność.

Fot. Ivar Bastress, Erica Allen | Arch. Birdseye

Główna przestrzeń mieszkalna zawiera otwieraną ścianę żaluzjową, co umożliwia naturalną wentylację i oświetlenie. Drewniane listwy zewnętrzne zapewniają pasywne zacienienie okien na południowej elewacji, a okna na północy są minimalizowane. W zimie, ogrzewanie zapewnia wydajna kuchenka gazowa, a świeże powietrze wymienia się mechanicznie przez system HRV. Krajobraz projektu zachowuje istniejące tereny podmokłe, a minimalne nasadzenia tworzą naturalne połączenie z brzegiem jeziora.