Fot. Ratthee Phaisanchotsiri | Arch. Homesook Studio

Harmonijna architekturai naturalna wentylacja

Właściciele planowali remont i rozbudowę domu rodzinnego, przenosząc się z Bangkoku do Mae Rim w Chiang Mai. Projekt miał na celu stworzenie komfortowej przestrzeni mieszkalnej, zintegrowanej z działalnością gospodarczą – zakwaterowaniem u rodziny goszczącej.

Fot. Ratthee Phaisanchotsiri | Arch. Homesook Studio

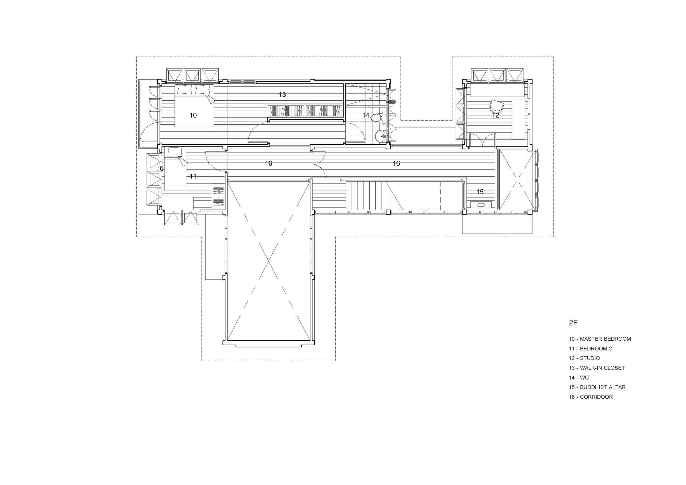
Centralnym punktem domu są przestrzenie o podwójnej kubaturze, które nie tylko powiększają wnętrze, ale także zapewniają naturalną wentylację. Elementem wyróżniającym jest częściowo zewnętrzny korytarz, łączący dolny i górny poziom budynku, co wpływa na swobodny przepływ powietrza i komfort termiczny bez konieczności stosowania klimatyzacji.

Fot. Ratthee Phaisanchotsiri | Arch. Homesook Studio

Nowoczesna stodoła w tym wydaniu czerpie inspirację z lokalnego kontekstu, wprowadzając harmonijny dobór materiałów, które współgrają z naturą, światłem i powietrzem. Elewacja została wykonana z cegły, drewna, płytek i betonu, co zapewnia trwałość i estetykę, a jednocześnie wpisuje się w krajobraz Mae Rim.

Fot. Ratthee Phaisanchotsiri | Arch. Homesook Studio

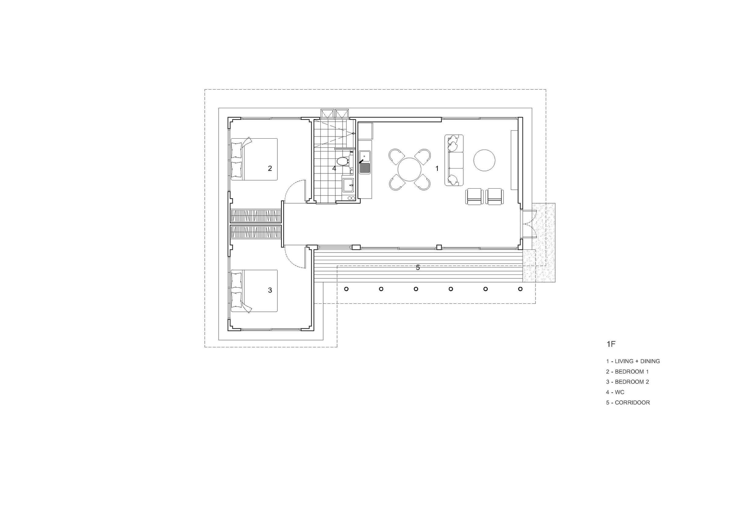
Dom obejmuje trzy sypialnie, trzy łazienki, salon, jadalnię i kuchnię, oferując funkcjonalny i otwarty układ pomieszczeń. Dwupoziomowa przestrzeń mieszkalna została zaprojektowana tak, aby zachować naturalny mikroklimat, zwiększając komfort użytkowników bez nadmiernego zużycia energii.