Arch. Omar Gandhi
  • Architekt

    Omar Gandhi
  • Lokalizacja

    Wyspa Cape Breton w Nowej Szkocji

Czarna stodołaz widokiem na ocean

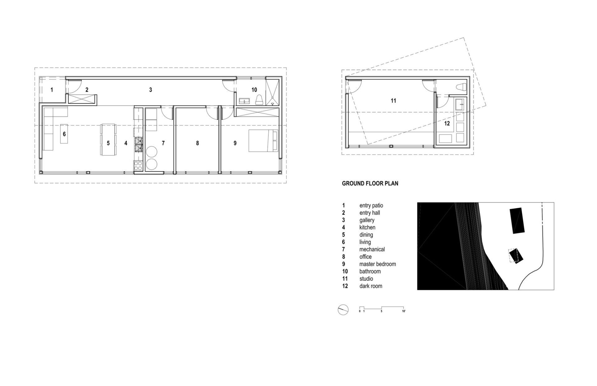
Projekt Black Gables to dwa proste, skromne, czarne budynki z metalowym dachem dwuspadowym. Jeden z nich służy głównie do celów mieszkalnych, a drugi wykorzystywany jest jako studio i ciemnia. Obydwa ułożone w taki sposób, by oferowały najlepsze widoki, miały odpowiednią ekspozycję na słońce i tworzyły spójną całość.

Arch. Omar Gandhi

Projekt wykonano na życzenie lekarza Jonaha Samsona, który ma duszę artysty i jest kolekcjonerem. Dom powstał między majem i grudniem 2013 roku w małym miasteczku Louisdale na wyspie Cape Breton w Nowej Szkocji. Jonah Samson mieszkał wcześniej przez 10 lat w Vancouver w Kanadzie. Zdecydował jednak, że chciałby przeprowadzić się na wschodnie wybrzeże i zbudować tam dom, wykorzystując zalesioną działkę z widokiem na ocean, która należała do jego rodziny od pokoleń. Wystarczyło, że wycięto zaledwie kilka drzew, by można było przekonać się, jak spektakularne widoki roztaczają się z tego miejsca.

Arch. Omar Gandhi

Projekt miał być ekonomiczny – zarówno pod względem budżetu, jak i miejsca. Dom ma 111 metrów kwadratowych, ma jedną sypialnię oraz osobne pomieszczenie, które klient wykorzystuje jako bibliotekę/biuro. Przez całą długość domu biegnie szeroki i długi hall, który jest doskonałym miejscem do prezentowania sztuki. Wolnostojące studio ma około 41 metrów kwadratowych, a budynek to głównie otwarta przestrzeń, choć wydzielono w nim miejsce na niewielką ciemnię. Cały budżet na obydwa budynki wynosił około 300 tysięcy dolarów.

Arch. Omar Gandhi

Do budowy wykorzystano wyłącznie lokalne materiały i zatrudniono lokalnych pracowników. Dom postawiono na betonowej płycie, z drewnianą ramą. Część zewnętrzna to połączenie różnych faktur w kolorze czarnym (metalowy dach, płyty cedrowe i metalowa okładzina między oknami). Zdecydowaliśmy się wydać więcej na wspomniane materiały, oszczędzając na prefabrykowanej konstrukcji. Koszty budżetu w znaczny sposób obniżyło też wykorzystanie miejscowych pracowników i kontrahentów.