Fot. Bruce Damonte | Arch. Terry & Terry Architecture

Przebudowa domuz widokiem

Ten nowoczesny dom to efekt przebudowy budynku, który został zniszczony przez pożar. Znajduje się na szczycie pasma górskiego, w pobliżu Oakland, oferując niezwykłe widoki na zatokę i okolicę Golden Gate. Projekt ten powstał z myślą o młodej rodzinie, która marzyła o domu z otwartą przestrzenią, z pięknymi widokami oraz harmonią z otaczającym ogrodem.

Fot. Bruce Damonte | Arch. Terry & Terry Architecture

Lokalizacja domu, na wysokości, naraża go na ekstremalne warunki atmosferyczne i zmiany temperatury, jednak dzięki innowacyjnemu projektowi temperatura wewnętrzna zawsze utrzymuje komfortowy poziom. Dach w kształcie drewnianej tuby ma falisty kształt, co zapewnia doskonałą wentylację przestrzeni salonu. Jednocześnie nawiązuje do porannych mgieł, które rozciągają się za oknem. W ciągu dnia i wieczorem dom można skutecznie przewietrzyć, ciesząc się orzeźwiającą bryzą.

Fot. Bruce Damonte | Arch. Terry & Terry Architecture

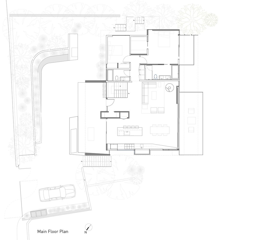
Pracując na istniejącym planie, architekci rozszerzyli przestrzeń o dodatkowy teren jadalni na świeżym powietrzu. Umieszczono również betonową ławkę, która definiuje przestrzeń ogrodu, tworząc przemyślaną aranżację. Jadalnia, usytuowana naprzeciwko kuchni, otwiera się na taras widokowy, który dzięki przedłużeniu konstrukcji dachu, pozostaje idealnie osłonięty przed słońcem.

Fot. Bruce Damonte | Arch. Terry & Terry Architecture

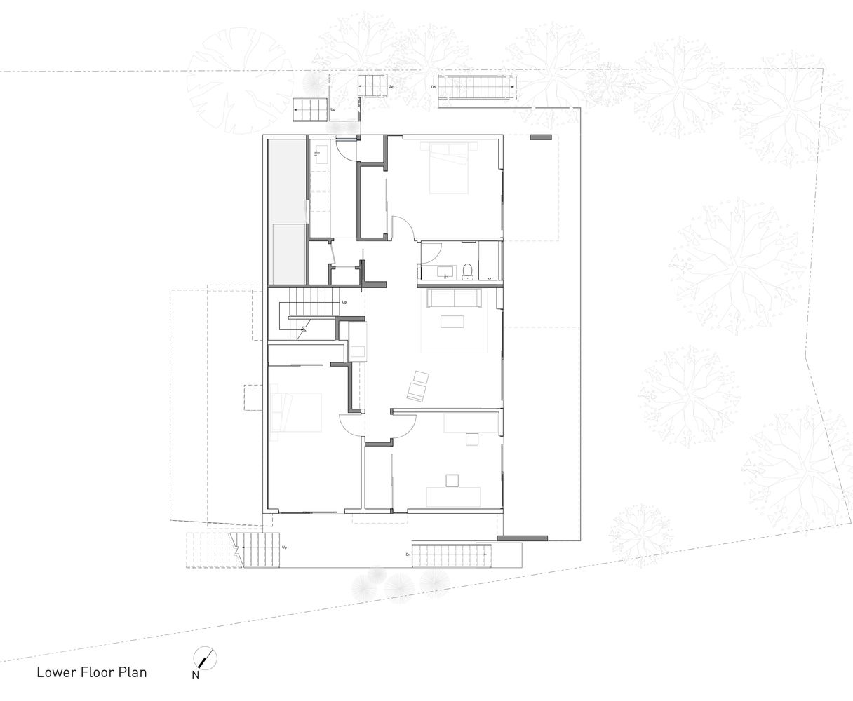
Nowoczesna stodoła w pełni łączy nowoczesne technologie z tradycyjnym stylem. Nowe schody prowadzą do niższego piętra, na którym znajduje się pokój telewizyjny, sypialnia oraz biuro. Projekt domu łączy w sobie komfort i estetykę, oferując nowoczesne rozwiązania w tradycyjnej scenerii.

Fot. Bruce Damonte | Arch. Terry & Terry Architecture

Ten dom to doskonały przykład na to, jak można połączyć stylowe rozwiązania architektoniczne z naturą i przestronnością, zachowując równocześnie harmonię z otoczeniem.