Fot. Will Scott Photography | Arch. Guttfield Architecture

Idealnarozbudowa domu

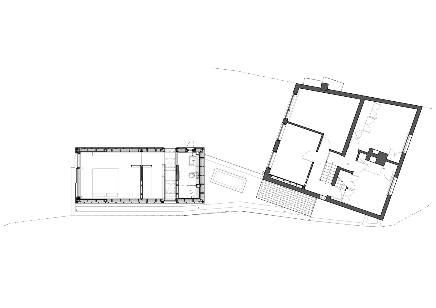
Guttfield Architecture zaprojektowało drewnianą dobudówkę w formie nowoczesnej stodoły, idealnie dopasowaną do wiejskiego charakteru domku z czerwonej cegły w West Berkshire. Bridleway House zastąpiło stary garaż nowym, dwupiętrowym skrzydłem z panoramicznymi widokami na dolinę Tamizy i North Wessex Downs.

Fot. Will Scott Photography | Arch. Guttfield Architecture

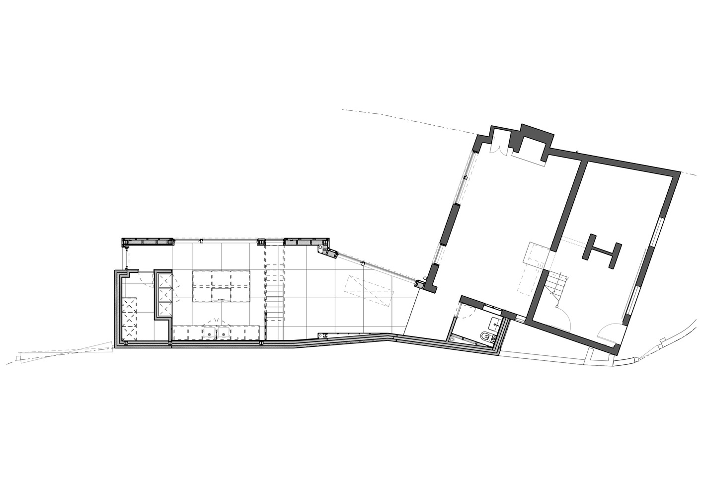
Nowa bryła wystaje poza pierwotny budynek, oferując widoki na malowniczą okolicę. Na piętrze powstał apartament główny z dużym panoramicznym oknem i sklepieniem w kształcie stodoły, wykończony brzozową sklejką. Przesuwane drewniane okiennice gwarantują prywatność. Przestrzeń połączono lekkimi schodami w przeszklonej szczelinie, która wpuszcza światło dzienne. Na parterze urządzono nowoczesną kuchnię i jadalnię, gdzie odsłonięta czerwona cegła dodaje ciepła i charakteru.

Fot. Will Scott Photography | Arch. Guttfield Architecture

Drewniana elewacja z poziomych listew modrzewia syberyjskiego otula zarówno ściany, jak i dach, zachowując minimalistyczny styl. Projekt podkreśla wiejski kontekst otoczenia, jednocześnie wnosząc nowoczesny akcent architektoniczny. Całość nowoczesnej stodoły ukończono za mniej niż 350 000 funtów, tworząc funkcjonalną, pełną światła przestrzeń mieszkalną.