Fot. Simone Bossi | Arch. Luca Compri - LCA Architetti

Ekologiczny domz drewna

Noemi i Marco to młoda para, która postanowiła zbudować swój ekologiczny dom w małym miasteczku nad jeziorem Lugano. Ich głównym celem zawsze było stworzenie domu z przestrzeniami, które mogłyby mieć silny związek z naturą i otaczającym krajobrazem.

Fot. Simone Bossi | Arch. Luca Compri - LCA Architetti

Ten dom to udana próba zbudowania „nietradycyjnego” domu w sposób zrównoważony. Właściciele dokonali świadomego i odważnego wyboru, chcąc udowodnić, że można budować z materiałów, które niekoniecznie są betonem i cegłą. Wielka pasja właścicieli do ochrony środowiska pozwoliła architektom eksperymentować z naturalnymi materiałami, które wciąż są bardzo niedostatecznie wykorzystywane. Natura otaczająca przestrzenie zainspirowała właścicieli do stworzenia prawdziwie zrównoważonego budynku: domu z drewna, metalu i korka.

Fot. Simone Bossi | Arch. Luca Compri - LCA Architetti

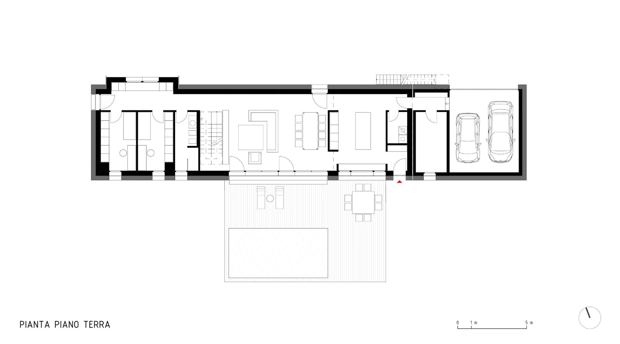
Dom na rzucie prostokąta, posadowiony jest na działce otoczonej domami jednorodzinnymi. Parter obejmuje wejście, kuchnię z wyspą pośrodku i strefę śniadaniową, część dzienną ze stołem jadalnym, łazienkę oraz dwie oddzielne sypialnie dla dzieci pary. Pierwsze piętro wychodzi na salon i jest w całości zajęte przez główną sypialnię i łazienkę. Dom charakteryzuje się otwartymi przestrzeniami. Głównymi cechami domu są dwupoziomowa część dzienna i duża klatka schodowa łącząca dwie kondygnacje.