Fot. Matias Riveros | Arch. Viento Norte

Dom na skarpiez widokiem na wulkan

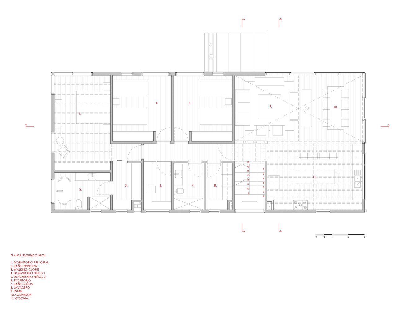
Casa 4 Aguas to nowoczesny dom jednorodzinny w typie nowoczesnej stodoły, położony w wiejskim krajobrazie Puerto Varas w Chile. Projekt zlokalizowany jest na działce o wyraźnym nachyleniu, które w najwyższym punkcie oferuje spektakularny widok na wulkan Calbuco oraz jezioro Llanquihue. Ten dom na skarpie został zaprojektowany tak, aby harmonijnie dostosować się do ukształtowania terenu i maksymalnie wykorzystać walory widokowe. Przestrzeń została funkcjonalnie rozdzielona na kondygnacje, odpowiadające poziomom terenu.

Fot. Matias Riveros | Arch. Viento Norte

Na pierwszym poziomie, w dolnej części działki, znajdują się parking, dojazd, a także zintegrowana z otoczeniem przestrzeń grillowa, która tworzy osłonięty, półotwarty dziedziniec. To rozwiązanie sprzyja elastycznemu przepływowi gości oraz zapewnia zadaszone wejście chroniące przed opadami – typowe dla klimatu tego regionu. Główna kondygnacja, usytuowana w najwyższym punkcie działki, obejmuje wszystkie podstawowe funkcje mieszkalne: salon, kuchnię, jadalnię, sypialnie, łazienki oraz pralnię. Dzięki swojej wydłużonej formie i dużym przeszkleniom od strony północno-wschodniej, mieszkańcy mogą cieszyć się panoramicznym widokiem na wulkan oraz okoliczne lasy, z perspektywy sięgającej wierzchołków drzew.

Fot. Matias Riveros | Arch. Viento Norte

Na drugim piętrze znajduje się otwarta antresola z widokiem na główną przestrzeń dzienną, która pełni funkcję rekreacyjną i wizualnie powiększa wnętrze. Charakterystyczne dla projektu są cztery dachy dwuspadowe, które pełnią nie tylko rolę estetyczną, ale przede wszystkim funkcjonalną. Mniejszy dach okrywa strefę prywatną z sypialniami, natomiast większy, wyższy dach akcentuje część wspólną oraz antresolę, tworząc wrażenie przestronności.

Fot. Matias Riveros | Arch. Viento Norte

Materialność projektu łączy nowoczesną stalową konstrukcję — niezbędną do stworzenia zadaszonego parkingu i utrzymania dużej kubatury — z lokalną, tradycyjną architekturą drewnianą. To zestawienie podkreśla nowoczesny charakter stodoły przy jednoczesnym zakorzenieniu w lokalnym kontekście architektonicznym regionu Los Lagos.