Arch. Atelier Data

Transformacja stajni w domw duchu architektury wiejskiej

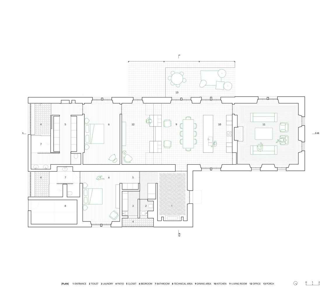
Projekt Casa Mãe to przykład unikalnej interwencji architektonicznej, która przekształciła dawną stajnię dla koni w pełnoprawny dom mieszkalny w miejscowości Alcácer do Sal w Portugalii. Realizacja była częścią większej strategii rewitalizacji dawnej posiadłości rolnej „Sítio da Lezíria”. Projektanci nazwali cały proces interwencją, podkreślając jego świadomy, osadzony w kontekście miejsce i historii charakter. Celem było pogodzenie istniejącej, wiejskiej architektury z nowoczesnymi funkcjami i formami – stąd decyzja o zachowaniu oryginalnej struktury i uzupełnieniu jej o nową bryłę. Powstały budynek łączy w sobie tradycyjny charakter zabudowy gospodarczej z funkcjonalnością współczesnego domu, zachowując przy tym rustykalny styl stodoły.

Arch. Atelier Data

Architekci skupili się na reinterpretacji stodołowego charakteru istniejącego obiektu, zachowując prostotę elewacji, wysokie sufity, duże kominy i ciągłość przestrzeni wewnętrznych. Nowa bryła, dodana po południowo-wschodniej stronie budynku, zamyka układ i wprowadza patio, wokół którego zorganizowano dwie sypialnie z prywatnymi łazienkami i bezpośrednim dostępem do zewnętrznych stref wypoczynkowych. Centrum życia codziennego w Casa Mãe stanowią kuchnia i jadalnia, otwarte na przestrzeń dzienną oraz taras z pergolą. Dzięki temu budynek płynnie łączy wnętrze z ogrodem, podkreślając relację z krajobrazem. To przykład, jak nowoczesna stodola może powstać z poszanowaniem lokalnych tradycji i przyrody.

Arch. Atelier Data

Projekt zakładał wykorzystanie tradycyjnych technik budowlanych i materiałów z odzysku. Glina na dach i podłogi, wapno do wykończenia ścian, mozaika hydrauliczna w wybranych przestrzeniach oraz drewno odzyskane z podłogi starego salonu – wszystko to składa się na wyjątkowy, zrównoważony dom z duszą. Na szczególną uwagę zasługuje zastosowanie ażurowych bloczków cobogó, które tworzą dynamiczne efekty światła i cienia na dziedzińcach. Dzięki tym zabiegom Casa Mãe nie tylko łączy przeszłość z teraźniejszością, ale także staje się wzorem dla projektów rewitalizacyjnych, w których nowoczesna architektura wiejska opiera się na historii miejsca, lokalnych surowcach i zrównoważonym budownictwie.