Arch. La Firme

Ocalona stodołajako dom dla dzieci

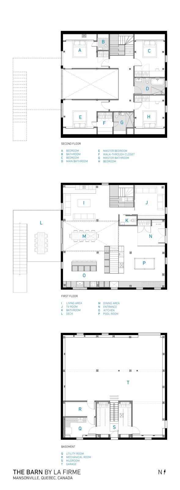
Właściciele jednej z posesji postanowili ocalić od zapomnienia starą stodołę, która przez lata służyła gospodarstwu, a w ostatnim czasie popadła w ruinę. Zamiast ją rozebrać, podjęto decyzję o jej pełnej renowacji i nadaniu nowej funkcji – jako dom dla dzieci, wspólna przestrzeń do odpoczynku i zabawy. Projekt zrealizowało studio La Firme, które postawiło na pełne poszanowanie pierwotnej struktury budynku. Każdy element konstrukcji został rozebrany, odnowiony i precyzyjnie złożony ponownie. Dzięki temu udało się zachować autentyczny charakter architektury wiejskiej, a zarazem stworzyć nowoczesną przestrzeń do życia.

Arch. La Firme

Wnętrze budynku przeszło całkowitą metamorfozę. Dawne piętro gospodarcze, gdzie niegdyś trzymano zwierzęta, stało się dziś sercem domu. Architekci wykorzystali istniejące układy przestrzenne, tworząc otwarte, półotwarte i zamknięte strefy, które gwarantują odpowiedni poziom prywatności oraz funkcjonalności. Zachowanie oryginalnej konstrukcji umożliwiło także utrzymanie wysokiej, otwartej przestrzeni, która dodaje wnętrzu majestatu i światła. Przestrzeń ta idealnie wpisuje się w klimat miejsca, łącząc w sobie rustykalny urok dawnej zabudowy gospodarczej z nowoczesnym podejściem do projektowania wnętrz. Całość można określić mianem nowoczesnej stodoły, która mimo nowej funkcji wciąż opowiada historię swojego miejsca.

Arch. La Firme

Kluczowym elementem projektu było połączenie domu z otaczającą naturą. Architekci zdecydowali się na zastosowanie dużych przeszkleń, które otwierają wnętrze na malowniczy, wiejski krajobraz. Dzięki temu mieszkańcy mogą na co dzień doświadczać symbiozy z przyrodą, a budynek – mimo transformacji – zachował swój związek z dawnym pejzażem rolniczym. Rewitalizacja tej stodoły to nie tylko ratunek dla niszczejącego budynku, ale również przykład, jak można z szacunkiem dla historii stworzyć przestrzeń nowoczesną, funkcjonalną i pełną ciepła – idealną do życia, wypoczynku i wspólnego spędzania czasu.