Arch. re:architekti

Drewniany domek z tradycyjnągeometrią i rzemiosłem

Domek zaprojektowany przez pracownię re:architekti to przykład nowoczesnej stodoły, która łączy klasyczną architekturę z funkcjonalnością, a jednocześnie jest wyjątkowo ekonomiczna. Koszt budowy wyniósł jedynie około 352 tysiące złotych (niecałe dwa miliony koron). Projekt zrealizowano w małej czeskiej wiosce Skelná Huť, która charakteryzuje się regularną zabudową z domami o archetypowej sylwetce – dwuspadowymi dachami i klasyczną formą, nadającą tożsamość całej wsi.

Arch. re:architekti

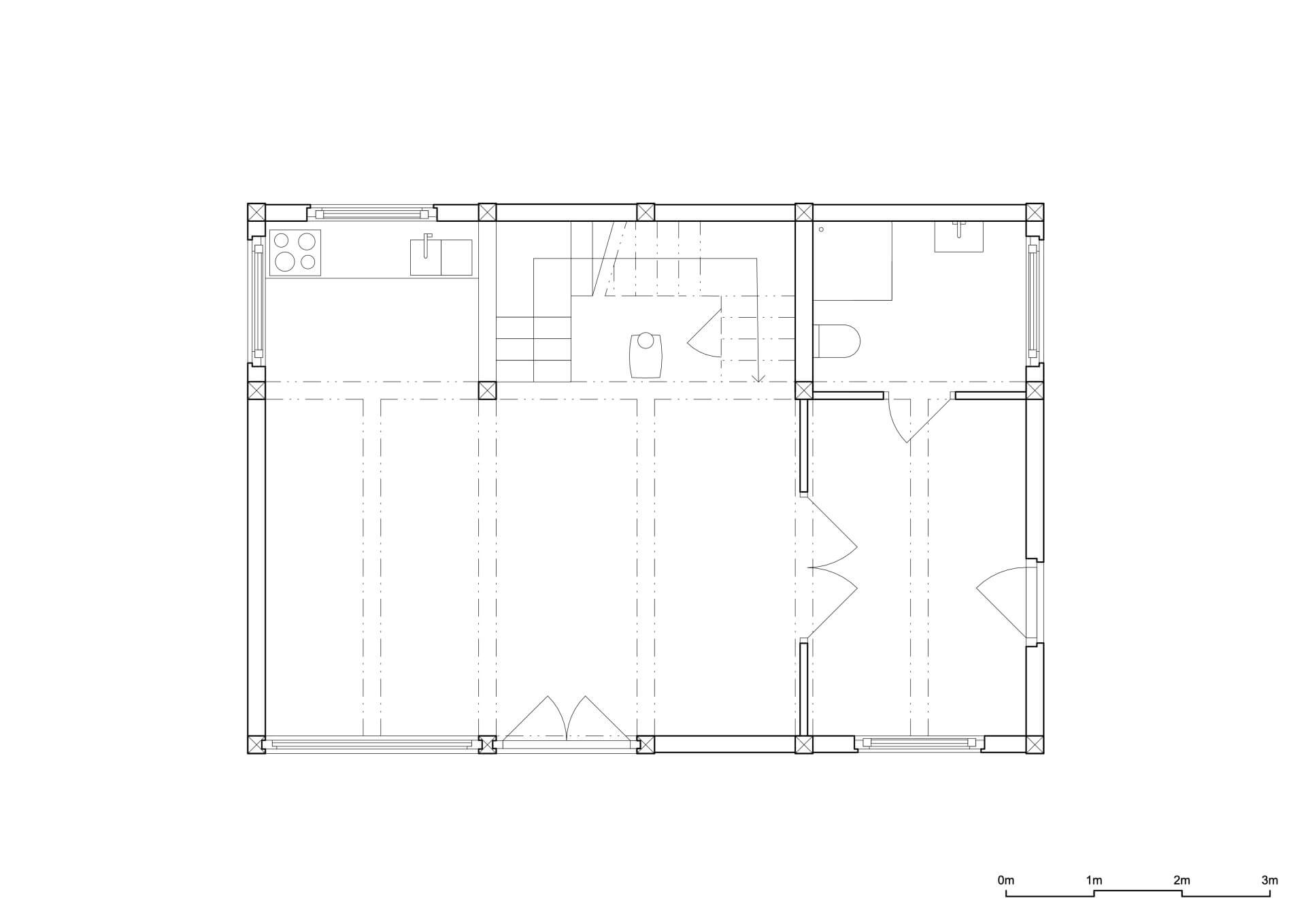
Architekci z re:architekti, znani ze wrażliwego podejścia do kontekstu i otoczenia, zaproponowali drewniany domek o dwóch kondygnacjach, nawiązujący do tradycyjnej architektury. Rzut piętra ma formę prostokąta, podzielonego na sześć mniejszych prostokątów, które wyznaczają funkcjonalne strefy: wejście, łazienkę, część dzienną, kuchnię oraz klatkę schodową. Wszystkie te przestrzenie łączą się w jedną, płynnie przenikającą się całość.

Arch. re:architekti

Drugie piętro znajduje się w poddaszu dwuspadowego dachu, gdzie zaplanowano sypialnię i pokój gościnny. Cała konstrukcja oparta na belkach drewnianych, naturalnym odcieniu drewna oraz jasnej drewnianej podłodze i schodach, tworzy atmosferę ciepła i tradycji czeskich domków z bali.

Arch. re:architekti

Projekt łączy elementy nowoczesnej stodoły z tradycyjnym rzemiosłem, idealnie wpasowując się w lokalny kontekst wsi. Drewniana okładzina i geometryczna konstrukcja nadają budynkowi ponadczasowy charakter, który jednocześnie pasuje do współczesnych potrzeb mieszkańców.