Fot. Lauren Moore | Arch. Terremoto Landscape + EARL + SheetrockLA

Górskie chatyblisko natury

Projekt Colorado Lodge to trwający wciąż eksperyment projektowy, który dotyczy nie tylko budowy, ale też przyjaźni. To zespół kompaktowych domków na wynajem, które rozrzucono na ok. 3 tysiącach metrów kwadratowych pięknego terenu w Big Bear w Kalifornii. Pod względem koncepcyjnym, chodzi o to, by być jak najbliżej przyrody.

Fot. Lauren Moore | Arch. Terremoto Landscape + EARL + SheetrockLA

„Trafiliśmy na tę nieruchomość i niewiele nad tym myśląc, kupił ją jeden z naszych drogich przyjaciół. Domki były w strasznym stanie, ale działka była zachwycająca. Była jednocześnie przyjemnie odizolowana, ale niezbyt oddalona od miasta. Pojawiły się iskry i tak zaczął się ten romans” mówią autorzy projektu.

Fot. Lauren Moore | Arch. Terremoto Landscape + EARL + SheetrockLA

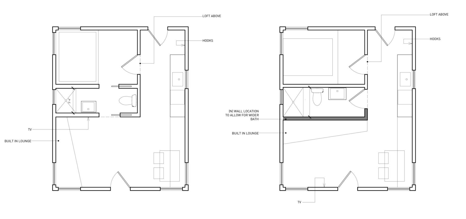
Projektanci postanowili pozostawić chatki od zewnątrz w niezmienionym stanie, neutralizując je jedynie poprzez pomalowanie ich na czarno. Wnętrza domków miały być jednak zupełnie przebudowane. Chodziło o to, by w starym ciele zamieszkał nowy duch. We wnętrzach zawitała minimalistyczna, wydajna finansowo paleta materiałów. Sklejka, która jest drewnem przetworzonym, ale wciąż naturalnym, nawiązuje do lasu i drzew, które dominują na działce. Na podłogach na parterze zastosowano linoleum, które swym wyglądem m przypominać ściółkę leśną. To co na zewnątrz, ma być bowiem odzwierciedlone wewnątrz.

Fot. Lauren Moore | Arch. Terremoto Landscape + EARL + SheetrockLA

Zmiany w krajobrazie działki zostały ograniczone do minimum, ponieważ – jak mówią projektanci – „tylko głupiec urządzałby ogród w lesie”. Stworzono więc jedynie rodzaj długiego ogrodzenia, które blokuje niepożądane widoki i zamyka całą nieruchomość. Na działce powstały też specjalne drewniane elementy, które ograniczają widoczność samochodów i tworzą niewidzialne wcześniej strefy podziału.