Fot. Ben Rahn/A-Frame Studio | Arch. Superkül

Dom z białą elewacjąi widokiem na naturę

Compass House to współczesna nowoczesna stodoła, zaprojektowana jako weekendowy dom dla sześcioosobowej rodziny powracającej z Wielkiej Brytanii do Kanady. Położony na malowniczym terenie Kuesty Niagary, dom powstał z potrzeby wyznaczenia nowego kierunku życia – w pełnej harmonii z naturą, światłem i przestrzenią.

Fot. Ben Rahn/A-Frame Studio | Arch. Superkül

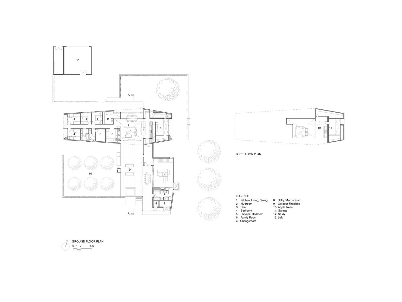
Biała bryła budynku wpisuje się w zmienność krajobrazu: zlewa się ze śniegiem zimą, kontrastuje z zielenią latem. Dwa skrzydła budynku w formie litery „L” tworzą wewnętrzny dziedziniec z zewnętrznym kominkiem, a niska, rozciągnięta forma nawiązuje do tradycyjnych domów wiejskich Ameryki Północnej i Europy. Lokalny kamień i naturalne drewno cedrowe oraz dębowe nadają wnętrzu ciepło i ponadczasowy charakter.

Fot. Ben Rahn/A-Frame Studio | Arch. Superkül

Dom posiada duże przeszklenia, świetliki dachowe i precyzyjnie rozmieszczone okna, które zapewniają maksymalny dostęp do światła dziennego oraz widok na otwarte niebo. Centralną część zajmuje kuchnia z jadalnią i salonem, a na końcach znajdują się przytulne sypialnie. Wszystko zaprojektowano z myślą o długowieczności – by dom starzał się z wdziękiem i służył rodzinie przez pokolenia.