Fot. François Dantart | Arch. NODE architectes

Dom inspirowany lokalnąarchitekturą Bretanii

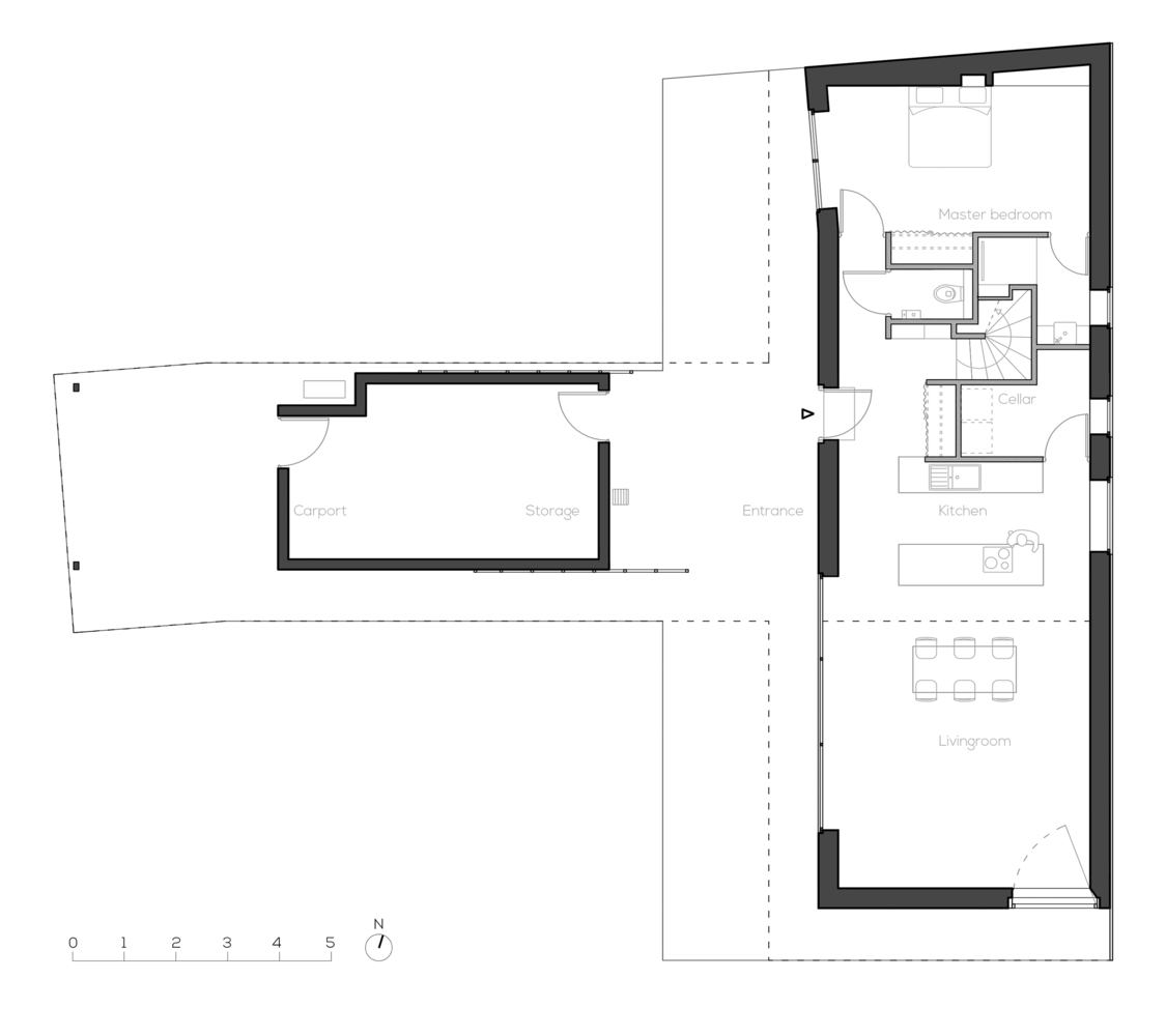
POG House to współczesna interpretacja tradycyjnej architektury bretońskiej – elegancka i funkcjonalna nowoczesna stodoła, zlokalizowana we francuskim Arradon. Dom powstał w otoczeniu zabudowy z lat 80-tych, gdzie dominuje biała elewacja i dachy z łupka. Architekci musieli wpisać się w lokalny kontekst, spełniając jednocześnie marzenie klienta o nowoczesnym, przestronnym domu z duszą.

Fot. François Dantart | Arch. NODE architectes

Budynek został zaprojektowany zgodnie z lokalnymi przepisami urbanistycznymi, a jego forma czerpie z tradycyjnych domów z granitu. Biała tynkowana elewacja nawiązuje do sąsiednich budynków, natomiast ciemne aluminiowe pokrycie dachu imituje tradycyjny łupek, który nie jest już produkowany lokalnie. Dwuspadowy dach o kącie nachylenia 60° nadaje bryle nowoczesny, dynamiczny charakter, a jednocześnie wpisuje się w wiejski styl. Od strony północnej dom jest bardziej zamknięty, ale otwiera się szeroko na południowy wschód i południowy zachód, oferując duże przeszklenia i kontakt z ogrodem.

Fot. François Dantart | Arch. NODE architectes

Wnętrze to połączenie naturalnego światła, przestrzeni i funkcjonalności. Salon o podwójnej wysokości został zaprojektowany z myślą o pasji właściciela do gry na harfie, zapewniając akustykę i przestrzeń. Na piętrze sypialnie mają oryginalne formy – przypominające tipi – dzięki stromemu dachowi. Jedna z nich posiada taras widokowy w koronie drzewa, druga oferuje widok z góry na salon.

Fot. François Dantart | Arch. NODE architectes

W całym domu dominują białe ściany i sufity, które odbijają światło dzienne, tworząc spokojną, jasną atmosferę. Drewniane okna i podłogi dodają ciepła i przytulności, równoważąc minimalistyczną estetykę. POG House to przykład, jak nowoczesna stodoła może harmonijnie łączyć lokalne dziedzictwo z nowoczesnym stylem życia.