Fot. Jennifer Hughes | Arch. Robert Gurney Architect

Dom nadbrzegiem Delaware

Amerykańskie studio zaprojektowało dom nad wodą w Delaware, składający się z „prostych i czystych form” owiniętych białym cedrem, odzyskanym drewnem ze stodoły i panelami włókno-cementowymi. Pracownia Robert Gurney Architect zaczerpnęła wskazówki z lokalnego języka, aby stworzyć dom wakacyjny dla pary. Na piaszczystym terenie zwróconym w stronę wody zespół stworzył prostoliniowy, trzykondygnacyjny budynek o łącznej powierzchni 542 metrów kwadratowych. Dom pełni funkcję „nowoczesnego azylu”, z naciskiem na widoki i życie wewnątrz i na zewnątrz.

Fot. Jennifer Hughes | Arch. Robert Gurney Architect

Budynek podzielono na kilka brył o dwuspadowym dachu, z przeszklonym łącznikiem pośrodku. Wzdłuż elewacji ulicy zespół dodał bryłę z płaskim dachem, zwieńczoną aluminiową kratą. Taras na dachu służy tam jako „scena, z której można podziwiać zachód słońca nad zachodnią zatoką”. Elewacje pokryto białym gontem cedrowym oraz drewnem odzyskanym ze stodoły w Delaware. Bryłę z kratą pokryto ciemnymi panelami włókno-cementowymi. Materiały te mają być trwałe i zrównoważone.

Fot. Jennifer Hughes | Arch. Robert Gurney Architect

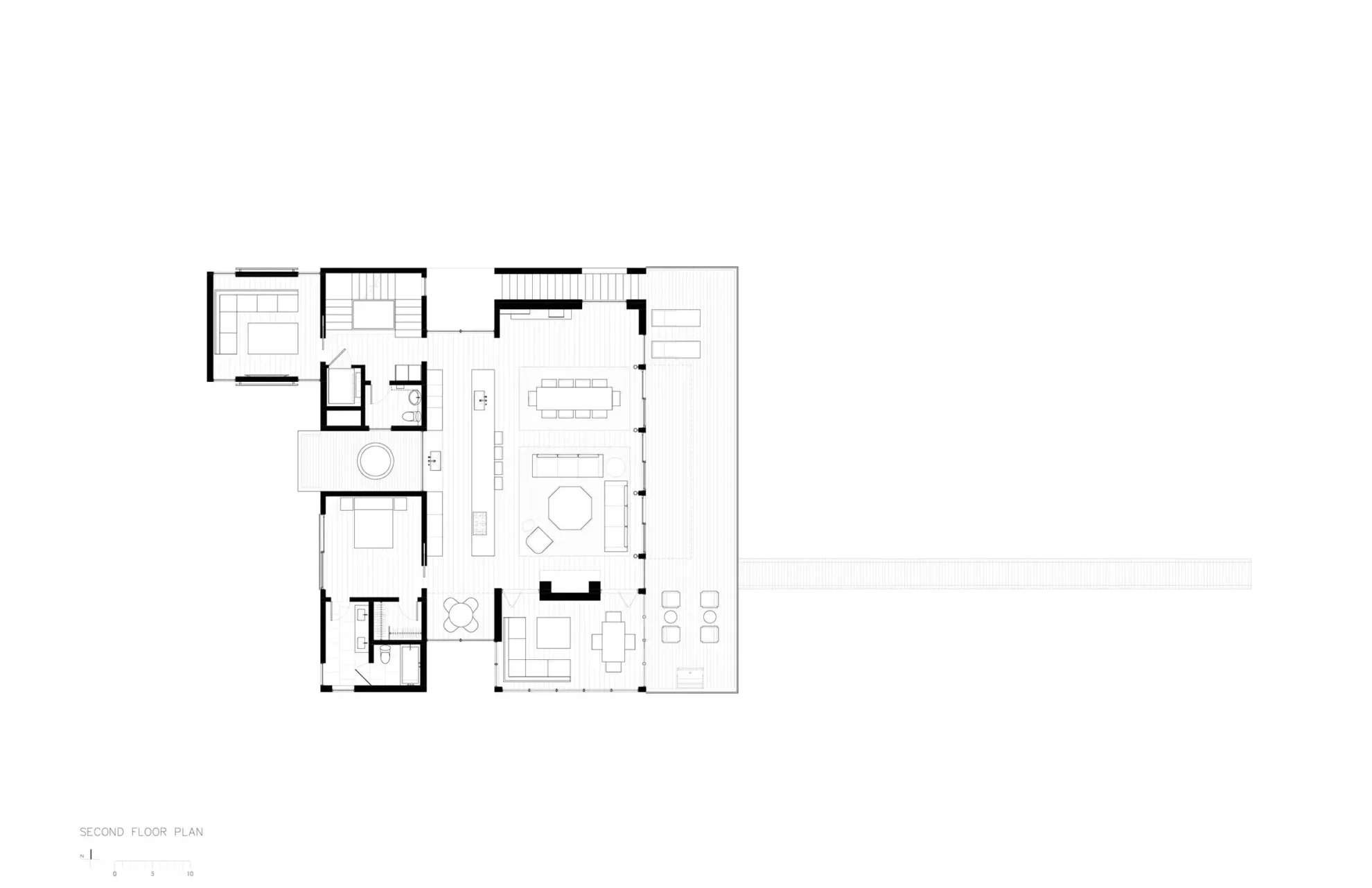
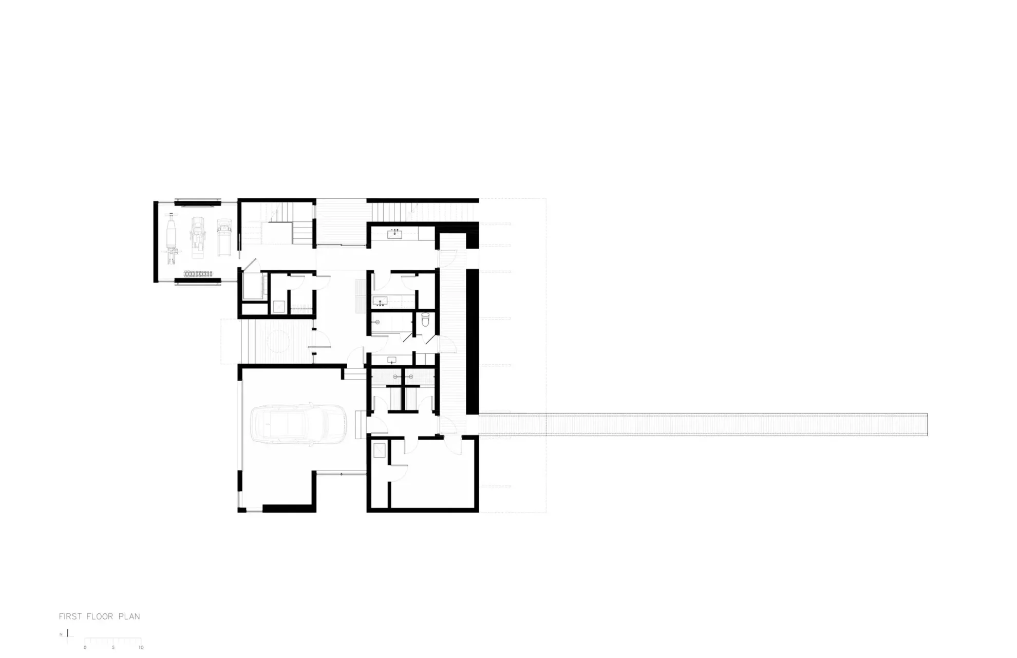
Wewnątrz na trzech poziomach znajduje się mieszanka przestrzeni publicznych i prywatnych. Na parterze znajduje się garaż, komórka lokatorska, siłownia, łazienka i mała kuchnia. Wyżej znalazła się główna strefa wspólna, przestrzeń medialna oraz sypialnia. Na samej górze znajduje się kilka dodatkowych sypialni oraz pralnia.

Fot. Jennifer Hughes | Arch. Robert Gurney Architect

Wnętrze nowoczesnej stodoły charakteryzuje się ziemistymi wykończeniami, takimi jak podłoga z białego dębu i panele ścienne z odzyskanego drewna. Schody wykonano z białego dębu i stali. Centralny kominek posiada obudowę wykonaną ze stali. Duże przeszklenia pomagają zanurzyć mieszkańców w nadmorskim krajobrazie. „Duże okna zacierają granicę między wnętrzem a zewnętrzem, jednocześnie podkreślając momenty światła i cienia na płaszczyznach białych ścian” stwierdził zespół.