Fot. Lina Németh | Arch. PRODESI

Drewniana perław Górach Izerskich

Teren w miejscu budowy domu w Górach Izerskich w Czechach delikatnie opada w kierunku wschodnim. Na działce rosną dwie duże lipy, a patrząc na zachód widzimy sporą łąkę. Wschodnią granicę działki zamyka droga dojazdowa, z której rozciągają się piękne widoki na pojawiające się w oddali szczyty górskie. Na południe od domu znajduje się centralna część maleńkiej wioski z barokową plebanią, kościółkiem i dawną szkołą. nowoczesną stodołę zwrócono w kierunku wioski. Z jej okien widać przestrzeń pomiędzy kościołem i starym szkolnym budynkiem. Aby mieszkańcy mogli cieszyć się widokiem na góry, wyższe piętro ma duże okno, z którego widać okolicę i horyzont. Nowoczesną stodołę położono za lipami, a krawędź jego dachu biegnie równolegle do topografii terenu, podobnie jak większość budynków w pobliżu.

Fot. Lina Németh | Arch. PRODESI

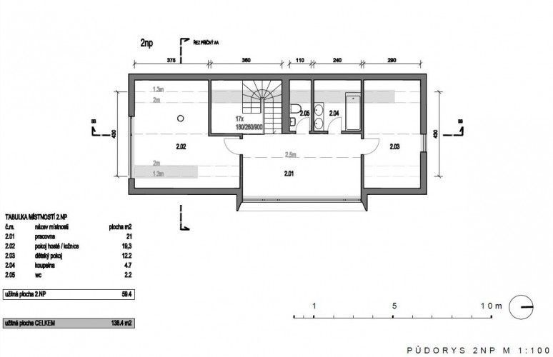
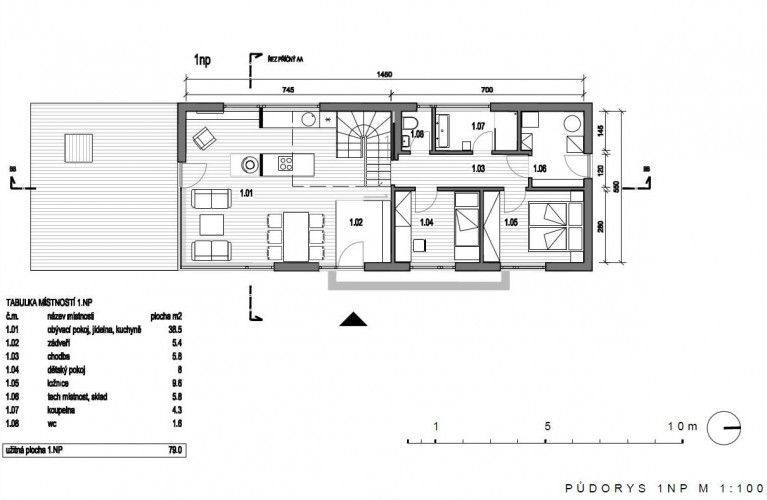
Cały dom z zewnątrz dopasowano do miejscowego stylu architektonicznego, co podkreśla jeszcze spadzisty kształt dachu. Jego mocny charakter tworzy drewniane pokrycie dachu oraz ułożona pionowo deska na ścianach. Okna poddasza wcinają się w jednostajną powierzchnię domu, zbliżając domowników do szczytów pobliskich drzew i oferując jeszcze lepsze widoki na góry. Parter, do którego prowadzi wejście od strony wschodniej, podzielony jest na część salonu skierowaną na wioskę i  na południowy wschód. Sypialnie również mają okna skierowane na wschód. Część górna na razie tworzy przestrzeń otwartą, ale później pojawi się tu druga łazienka, gabinet i kolejne sypialnie.