Fot. KURT HÖRBST | Arch. mia2/Architektur

Nowoczesny domw Austrii

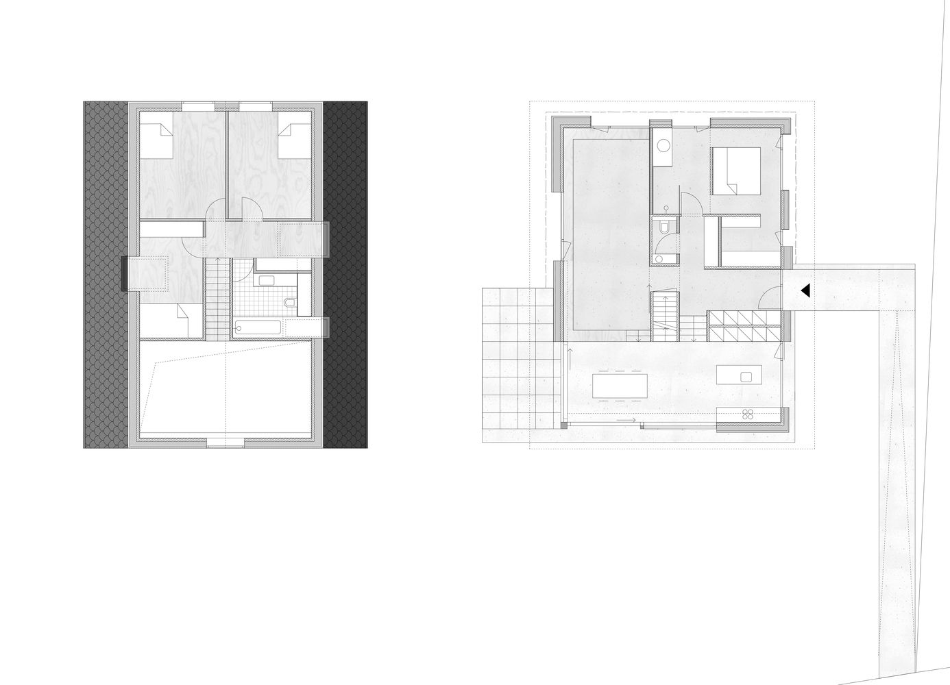
Projekt o nazwie „House with gable”, czyli dom o klasycznej formie z dwuspadowym dachem, powstał w Austrii. Prywatni inwestorzy chcieli zbudować dom, który dopasuje się do lokalizacji, otworzy się na widoki i połączy wnętrza z naturalnym otoczeniem. Działka znajduje się na skraju niewielkiej osady, oferując piękny widok na alpejski region Pyhrn-Priel. Rodzina poprosiła o spokojną, czystą formę architektoniczną oraz połączenie drewna, betonu i szkła. Architekci stworzyli więc solidny, drewniany dom, którego starannie wybrane elementy są jednocześnie proste i złożone.

Fot. KURT HÖRBST | Arch. mia2/Architektur

Dom ma powierzchnię 156 m2, a projekt wykorzystuje pochyły teren działki, wznosząc się na wyższej części zbocza, dzięki czemu powstało wrażenie przestronnej przestrzeni dziennej, osadzonej – zależnie od pory roku – w trawie lub śniegu. Znajdujące się w tej części kuchnia i salon mają wystarczająco dużo miejsca, by rozciągnąć się w części niższej działki. Wysokość domu idealnie dopasowuje się do topografii miejsca, a lekko uniesione stanowisko gwarantuje wspaniałe widoki na góry.

Fot. KURT HÖRBST | Arch. mia2/Architektur

Właściciele i architekci od samego początku kładli duży nacisk nie tylko na wygląd, ale także na jakość ekologiczną i biologiczną. Wykorzystano ograniczoną część działki, budując dom z drewna i ocieplając go celulozą. Choć budżet na budowę domu i jego wykończenie był skromny, dzięki zastosowaniu prostej konstrukcji oraz minimalistycznej różnorodności materiałów i form, udało się osiągnąć maksymalną jakość i komfort.