Arch. North River Architecture

nowoczesne przedłużenieXVIII-wiecznej farmy

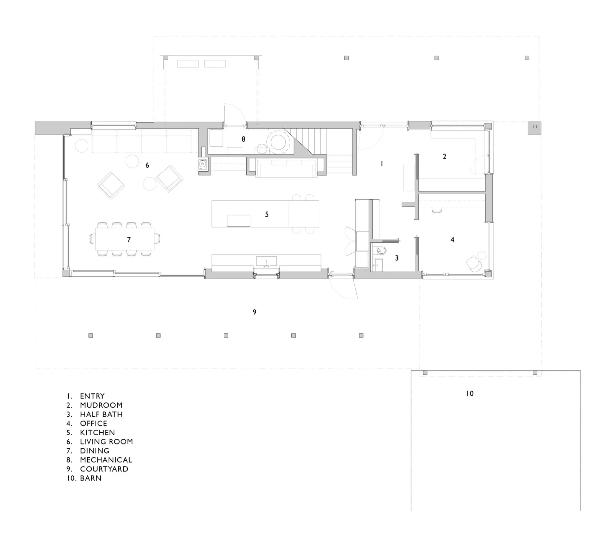
Architekci zaprojektowali dom pasywny Gallatin jako przedłużenie XVIII-wiecznej farmy, zmieniając istniejącą stodołę na przestrzeń do zabawy dla trójki dzieci właściciela. Projekt zrealizowano na terenie dawnej farmy zajmującej działkę o powierzchni 66 hektarów w dolinie Hudson. Okolica ta słynie z wielu sadów i winnic i jest popularnym miejscem na wypoczynek.

Arch. North River Architecture

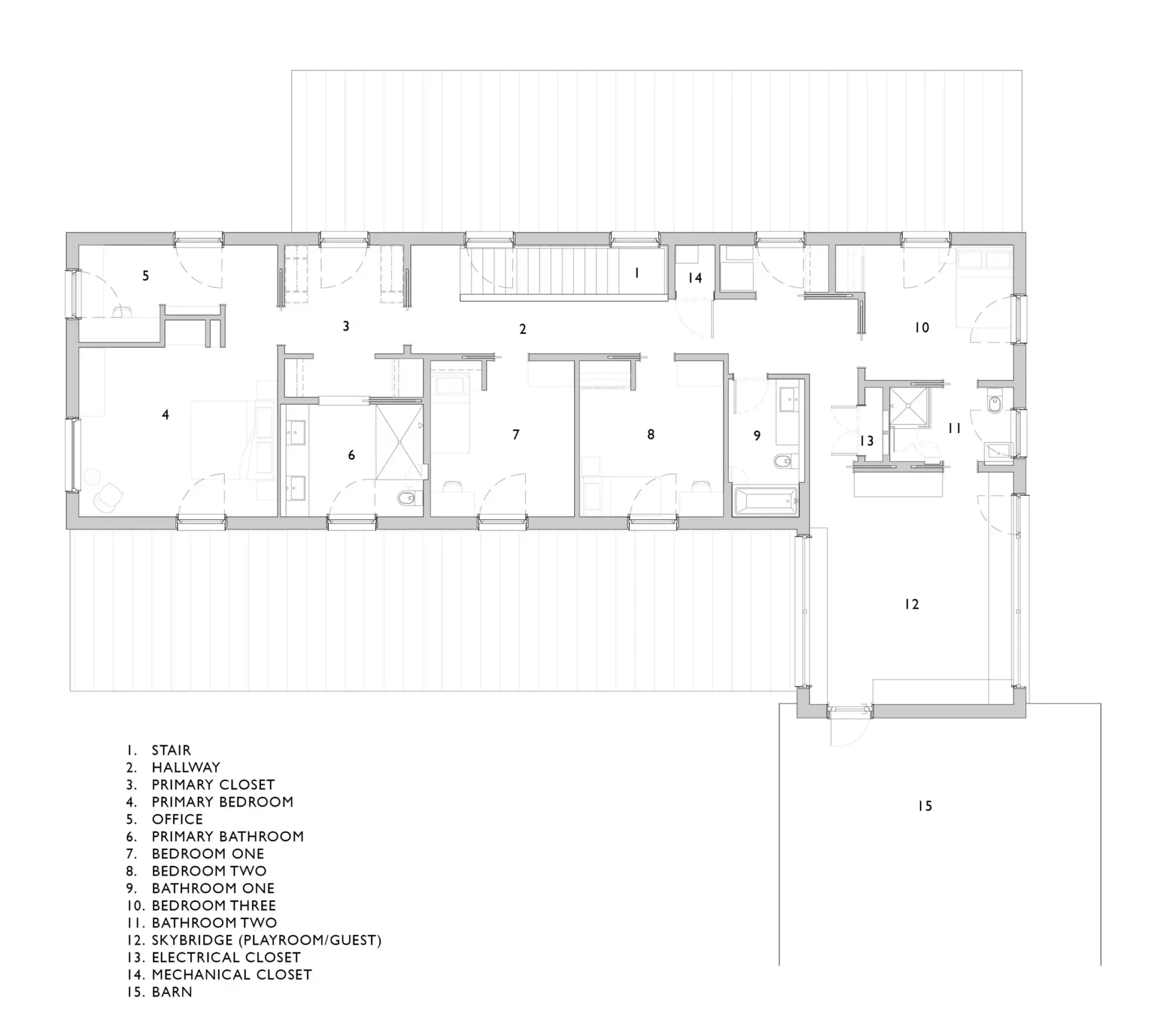
Dwupiętrowy dom ma powierzchnię 315 metrów kwadratowych i ma cztery sypialnie. Głębokie nawisy na każdym z długich boków prostokątnej bryły zapewniają bufor pomiędzy przestrzenią wewnętrzną i zewnętrzną. Architekci dodali domowe biuro na parterze, podczas gdy pozostała część tego poziomu poświęcili otwartej kuchni, salonowi i jadalni. Przestrzeń ta ma wbudowane szafki, które maksymalizują miejsce do przechowywania. Otwierają się także na częściowo zamknięty dziedziniec pomiędzy domem a pobliską stodołą. Na piętrze znajdują się trzy sypialnie dla dzieci, a także główny apartament, w którym znajduje się jeszcze jedno małe biuro.

Arch. North River Architecture

„Projekt łączy nowy dom z całkowicie odrestaurowaną XVIII-wieczną holenderską stodołą, obecnie przystosowaną do wielofunkcyjnych imprez, pracy i, co najważniejsze, odpornego na warunki pogodowe obszaru rekreacyjnego dla trójki dzieci właściciela”  mówią architekci.

Arch. North River Architecture

Pokój zabaw tworzy podniebny pomost do stodoły, łącząc stare i nowe konstrukcje i tworząc zadaszoną przestrzeń zewnętrzną na parterze. Surowe wykończenia stodoły kontrastują z resztą domu. Drewniana konstrukcja i okładziny pozostały odsłonięte, co kontrastuje z nową stalową klatką schodową zainstalowaną w ramach renowacji. Przy całym projekcie zastosowano recykling materiałów.