Fot. Zooey Braun Photography | Arch. ARSP Architekten

Eleganckie połączeniehistorii i współczesności

W osiedlu domów jednorodzinnych Rüttenersch w Dornbirn znajduje się wyjątkowy dom o modernistycznym rodowodzie, zaprojektowany w 1929 roku przez architekta Wilhelma Fleischa na zlecenie miasta. W 1935 roku bryłę rozbudowano o 4 metry w stronę ogrodu. Dziś, dzięki przemyślanej renowacji, budynek stał się przykładem tego, jak zmodernizować architekturę z historią, zachowując jej charakter i wpisując się w współczesne potrzeby mieszkańców.

Fot. Zooey Braun Photography | Arch. ARSP Architekten

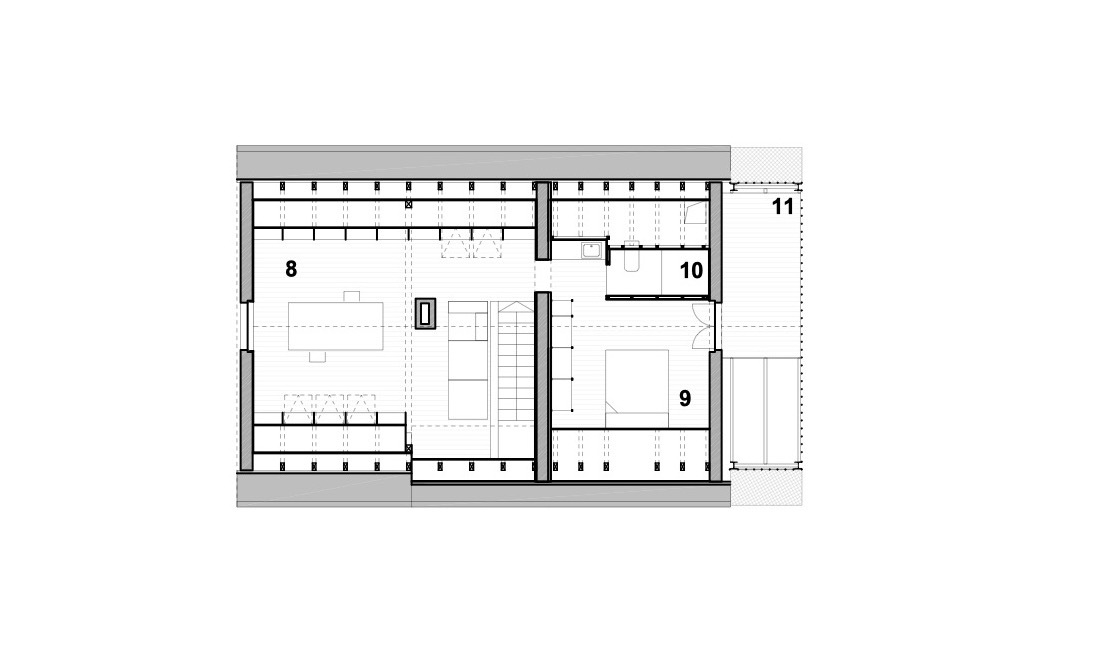
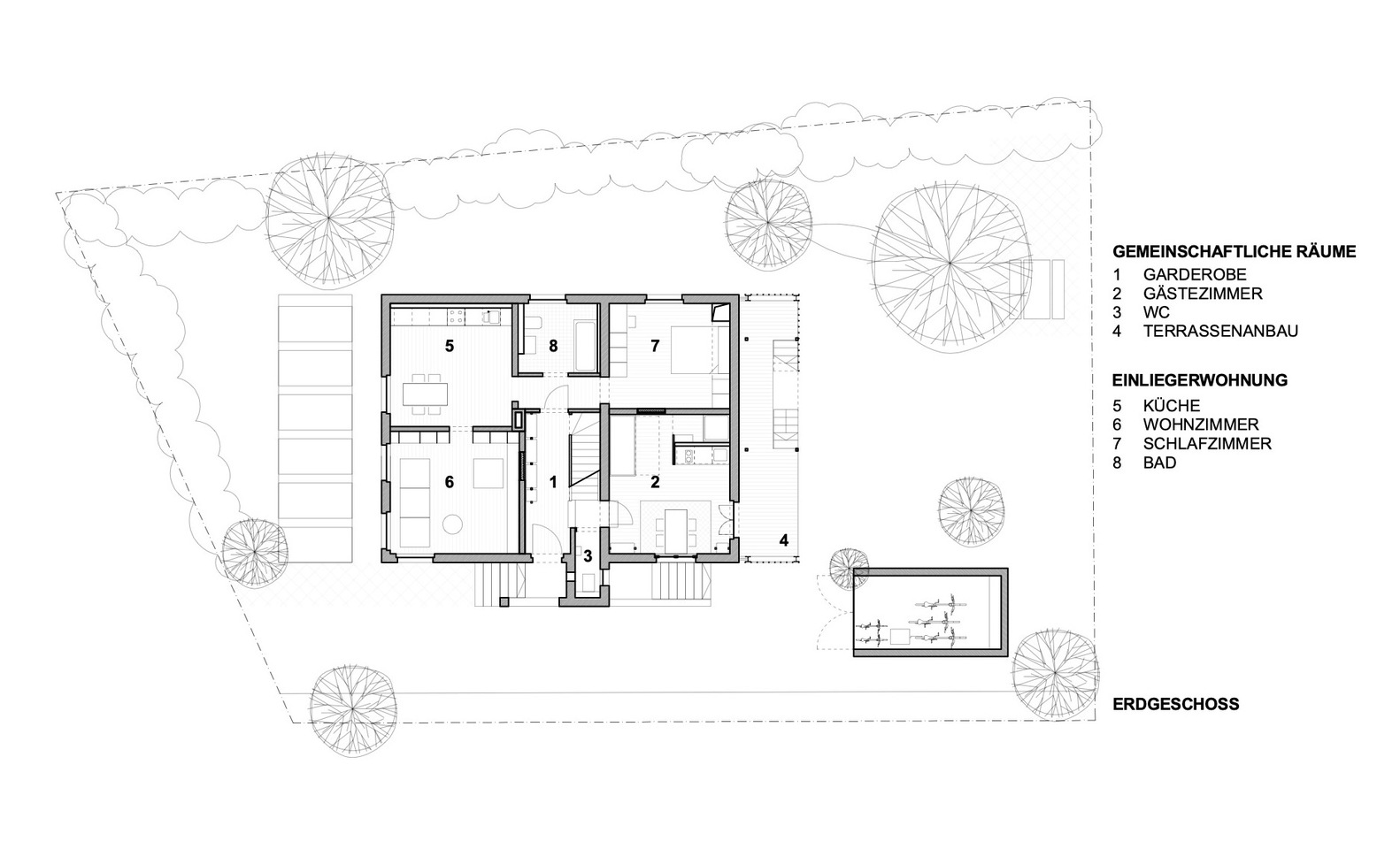
Projekt renowacji uwzględnił zachowanie oryginalnej struktury przestrzennej: niewielkie mieszkanie na wynajem i pokój gościnny na parterze oraz funkcjonalne mieszkanie rodzinne zajmujące dwie górne kondygnacje. Przebudowa wyższych pięter opierała się na nowej koncepcji mieszkaniowej właściciela – ściany zostały przesunięte, a układ wnętrz dostosowany do naturalnego światła i widoków, tworząc harmonijne, logiczne sekwencje pomieszczeń.

Fot. Zooey Braun Photography | Arch. ARSP Architekten

Na północnej elewacji, dotąd niezabudowanej, pojawiła się stalowa nadstawka, która biegnie przez wszystkie kondygnacje. Ta współczesna ingerencja wprowadza nową jakość – abstrakcyjny język formy, który kontrastuje z klasyczną bryłą budynku. Dzięki ograniczonej palecie materiałów – głównie stali, szkła i tynku – forma zyskała niemal rzeźbiarski charakter, przypominający nowoczesną stodołę w miejskim wydaniu.

Fot. Zooey Braun Photography | Arch. ARSP Architekten

Od strony ulicy budynek zachował swój pierwotny wygląd – kolorystyka i materiały fasady zostały dostosowane do historycznego kontekstu osiedla, ale wnętrze w pełni odpowiada współczesnym standardom projektowania domów jednorodzinnych. To subtelne połączenie nowego i starego czyni ten dom unikatowym przykładem rewitalizacji z poszanowaniem architektury modernistycznej.