Fot. Pavel Plánička | Arch. 3+1 architekti
  • Architekt

    3+1 architekti
  • Fotograf

    Pavel Plánička
  • Lokalizacja

    Děčín, Czechy

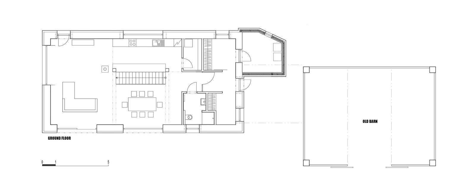
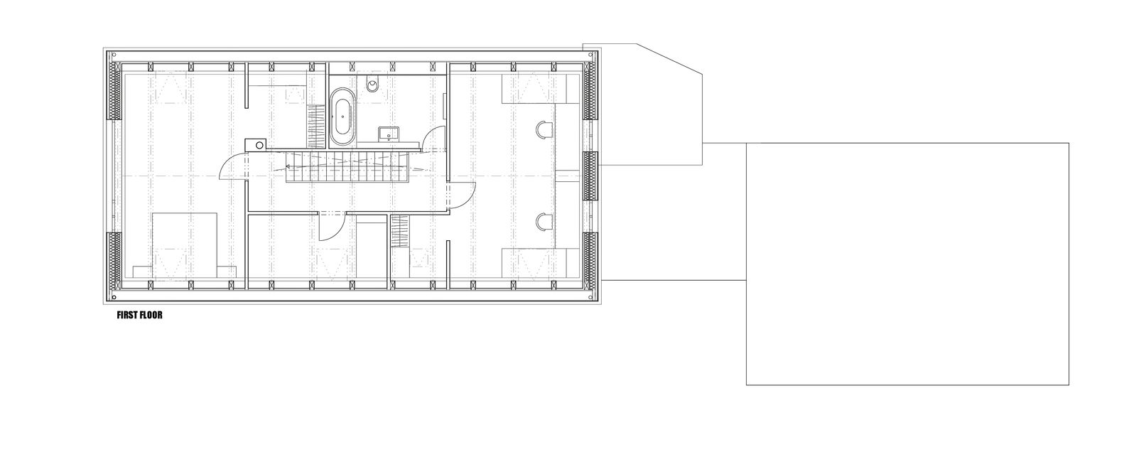
Nowy domw Górach Połabskich

Stary dom, który stał w tym miejscu, choć pełen magii, był zbyt mocno zdefiniowany przez swą organizację przestrzeni, konstrukcję oraz materiały. Nie nadawał się do klasycznej rekonstrukcji. Z tego powodu właściciele oraz architekci z firmy 3+1 architekti zaprojektowali nowy dom. Zachowali jednak dawną organizację działki i współistnienie starej lipy, domu i stodoły. nowoczesna stodoła o powierzchni 117 m2 powstał w mieście Děčín w Górach Połabskich, w północno-zachodnich Czechach.

Fot. Pavel Plánička | Arch. 3+1 architekti

Piękne, ale masywne ściany z piaskowca i małe pomieszczenia starego domu zastąpiono bardziej nowoczesnymi materiałami. Pozwoliło to architektom stworzyć większe i otwarte przestrzenie, zachowując jednak podobne proporcje dawnego budynku. Drewniana, monochromatyczna powłoka domu stanowi spokojne tło dla wciąż zmieniających się kolorów w przyrodzie otaczającej zabudowania.

Fot. Pavel Plánička | Arch. 3+1 architekti

W tym projekcie nowe elementy nakładają się na stare i odwrotnie. Właściciel domu jest z zamiłowania kolekcjonerem i jego zbiory dopełniają oryginalny charakter całego projektu. Stare motywy przeplatają się tutaj z nowymi, tworząc jednak spójną całość. Architekci połączyli nowy dom i starą stodołę jednym dachem, tworząc między nimi nową, bliższą relację. Dom, choć jest zupełnie nowy, można bez wątpienia nazwać „projektem renowacyjnym”, ponieważ podstawą tego projektu stała się jego „świadoma ciągłość”.