Fot. Peter Bennetts | Arch. Austin Maynard Architects

Uniesiony domnad plażą

„Kilka lat temu Kate i Grant pokazali nam swoją, piękną, starą chatę. Stała na zalesionym terenie w pobliżu oceanu” – wspominają architekci firmy Austin Maynard Architects. Właściciele kochali to miejsce i bardzo je sobie cenili. Zadali więc architektom pytanie: „Jak moglibyśmy stworzyć niczym niezakłócony widok z wyższego miejsca bez burzenia, niszczenia i przytłaczania ukochanej chaty?”. Życzenie było więc proste, ale niestety problematyczne. Takie rozwiązania łatwo stają się drogie i skomplikowane. Wiele osób w podobnych przypadkach ostatecznie decyduje się na zburzenie starej konstrukcji i rozpoczęcie budowy od nowa. To decyzja ekonomiczna, którą podejmuje wielu właścicieli starych chat i szop, kosztem miejscowego lub rodzinnego dziedzictwa. Renowacja musiała zatem być dobrze przemyślana.

Fot. Peter Bennetts | Arch. Austin Maynard Architects

„Naszym wyzwaniem było uniknięcie tego, co zrobiło wielu sąsiadów w tej okolicy i co robi wielu właścicieli starych, nadmorskich domów. Nie zgadzaliśmy się na to, by stać się częścią powolnej erozji zbiorowej pamięci kulturowej tego miejsca. Kate i Grant nie mogli bardziej się z nami zgadzać” piszą architekci.

Fot. Peter Bennetts | Arch. Austin Maynard Architects

Obecny “Dorman House” to świetnie wykonane drewniany dom. Zaprojektowano tak, by w sposób niezależny zawisnąć nad starym, plażowym domem w miejscowości Lorne. W przeciwieństwie do swych sąsiednich zabudowań, nową konstrukcję wykonano tak, by z czasem widać było na niej upływ czasu i działanie warunków atmosferycznych. Dzięki temu na nowo „zanurzy się ona w otaczającej ją przyrodzie”.

Fot. Peter Bennetts | Arch. Austin Maynard Architects

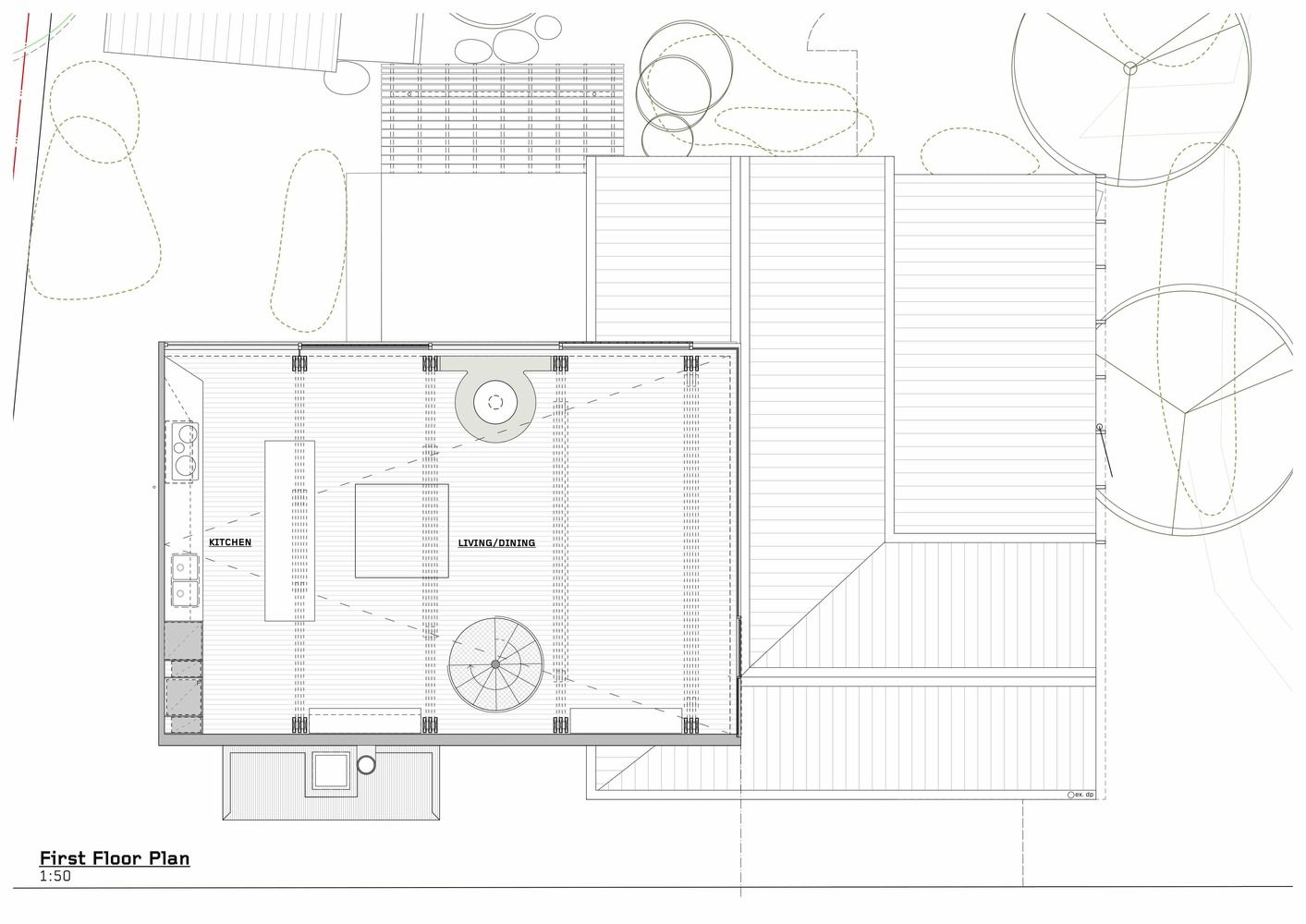
Uniesiona wyżej część spoczywa na solidnych, drewnianych belkach i zawiera kuchnię, jadalnię oraz salon, gdzie wchodzi się po spiralnych schodach. Nowa przestrzeń dzienna nie wysuwa się ponad starą konstrukcję i linie dawnego budynku, dzięki czemu nie dominuje niepotrzebnie nad pierwotnym budynkiem. Stara kuchnia poniżej została przerobiona na drugą łazienkę i pralnię, ale większość starego domu pozostała niezmieniona. Wszystko posprzątano i odmalowano, pozostawiając stary urok powojennego zabudowania.