Fot. Maxime Brouillet | Arch. Atelier Boom-Town

Minimalizm i ekologiaw kanadyjskim krajobrazie

Projekt Driftwood Chalet autorstwa Atelier Boom-Town to nowoczesna stodoła w La Malbaie, w pobliżu ujścia rzeki Świętego Wawrzyńca. Zainspirowany dryfującym drewnem, budynek łączy minimalistyczny design z naturalnym krajobrazem. Jego cedrowa elewacja zmienia kolor pod wpływem morskiego powietrza, przechodząc w szarosrebrny odcień, co nadaje mu charakterystyczny nadmorski wygląd.

Fot. Maxime Brouillet | Arch. Atelier Boom-Town

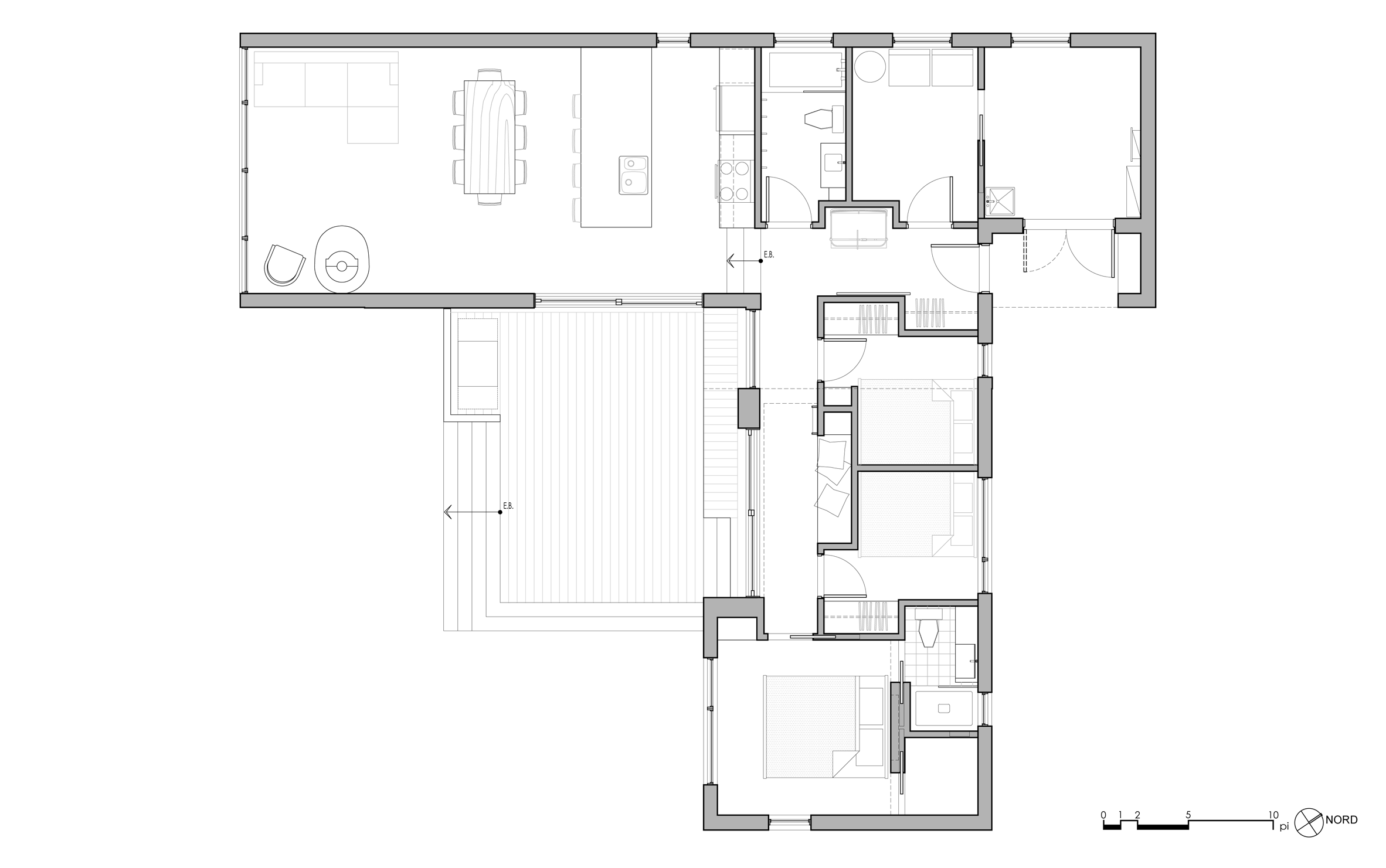
We wnętrzu projektanci zastosowali minimalizm skandynawski, wykorzystując monochromatyczne kolory oraz drewno. Polerowany beton na podłogach wprowadza nowoczesny akcent, a przestronny salon, kuchnia i jadalnia oferują panoramiczny widok na rzekę dzięki dużym oknom. Przesuwne drzwi prowadzą na taras, a wzdłuż korytarza znajdują się trzy sypialnie oraz przytulna wnęka do czytania.

Fot. Maxime Brouillet | Arch. Atelier Boom-Town

Driftwood Chalet to kompaktowy dom o powierzchni 122 m², zaprojektowany z myślą o zrównoważonej architekturze. Każdy element, od przesuwanej drabiny prowadzącej do antresoli po wybór lokalnych materiałów, minimalizuje wpływ na środowisko. To przykład nowoczesnej ekologicznej budowy, która łączy estetykę z funkcjonalnością.