Fot. Juozas Kamenskas | Arch. Studija Archispektras

Elegancja natury i nowoczesności:dom na wydmie

Wiatr i zachód słońca, kitesurferzy i łodzie, wydmy oraz łąki. To krajobraz stanowiący tło dla projektu o nazwie „Dune House”, stworzonego przez firmę ARCHISPEKTRAS.

Fot. Juozas Kamenskas | Arch. Studija Archispektras

W otoczeniu piasku i wysokich traw z dzikimi kwiatami o wciąż zmieniających się kolorach powstał niezwykle oryginalny dom wakacyjny o powierzchni 175 m². Działka znajduje się w Pape na Łotwie, w bliskim sąsiedztwie plaży i Morza Bałtyckiego. Tu życiem rządzą swoiste doświadczenia, wszystko ma inny wymiar. Nawet horyzont wydaje się mieć bardziej nierealne znaczenie.

Fot. Juozas Kamenskas | Arch. Studija Archispektras

Dom stoi na wydmie, a jego ostre linie proste nadają całej konstrukcji elegancję i dopasowują ją do łagodnych linii otoczenia. Dach i znaczną część elewacji wykonano ze słomy, dzięki czemu całość jeszcze lepiej integruje się z nadmorskim krajobrazem. Materiał ten starannie dobrano, by pasował do kolorów i materiałów stosowanych na typowych, lokalnych budynkach.

Fot. Juozas Kamenskas | Arch. Studija Archispektras

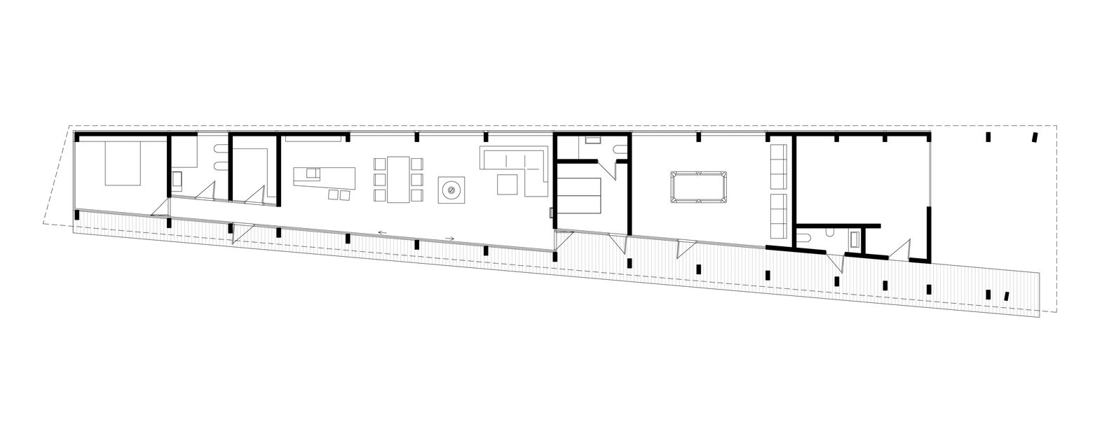
Architekci z firmy ARCHISPEKTRAS mieli jeden cel – zaprojektować wakacyjny dom dla rodziny kitesurferów, w którym mogliby relaksować się, ciesząc się nie tylko pięknym otoczeniem, ale też wszelkimi wygodami współczesnego życia.Wszystkie pomieszczenia w tym domu zwrócono na niekończący się horyzont morski. Salon, kuchnię, jadalnię oraz miejsca wypoczynkowe zebrano razem. Przestrzenie na różnych poziomach tworzą możliwości przenikania się nadanych im funkcji oraz interakcji społecznych. Światło wpadające tu ze świetlików w dachu nadaje wnętrzom lekki, przewiewny charakter.

Fot. Juozas Kamenskas | Arch. Studija Archispektras

Jasne wnętrze wypełniono drewnem i ciepłem. To połączenie odrobiny surowości z miękkością. Cały dom zachęca do relaksu i od progu wprowadza w wakacyjny nastrój.