Fot. projekt mech

Nowoczesna stodoła,która łączy

Dwie zaprzyjaźnione rodziny pod jednym dachem? Ten projekt udowadnia, że to możliwe. Ta nowoczesna stodoła łączy prywatność z przestrzenią wspólnego życia i stanowi przykład zdrowego, ekologicznego domu. Prosta forma architektoniczna kryje dwa odrębne mieszkania, a jednocześnie otwarty salon z kominkiem i kuchnią staje się sercem budynku. To miejsce pełne światła, gdzie rodziny gotują, odpoczywają i celebrują codzienność.

Fot. projekt mech

Różne potrzeby, wspólna przestrzeń

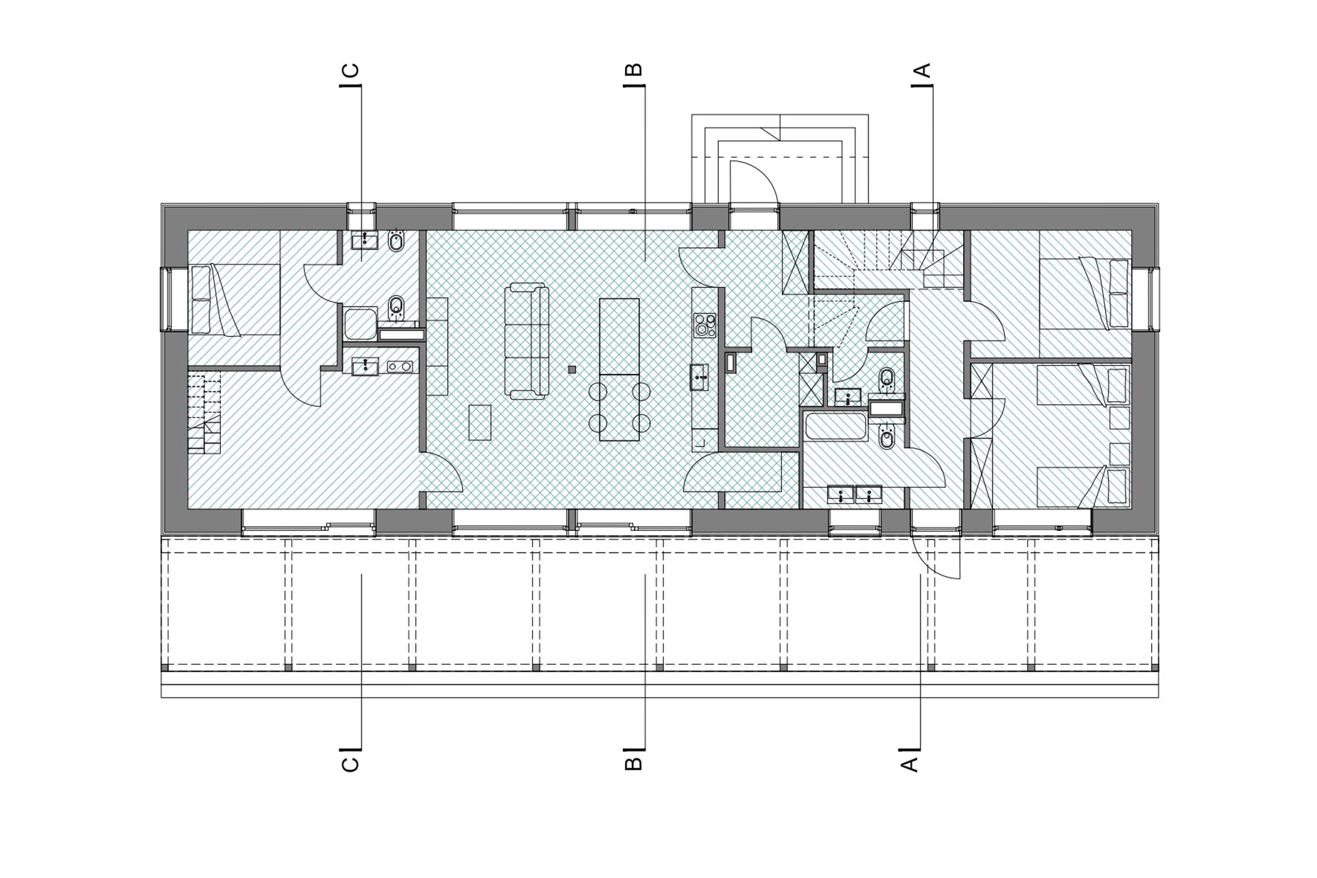
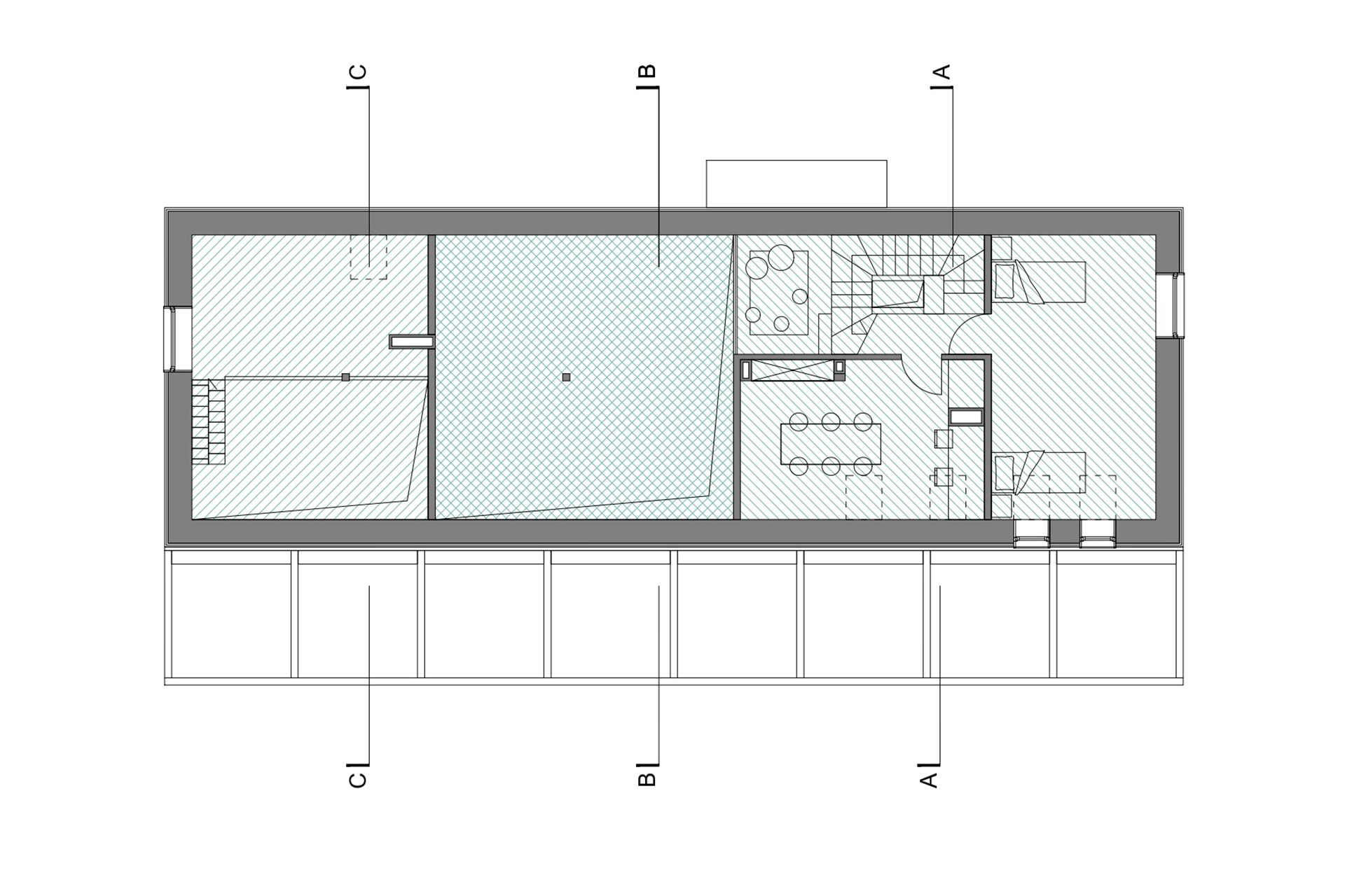
Zachodnia część domu to kompaktowe studio dla pary, która nie planuje powiększania rodziny. Program funkcjonalny obejmuje sypialnię z prywatną łazienką, niewielki pokój dzienny połączony z kuchnią oraz antresolę dostępną po drewnianych schodach – idealną jako kącik pracy czy przestrzeń relaksu.

We wschodniej części powstała przestrzeń dla rodziny z dwójką dzieci, z możliwością dostosowania jej do większych potrzeb w przyszłości. Parter mieści sypialnie i łazienkę, a na poddaszu znajdują się dwa dodatkowe pokoje przeznaczone na naukę, zabawę lub codzienne życie. Przy schodach zaprojektowano kącik do gier planszowych, oddzielony od salonu przeszkloną ścianą, co pozwala na wspólne spędzanie czasu bez rezygnacji z prywatności.

Fot. projekt mech

Dom zdrowy i przyjazny środowisku

Budynek został zaprojektowany jako nowoczesna stodoła, w której mieszkańcy dzielą się kosztami utrzymania i wspólnie opiekują się ogrodem oraz częścią wspólną. Konstrukcję tworzy drewniany szkielet wypełniony kostkami sprasowanej słomy, a ściany wykończono naturalną gliną od środka i drewnem od zewnątrz. Takie rozwiązania zapewniają zdrowy, naturalny mikroklimat oraz doskonałą izolacyjność.

Duże przeszklenia od strony południowej umożliwiają pasywne dogrzewanie zimą, a markizy regulują dostęp światła latem. Jasny dach odbija promienie słońca, ograniczając nagrzewanie się poddasza. Od północy zastosowano mniejsze okna, które nie wychładzają wnętrza, a jednocześnie pozwalają na skuteczną wentylację.

Fot. projekt mech

Ekologiczne rozwiązania w praktyce

Projektanci postawili na technologie przyjazne środowisku: pompę ciepła, system odzyskiwania wody szarej, ekologiczną oczyszczalnię ścieków z polem rozsączającym oraz retencję wody deszczowej. Ogród permakulturowy, zaprojektowany wspólnie z mieszkańcami, dopełnia całość, czyniąc dom przykładem świadomego, zrównoważonego stylu życia.

Założenia projektowe

Projekt, opracowany w 2019 roku w Łubnie przez Jana Dowgiałło i Annę Zawadzką-Sobieraj, zakładał stworzenie domu o powierzchni użytkowej 160 m². Konstrukcja została zaplanowana jako drewniany szkielet wypełniony sprasowaną słomą, z wykorzystaniem naturalnych materiałów, takich jak drewno, wełna drzewna i glina. W projekcie przewidziano również szereg ekologicznych rozwiązań: pompę ciepła, system odzyskiwania wody szarej, przydomową oczyszczalnię ścieków, wentylację grawitacyjną, retencję deszczówki oraz pasywne dogrzewanie solarne.