Fot. BIAMS
  • Architekt

    BIAMS
  • Lokalizacja

    Bory Tucholskie, Polska

Nowoczesna stodoła wkrajobrazie Borów Tucholskich

W otoczeniu wody, lasów i rozległych terenów naturalnych Borów Tucholskich powstała imponująca willa w formie dwóch nowoczesnych stodół, zaprojektowana przez pracownię BIAMS. Rezydencja o powierzchni przekraczającej 1000 m² została zlokalizowana około 30 kilometrów na północ od Bydgoszcz, w miejscu, gdzie architektura mogła w pełni otworzyć się na krajobraz, światło i wodę. To dom luksusowy, ale jednocześnie silnie zakorzeniony w otoczeniu – monumentalny w skali, a zarazem precyzyjnie dopasowany do kontekstu.

Fot. BIAMS

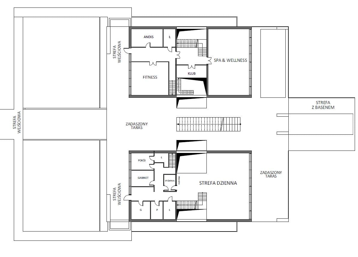
Dwie bryły – czytelny podział funkcji

Założenie składa się z dwóch niezależnych brył o archetypicznej formie nowoczesnej stodoły. Oba budynki połączono na kilku poziomach: w piwnicy poprzez wspólną część techniczną i garaż podziemny, na przyziemiu poprzez rozległe patio, a na poddaszu za pomocą tarasu słonecznego. Dłuższa bryła mieści na poziomie parteru główną strefę dzienną, natomiast na piętrze zlokalizowano prywatną część nocną właścicieli. Krótsza bryła pełni funkcję rekreacyjną i gościnną – zarówno na przyziemiu, jak i na poddaszu.

Takie rozdzielenie programu pozwoliło wyraźnie oddzielić część stałą od bardziej okazjonalnej, sezonowej, a jednocześnie zapewniło elastyczność użytkowania domu w zależności od liczby mieszkańców i gości.

Architektura podporządkowana krajobrazowi i wodzie

Skala domu jest odpowiedzią na rozległość działki, monumentalność krajobrazu oraz bliskość wody. Układ brył, tarasów i przeszkleń został podporządkowany nie tylko stronom świata, lecz także osi widokowej prowadzącej w kierunku jeziora. Przeszklone szczyty obu stodół otwierają wnętrza na panoramę wody, a dodatkowe przeszklenia w połaciach dachów dwuspadowych wprowadzają światło głęboko do środka budynku, wzmacniając relację między architekturą a naturą.

Fot. BIAMS

Materiały i minimalistyczna konsekwencja

Elewacje budynków zaprojektowano jako wentylowane okładziny HPL w jasnym, bielonym odcieniu inspirowanym skandynawskim drewnem. Materiał ten płynnie przechodzi ze ścian na dachy dwuspadowe, podkreślając jednorodność i czystość brył. Uzupełnieniem jest beton architektoniczny w odcieniu szarości, zastosowany na cokołach, podestach, wspornikach, postumentach oraz na tarasach i posadzkach zewnętrznych. Ograniczenie palety materiałowej do dwóch dominujących rozwiązań nadało całemu założeniu minimalistyczny, spokojny, a zarazem bardzo wyrazisty charakter.

Basen jako centralny element założenia

Szczególną rolę w projekcie odgrywa basen przydomowy, który nie jest jedynie dodatkiem do domu, lecz jednym z kluczowych elementów kompozycyjnych. Został on umieszczony centralnie, na osi całego założenia, pomiędzy dwiema bryłami. Jego forma – częściowo nadwieszona nad terenem – podkreśla nowoczesny charakter willi i wprowadza dodatkową dynamikę do kompozycji. Basen jest bezpośrednio dostępny z obu części domu oraz z tarasów położonych wyżej, z których prowadzi do niego reprezentacyjna klatka schodowa, również usytuowana na osi kompozycyjnej.

Fot. BIAMS

Luksusowa nowoczesna stodoła jako rezydencja

Projekt tej willi pokazuje, że forma nowoczesnej stodoły może zostać z powodzeniem przeskalowana do rangi luksusowej rezydencji. Dzięki świadomemu operowaniu bryłą, materiałem i krajobrazem powstał dom, który łączy monumentalność z klarownością układu i silnym związkiem z naturą. To architektura, w której przestrzeń, światło, woda i funkcja tworzą spójną, przemyślaną całość.