Arch. fabi architekten

Elegancka metamorfozadla rodziny

Istniejący dom jednorodzinny z 1963 roku miał zostać zachowany w swojej podstawowej strukturze, a jednocześnie wymagał powiększenia przestrzeni mieszkalnej dla trzyosobowej rodziny. Architekci połączyli poszanowanie dla pierwotnej bryły z nowoczesnymi rozwiązaniami. Elewację południową wysunięto o 1,25 m w głąb dawnego balkonu i całkowicie przeszklono na dwóch kondygnacjach, co zapewniło domownikom maksymalny dostęp do światła dziennego i widoku ogrodu, przy jednoczesnym zachowaniu charakteru budynku.

Arch. fabi architekten

Wnętrze domu zostało gruntownie zmodernizowane. Klatkę schodową ze sztucznego kamienia odświeżono, dodając nowoczesną poręcz, a różnice poziomów podłogi, powstałe po montażu ogrzewania podłogowego, wyrównano stalową okładziną zlicowaną z posadzką. We wnętrzach dominują eleganckie materiały: parkiet z srebrzystej jodły, biała mozaika w łazienkach oraz jasne meble w zabudowie, które kontrastują z czarnymi stalowymi belkami, ramami okien, kuchnią i armaturą. Taka stylistyka przywołuje skojarzenia z minimalizmem, jaki charakteryzuje projekty w nurcie nowoczesna stodoła.

Arch. fabi architekten

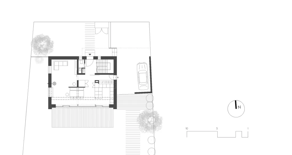
Parter pełni funkcję otwartej strefy dziennej z salonem, jadalnią oraz kuchnią z dodatkowym schowkiem i spiżarnią w zabudowie meblowej. Znalazła się tu także toaleta dla gości, a przestrzeń uzupełniają praktyczne schowki i garderoba, zaprojektowane przy bocznym wejściu. Dzięki temu dom stał się bardziej funkcjonalny i dostosowany do codziennych potrzeb mieszkańców.

Arch. fabi architekten

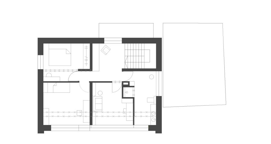
Na piętrze urządzono trzy niezależne sypialnie oraz komfortową rodzinną łazienkę. Piwnica mieści pomieszczenia techniczne i dodatkowe magazyny, co pozwala utrzymać porządek w przestrzeniach mieszkalnych. Modernizacja domu nie tylko poprawiła komfort życia rodziny, ale też nadała mu nowoczesny charakter, który łączy ponadczasową architekturę lat 60. z estetyką współczesnych domów jednorodzinnych.