Fot. Caroline Dethier | Arch. JAVA Architecture
  • Architekt

    JAVA Architecture
  • Fotograf

    Caroline Dethier
  • Lokalizacja

    Les Genettes, Francja

Gruntowna przebudowadomu z lat 70.

W malowniczym regionie Perche, na południu Normandii, francuskie studio Java przeprowadziło spektakularną metamorfozę domu jednorodzinnego z lat 70. XX wieku. Obiekt, zlokalizowany w leśnym otoczeniu, został odziedziczony przez klientów, którzy początkowo rozważali jego rozbiórkę ze względu na liczne mankamenty: brak izolacji, niewielki metraż oraz ciemne, zamknięte wnętrza bez kontaktu z naturą. Marzyli o jasnych, otwartych przestrzeniach i większej liczbie pomieszczeń, w tym dodatkowych sypialni oraz przestronnego salonu.

Fot. Caroline Dethier | Arch. JAVA Architecture

Ekologiczne podejście do projektowania – radykalna renowacja zamiast wyburzenia

Zamiast wyburzać budynek, architekci z biura Java zaproponowali jego kompleksową, ekologiczną przebudowę, zachowując oryginalną konstrukcję murowaną. Największa zmiana zaszła na poziomie bryły – dach dwuspadowy został wydłużony w stronę szczytową, co pozwoliło scalić oddzielone wcześniej bryły domu i garażu w jedną, spójną całość. Dodatkowo zastosowano zewnętrzną, nośną konstrukcję drewnianą, która nadaje budynkowi nowoczesny i naturalny charakter, zbliżony do formy, jaką prezentuje nowoczesna stodoła.

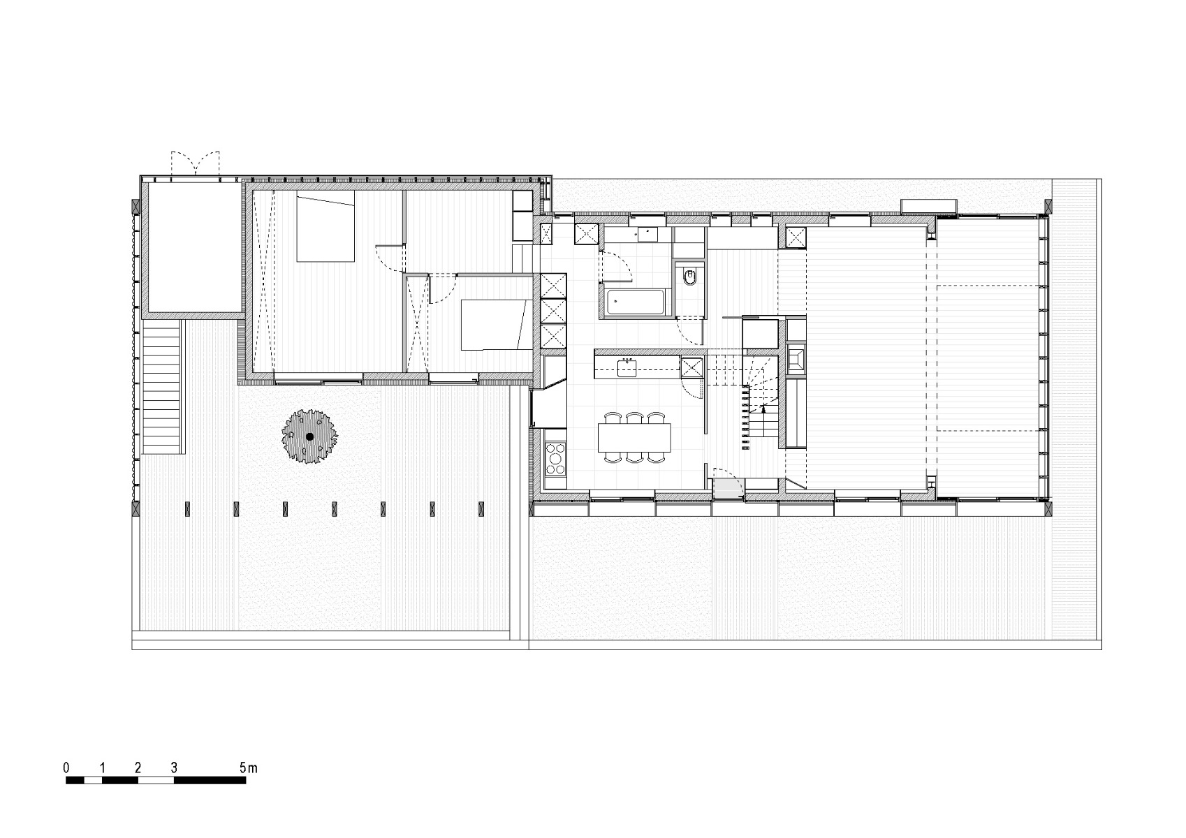
Przestrzeń dopasowana do potrzeb rodziny

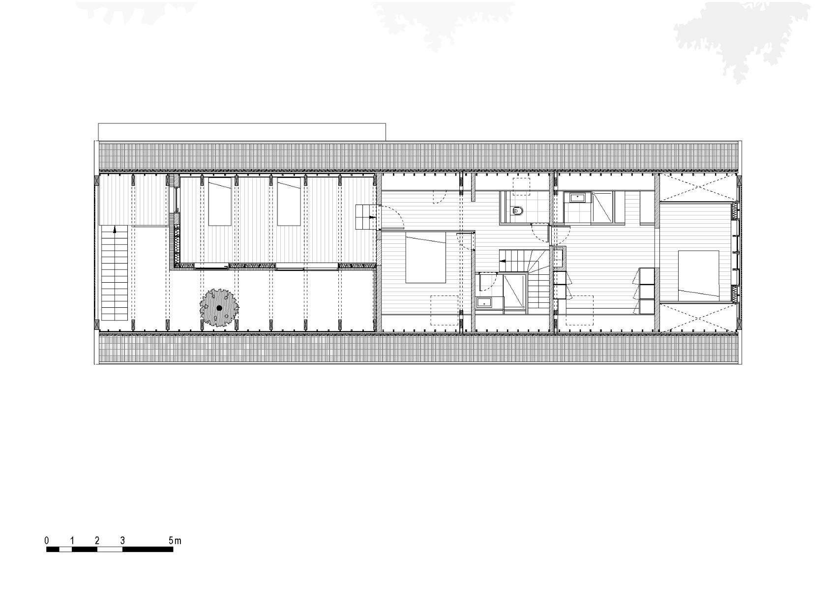
Układ wnętrza został całkowicie przeprojektowany. Od wschodu budynek zyskał kilkumetrowe przedłużenie, które pozwoliło na stworzenie przestronnego salonu z wysokimi przeszkleniami w elewacji szczytowej, otwierającymi wnętrze na otaczający krajobraz. Na piętrze, ażurowe żaluzje z listew drewnianych chronią sypialnię główną przed nadmiernym nasłonecznieniem i zapewniają prywatność.

Z kolei część zachodnia, gdzie wcześniej znajdował się garaż, została nadbudowana i przekształcona w strefę dla dzieci oraz gości. Rozszerzona konstrukcja dachu pozwoliła także na stworzenie przestrzeni zadaszonego tarasu, wypełnionego naturalnym światłem dzięki zastosowaniu szklanych pustaków. Taras płynnie przechodzi w otwartą przestrzeń wypoczynkową, która biegnie wzdłuż całej południowej elewacji domu i stanowi wizualny cokół całego budynku.

Fot. Caroline Dethier | Arch. JAVA Architecture

Detal i funkcjonalność

Szczególną uwagę zwraca południowa ściana dawnej części budynku. Pokryta pionowymi deskami, których podziały odzwierciedlają rytm konstrukcji, elewacja pełni również funkcję użytkową – wbudowano w nią wnęki przeznaczone na składowanie drewna opałowego. To doskonały przykład integracji tradycyjnych materiałów z nowoczesnymi rozwiązaniami funkcjonalnymi.

Projekt domu w regionie Perche to harmonijne połączenie historii z innowacyjnym podejściem do projektowania. To również przykład, jak z typowego domu sprzed dekad można stworzyć energooszczędną, estetyczną i komfortową przestrzeń inspirowaną architekturą, jaką reprezentuje nowoczesna stodoła – bez konieczności rozbiórki i w zgodzie z otaczającą przyrodą.