Fot. Pablo Casals Aguirre | Arch. 2712 / asociados

Ponadczasowanowoczesna STODOŁA

Projekt o nazwie „Galpón House” powstał w Chile. Jak mówią twórcy, dom stworzono jako „neutralny, ponadczasowy Artefakt”. Nie definiuje go czas, ani technologia, ale ikonograficzna spuścizna chilijskiej wsi. Kształt domu jest prosty. Ta nowoczesna architektura to dwupoziomowa, odporna na warunki atmosferyczne szopa z dwuspadowym dachem. Stosuje się ona do wymogów projektowych miejsca w sposób wydajny, niedrogi i wytrzymały.

Fot. Pablo Casals Aguirre | Arch. 2712 / asociados

Działka, na której stanęła nowoczesna STODOŁA, jest duża. Otoczona przez sosny i kończąca się wyraźnym nachyleniem terenu, opadającego w kierunku jeziora. Na tym terenie subtelnie spoczął „Artefakt”. Z daleka przypomina opuszczoną konstrukcję, nie narzucając się swemu ogólnemu otoczeniu, ale raczej starając się być jego częścią. Kształt i zastosowane materiały nawiązują do powszechnych tu wiejskich szop oraz samego kontekstu wsi. Jednocześnie abstrakcyjna forma domu wpływa na swoje bezpośrednie otoczenie, definiując część przednią i tylną działki, oraz organizując swoje najbliższe sąsiedztwo.

Fot. Pablo Casals Aguirre | Arch. 2712 / asociados

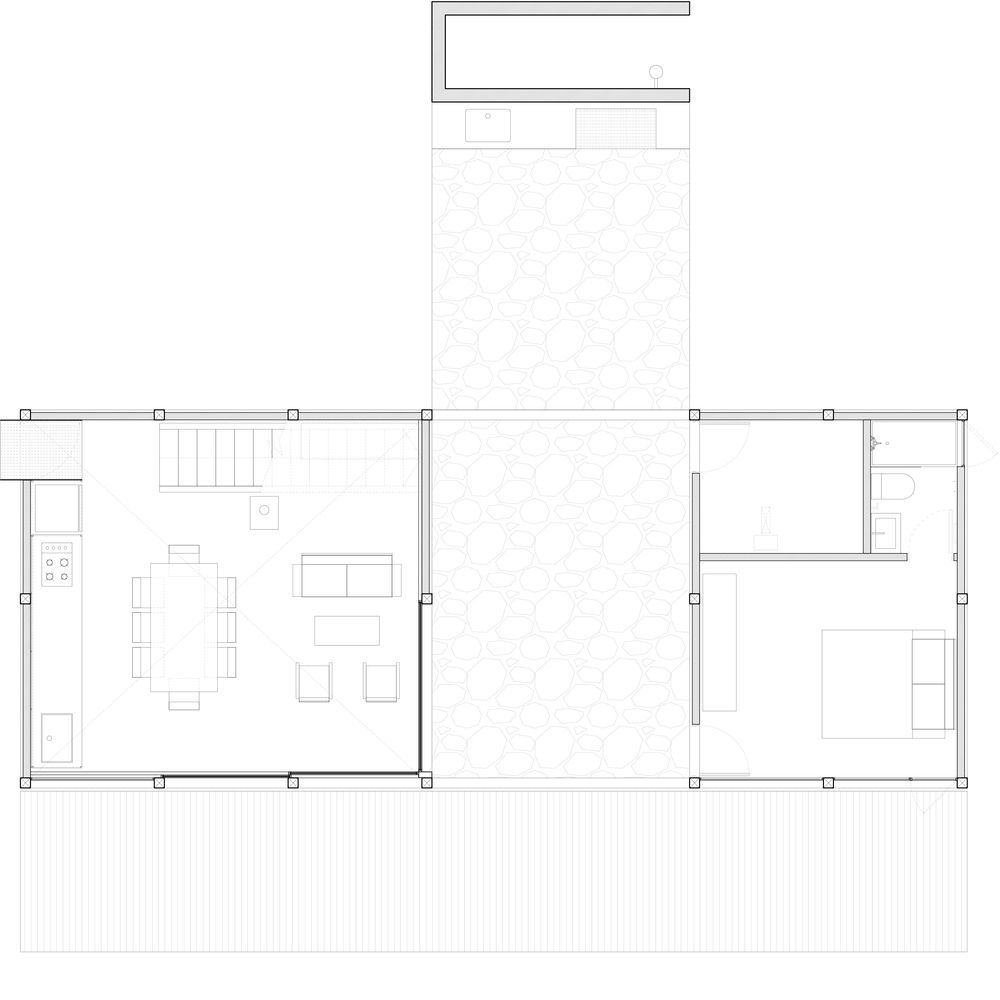
Wewnątrz domu o powierzchni 120 m² powstały dwie przestrzenie puste. Wprowadzają one do projektu powietrze, naturalne światło i szerokość. Jednym z tych miejsc jest osłonięty taras, który znajduje się na parterze. Drugie znajduje się nad przestrzeniami publicznymi domu, tworząc tam dwupoziomową przestrzeń centralną. Wnętrze całego budynku jest schludne, wygodne i przestronne. Jego największą ozdobą są widoki i płynna relacja z naturalnym otoczeniem. Krótko mówiąc, Artefakt wydaje się być precyzyjny, adekwatny i właściwy.