Fot. Jim Stephenson | Arch. Studio Bark

Nowoczesny domekologiczny w sercu Suffolk

„Water Farm” to ekologiczny dom w Suffolk o śmiałej bryle z drewna, inspirowaną lokalnymi budynkami szkieletowymi. Zaprojektowano go, aby zaspokoić potrzeby pięcioosobowej rodziny z pragnieniem życia poza siecią. Rezultatem jest ekscytujący i funkcjonalny dom z pięcioma sypialniami. Geometryczny dach pokryty drewnem jest cechą charakterystyczną domu. Uderzająco kontrastuje z naturalnym otoczeniem.

Fot. Jim Stephenson | Arch. Studio Bark

„Wielu klientów zgłasza się do nas z chęcią przeprowadzki z miasta na wieś, aby być bliżej natury i poprawić jakość swojego życia. To przyjemność, gdy możemy pomóc w realizacji tego celu. Położenie w sąsiedztwie Narodowego Obszaru Krajobrazowego podniosło poprzeczkę. Wyzwaniem dla nas w zakresie planowania obszarów wiejskich było stworzenie wyjątkowego domu rodzinnego, który spełniałby wymogi Paragrafu 84 (Narodowych Ram Polityki Planowania). Jednocześnie miał być wrażliwy na lokalną opinię i lokalną politykę planowania” mówią architekci.

Fot. Jim Stephenson | Arch. Studio Bark

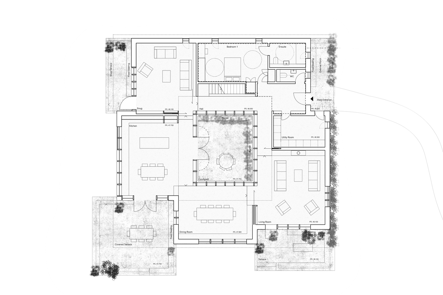
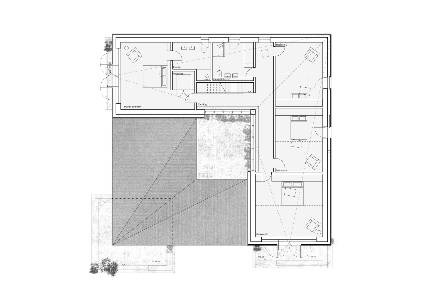
Water Farm to dwupiętrowy dom z 5 sypialniami oraz oddzielnym garażem. Klient chciał, aby przestrzenie były połączone i otwarte, zachowując jednocześnie pewien dystans od siebie. Rozwiązaniem był schodkowy parter rozmieszczony wokół centralnego dziedzińca. Dziedziniec zapewnia wentylację poprzeczną i dużo naturalnego światła. Tworzy również warstwowe widoki na cały dom i na krajobraz poza nim.