Fot. Luis Asín | Arch. Baldó Arquitectura

Zrównoważony domz naturalnymi materiałami

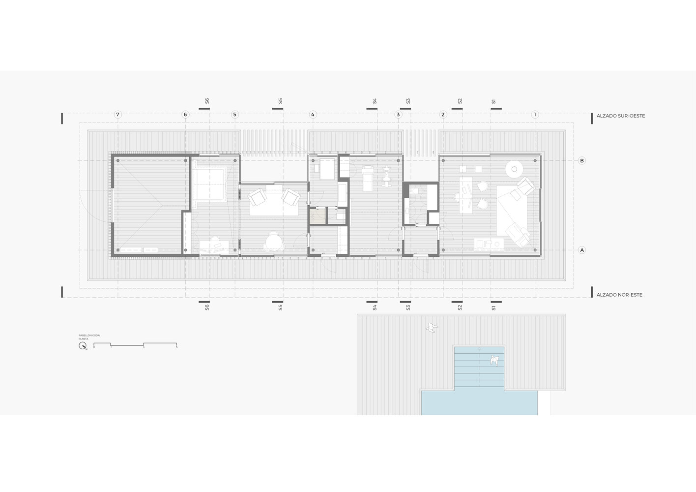
Projekt to architektoniczna odpowiedź na budowę pawilonu gościnnego w wiejskim środowisku Kantabrii, gdzie teren rozciąga się z lekkim spadkiem w kierunku północnym. Dom, basen oraz pawilon znajdują się w południowej części działki, korzystając z klimatu regionu, który stawia duży nacisk na wiatry, deszcz oraz letnie słońce. Pawilon miał być prostym, ale funkcjonalnym domem, którego centralnym elementem jest basen, stanowiący łącznik między istniejącym budynkiem a nową przestrzenią.

Fot. Luis Asín | Arch. Baldó Arquitectura

Projekt obejmuje duży dach, który łączy różne przestrzenie, a pokoje w pawilonie dialogują z naturą, dzięki przezroczystym fasadom. Wnętrza charakteryzują się sufitami wykonanymi jak origami, oddzielającymi przestrzeń od zewnętrznej powłoki i personalizującymi projekt. W pawilonie zastosowano zaawansowane systemy pasywne, takie jak ochrona przed słońcem i deszczem, a także pionowe lamely, które zapewniają prywatność, wentylację krzyżową i naturalne oświetlenie bez narażenia na intensywne promieniowanie słoneczne.

Fot. Luis Asín | Arch. Baldó Arquitectura

Kluczową rolę w tym projekcie odgrywają naturalne materiały, które nadają mu wyjątkowy charakter. Do izolacji zastosowano wełnę mineralną, a przegrody wewnętrzne zostały wykonane z lokalnego drewna sosnowego i płyt OSB pochodzących z recyklingu. Dachowe płyty warstwowe OSB, posiadające rdzeń z włókien drzewnych z recyklingu, oraz bambus stosowany w podłogach, ścianach i sufitach (zarówno wewnątrz, jak i na zewnątrz), podkreślają zrównoważony charakter budynku.