Fot. Jason Mann Photography | Arch. First Light Studio

Optymalne wykorzystanieprzestrzeni

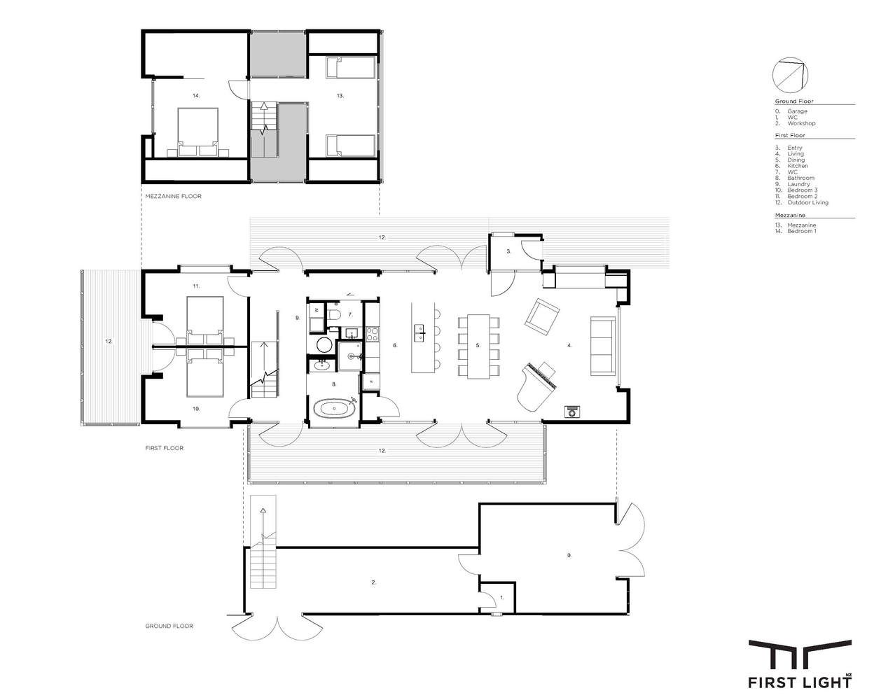
Governors Bay House to przykład nowoczesnej stodoły, zaprojektowanej przez First Light Studio. Dom, usytuowany w malowniczej okolicy Nowej Zelandii, łączy minimalizm z funkcjonalnością, oferując przestronność w kompaktowej formie. Z powierzchnią 207 m², projekt bazuje na dwuspadowym dachu, który maksymalizuje przestronność wnętrz.

Fot. Jason Mann Photography | Arch. First Light Studio

Parter domu wyróżnia się przemyślanym układem – wysokie sufity i otwarte przestrzenie łączą się z mniejszym, przytulnym skrzydłem sypialnym. Racjonalne planowanie zapewnia wygodę, a duże okna wprowadzają naturalne światło, integrując wnętrze z krajobrazem. Dzięki drewno olejowanemu w ciepłych odcieniach czerwieni i żółci, budynek płynnie łączy się z otoczeniem. Drewniana elewacja zewnętrzna przenika do wnętrza, tworząc spójną, naturalną atmosferę.

Fot. Jason Mann Photography | Arch. First Light Studio

Governors Bay House zdobył nagrodę NZIA Canterbury Architecture Awards za harmonijne połączenie rustykalnego charakteru i nowoczesnej funkcjonalności, oferując przestronny, komfortowy dom dla rodziny.