Fot. Sam Hartnett | Arch. Team Green Architects

Ekologiczny dom wbrzozowym zagajniku

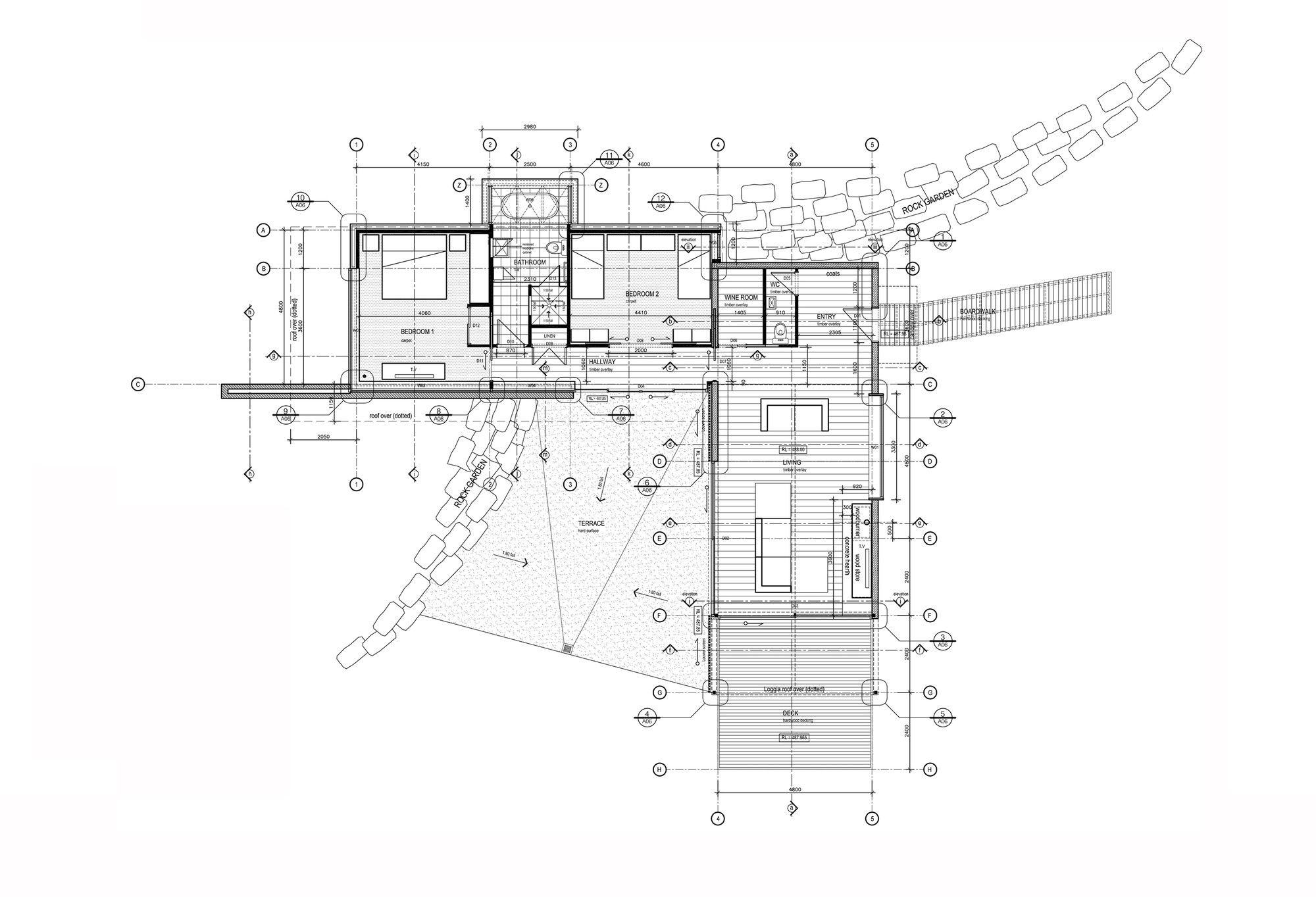
Właściciele posesji marzyli o miejscu relaksu dla rodziny i przyjaciół, które harmonijnie wpisze się w otoczenie przyrody. Tak powstał domek gościnny Wakatipu – komfortowy, ekologiczny budynek o powierzchni 106 m², zaprojektowany przez Team Green Architects. Obiekt składa się z dwóch skrzydeł: części sypialnej oraz przestronnej strefy dziennej. Projekt spełnia wymagania ekologiczne i budowlane, a dzięki lokalizacji jest częściowo ukryty w malowniczym zagajniku brzozy brodawkowatej, co zapewnia prywatność i naturalny mikroklimat.

Fot. Sam Hartnett | Arch. Team Green Architects

Elewacja domku została wykończona pionowo ułożonym drewnem z naturalnego cedru, a dach pokryto trwałą blachą falistą w odcieniu szarości, nawiązującą do tradycyjnych zabudowań gospodarczych regionu. Wnętrza zdobią białe tynkowane ściany, drewniane podłogi oraz meble w naturalnych odcieniach, które nadają przestrzeni ciepło i przytulność.

Fot. Sam Hartnett | Arch. Team Green Architects

Skrzydło sypialne obejmuje sypialnię główną oraz pokój mieszczący do 6 osób, rozdzielone łazienką z przeszklonym dachem, umożliwiającym podziwianie rozgwieżdżonego nieba podczas kąpieli. Część dzienna to otwarta przestrzeń z salonem, jadalnią i kuchnią wzdłuż ściany. Centralnym punktem salonu jest duży, czerwony piec na drewno. W pobliżu strefy dziennej znalazło się miejsce na osobną toaletę i pomieszczenie na wina. Od frontu rozciąga się obszerna, osłonięta loggia z regulowanymi roletami, pozwalającymi kontrolować ilość światła słonecznego. Domek Wakatipu to połączenie nowoczesnej architektury, ekologicznych materiałów i naturalnego krajobrazu, w którym może komfortowo przenocować do 8 osób.