Fot. Greg Richardson | Arch. Omar Gandhi Architects

Minimalistyczny domz cedru

Minimalistyczny dom o nazwie Harbour Heights leży na szczycie wzgórza w sąsiedztwie przystani Inverness  i MacIsaac’s Pond. Miejsce to ma piękny widok na miasto oraz pole golfowe Cabot Links.

Fot. Greg Richardson | Arch. Omar Gandhi Architects

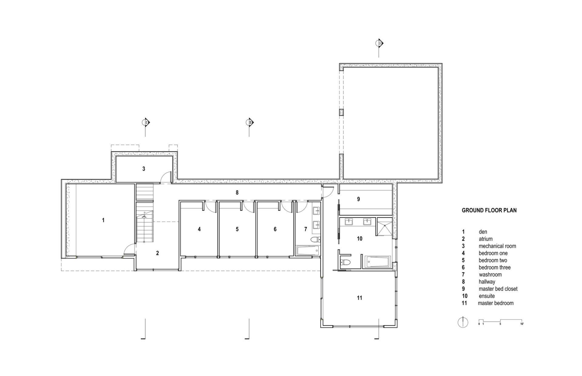
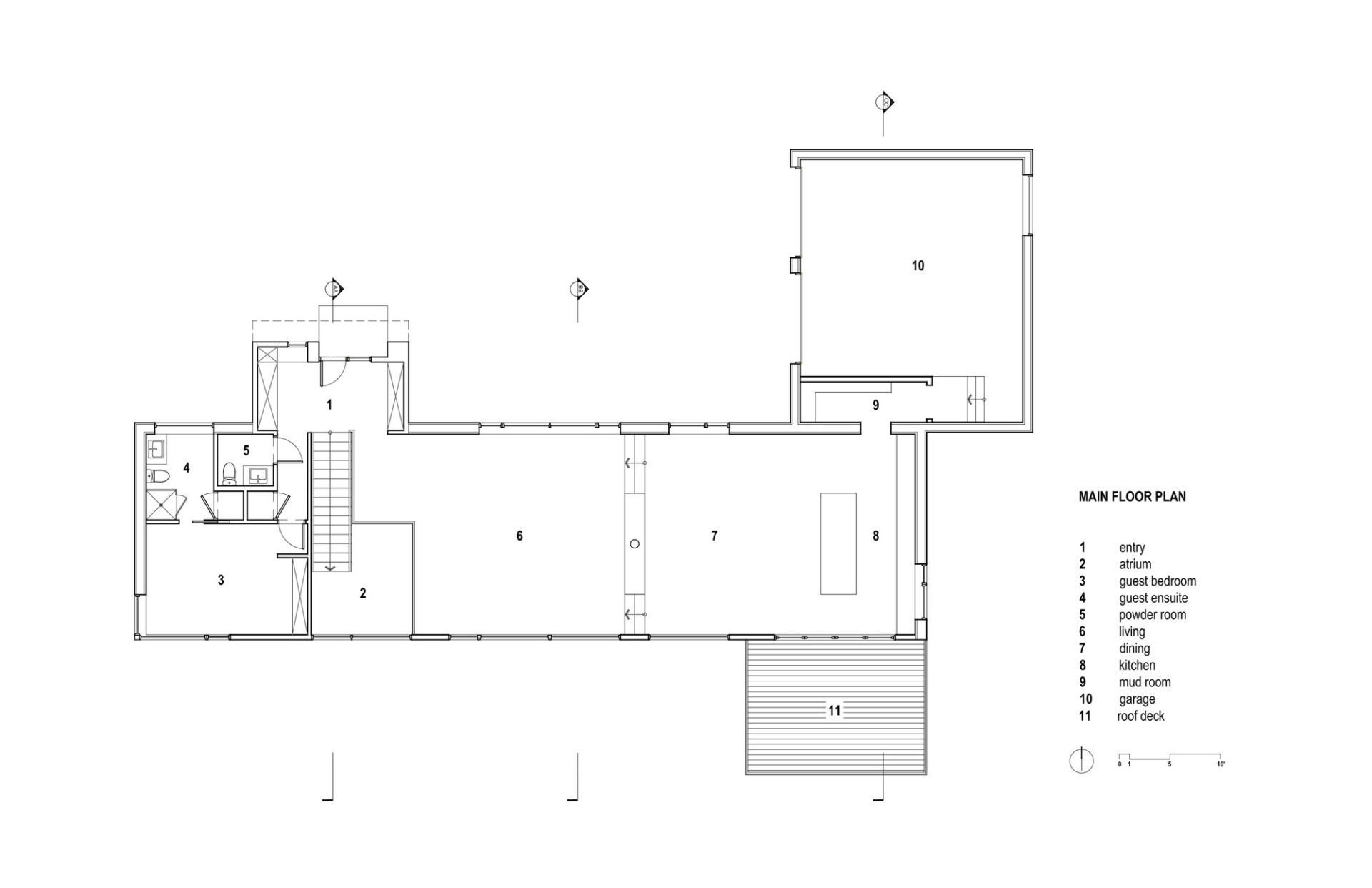
Z drogi głównej budynek wygląda na jednopiętrowy z ułożonym prostopadle garażem. Od strony przeciwnej, czyli od strony zbocza, widać drugi poziom budynku z dużą ilością przeszkleń i cedrowym wykończeniem. Wejście znajduje się na poziomie wyższym, gdzie ulokowano też główną przestrzeń dzienną, czyli salon, jadalnię i kuchnię. Główna klatka schodowa otoczona jest szkłem, a na niższym poziomie znalazły się sypialnie i tzw. pokój rodzinny. Sypialnia główna ma ogromne przeszklenia z trzech stron pomieszczenia, dzięki czemu oferuje niezwykłe widoki. Pokój dzieci utrzymany jest w jasnej, wesołej kolorystyce, które odbijają się w nowoczesnym wykończeniu cedrowym domu. Przestrzeń dzienna i jadalnia oddzielone są różnicą poziomów i kominkiem. Komin paleniska wyraźnie wyróżnia się w przestrzeni, sięgając wysokiego sufitu.

Fot. Greg Richardson | Arch. Omar Gandhi Architects

Obicie zewnętrzne to czerwony cydr, wykorzystany w trzech formach na dachu oraz w części górnej i dolnej nowoczesnej stodoły.