Fot. Ruben Beilby | Arch. Busch & Takasaki Architekten, Ann-Kathrin Lepke

Minimalizmi tradycja

Dom mieszkalny w Isenbüttel niedaleko Brunszwiku swoim rozmiarem, sylwetką i kolorystyką płynnie integruje się z otaczającą dzielnicą. Jednocześnie dom wyróżnia się minimalistycznym językiem projektowania i dużymi otworami w jednorodnej fasadzie, nadając mu wyrazisty charakter w skandynawskim stylu.

Fot. Ruben Beilby | Arch. Busch & Takasaki Architekten, Ann-Kathrin Lepke

Nawiązanie do lokalnej tradycji budowlanej folwarków i stajni widoczne jest w zastosowaniu konstrukcji drewnianej z dwuspadowym dachem. Strona domu od strony ulicy sprawia wrażenie zamkniętej, ponieważ nacisk położono na przestronne wnętrze i ogród. Aby spełnić to pragnienie, opracowano charakterystyczną lukarnę, zapewniając dodatkowe światło w salonie poniżej. Umożliwiło to przyjemną cyrkulację powietrza w miesiącach letnich poprzez efekt komina.

Fot. Ruben Beilby | Arch. Busch & Takasaki Architekten, Ann-Kathrin Lepke

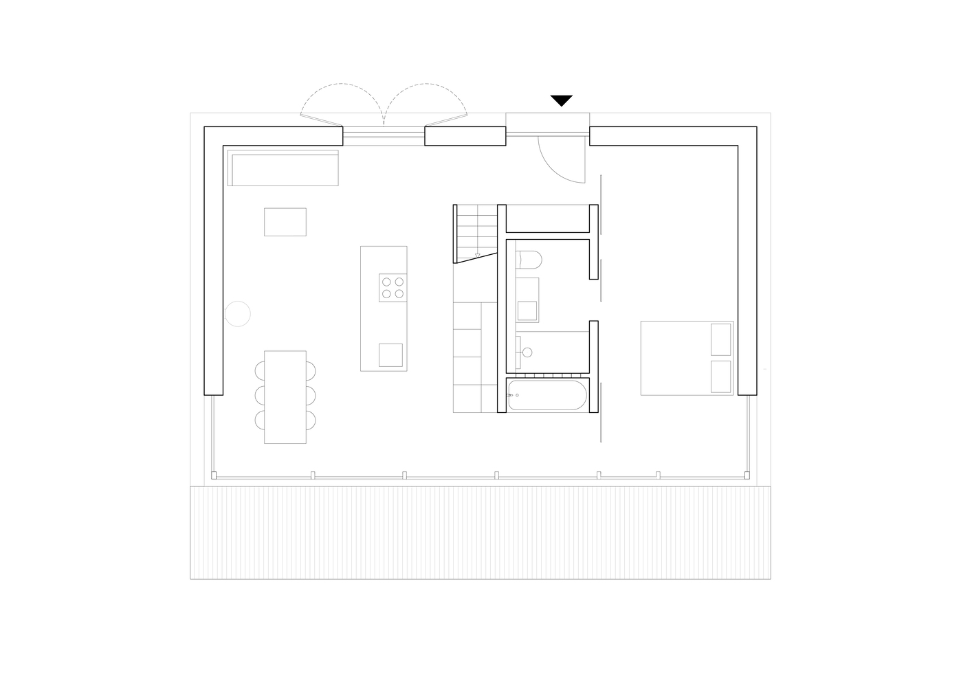
Centralnie położony rdzeń z łazienką, kuchnią i klatką schodową na pierwsze piętro skutecznie wyznacza strefy dzienne. Przestrzenie te można oddzielić za pomocą drzwi przesuwnych, eliminując potrzebę stosowania korytarzy. Z salonu, otwartej kuchni, sypialni i wanny roztacza się szeroki, otwarty widok na ogród. Na piętrze znajduje się doświetlony lukarną pokój gościnny z łazienką. Pionowa okładzina z lokalnego drewna modrzewiowego przechodzi na dach z powłoką cynkową na rąbek stojący.

Fot. Ruben Beilby | Arch. Busch & Takasaki Architekten, Ann-Kathrin Lepke

Wewnątrz tej nowoczesnej stodoły w dalszym ciągu skupiono się na podstawowych materiałach, w tym brzozie do zabudowy mebli i schodów, otynkowanych ścianach z gliny, polerowanym jastrychu i aluminium w kuchni. Dom został w dużej mierze zbudowany przez rodzinę klienta, przy znaczącym udziale ich córki Anni, która nadzorowała projekt.