Fot. Jussi Tiainen | Arch. Hirvilammi Architects

Dom architektaw Finalndii

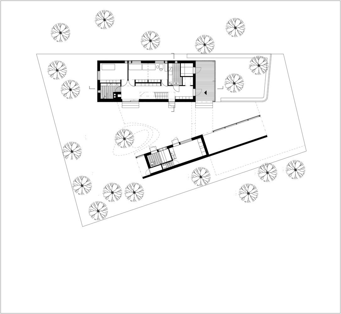
Dom o nazwie “House H / a’ House” to przykład doskonałego połączenia architektury nowoczesnej i funkcjonalnej. Został zaprojektowany przez architekta dla jego własnej rodziny, co pozwoliło na dopracowanie każdego szczegółu. Budynek w stylu nowoczesnej stodoły znajduje się w malowniczej, tradycyjnej dzielnicy mieszkalnej Kivistonmaki w Finlandii. Kształt wąskiej działki zdeterminował formę domu oraz jego rozmieszczenie, a umiejscowienie okien i drzwi uwzględniło zarówno widoki, jak i ruch słońca.

Fot. Jussi Tiainen | Arch. Hirvilammi Architects

Nowoczesna stodoła została wykonana z naturalnych materiałów idealnie harmonizujących z otoczeniem, a jednocześnie odzwierciedlających indywidualny gust architekta. Dom składa się z dwóch części: budynku głównego oraz przybudówki. W głównym budynku, wbrew tradycji, sypialnie i pomieszczenia gospodarcze znajdują się na parterze, podczas gdy przestrzeń dzienna – salon – została umieszczona na piętrze, by maksymalnie wykorzystać dostępne widoki.

Fot. Jussi Tiainen | Arch. Hirvilammi Architects

Przybudówka pełni funkcję biura, pokoju gościnnego oraz mieści ogrzewaną drewnem saunę. Pomiędzy budynkami stworzono prywatny, zabudowany ogród, który stanowi idealne miejsce do odpoczynku. Całość projektu charakteryzuje wysoki standard wykonania, osiągnięty dzięki ścisłej współpracy z doświadczonymi rzemieślnikami i dostawcami materiałów.

Fot. Jussi Tiainen | Arch. Hirvilammi Architects

Realizacja nowoczesnej stodoły była dla architekta nie tylko szansą na stworzenie wymarzonego domu, ale także okazją do zdobycia nowych doświadczeń i współpracy z najlepszymi specjalistami. Ten projekt to idealne połączenie funkcjonalności, estetyki oraz harmonii z otoczeniem.