Fot. Joe Fletcher Photography | Arch. Feldman Architecture

Rezydencja na wzgórzu z otwartymi przestrzeniamii prywatnymi zakątkami

Dom Healdsburg I zapewnia jednocześnie prywatność wiejskiej posiadłości, jak i przestronne wnętrza idealne do wspólnej rozrywki.

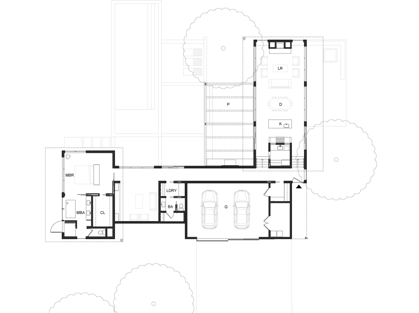
Projekt domu opracowali architekci z firmy Feldman Architecture. Cała powierzchnia budynku to blisko 270 metrów kwadratowych. Wyższa część domu biegnie wzdłuż grzbietu wzgórza. Pod wysokimi sufitami urządzono duży salon, wypełniony światłem i widokami, które wchodzą do wnętrza przez przeszklone ściany. Cztery ogromne panele szklane otwierają się na boki. Przekształca to tę przestrzeń w zewnętrzny pawilon, którego betonowe podłogi przechodzą na patio przy basenie oraz na taras z miejscem do grillowania. Zorganizowane w ten sposób przestrzenie zewnętrzne są idealne na każdą pogodę.

Fot. Joe Fletcher Photography | Arch. Feldman Architecture

Projekt powstał dla osób, które kochają rozrywkę. Dlatego salon połączono z małą, ale funkcjonalną kuchnią. W budynku jest też jednak jeszcze kuchnia robocza, gdzie można dyskretnie przygotowywać posiłki i odnosić brudne naczynia. Sufit w salonie wykończono perforowanymi panelami, które pochłaniają dźwięk podczas większych imprez. Wizualne granice w tym przestronnym pomieszczeniu stworzono stosując subtelne detale kamienne w podłodze.

Fot. Joe Fletcher Photography | Arch. Feldman Architecture

Drugie skrzydło domu ciągnie się w kierunku północnym i jest ono częścią bardziej prywatną. Przechodzi ono przez garaż do pokoju medialnego, który otwiera się na basen, a na samym końcu znajduje się sypialnia główna z łazienką. Potężne szklane panele w sypialni można również otworzyć, by w dowolnej chwili połączyć wnętrze z otoczeniem. Kilka kroków dalej od głównego domu urządzono jeszcze domek dla gości, który zapewnia przybyszom dodatkową prywatność.

Fot. Joe Fletcher Photography | Arch. Feldman Architecture

Barwiona na ciemno cedrowa elewacja oraz niskie ściany budynku wpisują cały projekt w jego naturalne otoczenie. Dom jest skromną, ale przemyślaną odpowiedzią zarówno na miejsce, jak i konkretne potrzeby właścicieli.