Architekt
Fotograf
Lokalizacja
Bruksela, Belgia
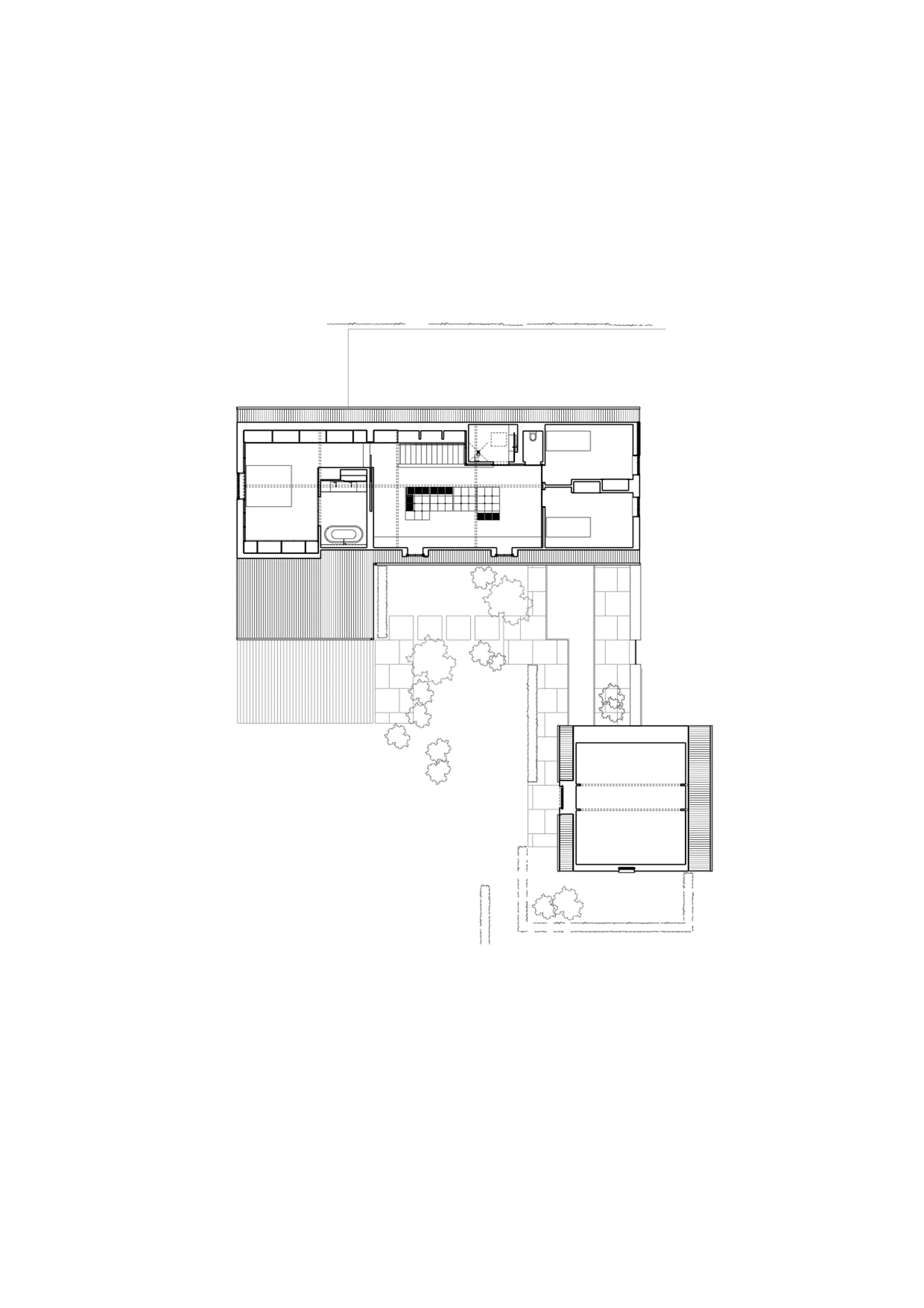
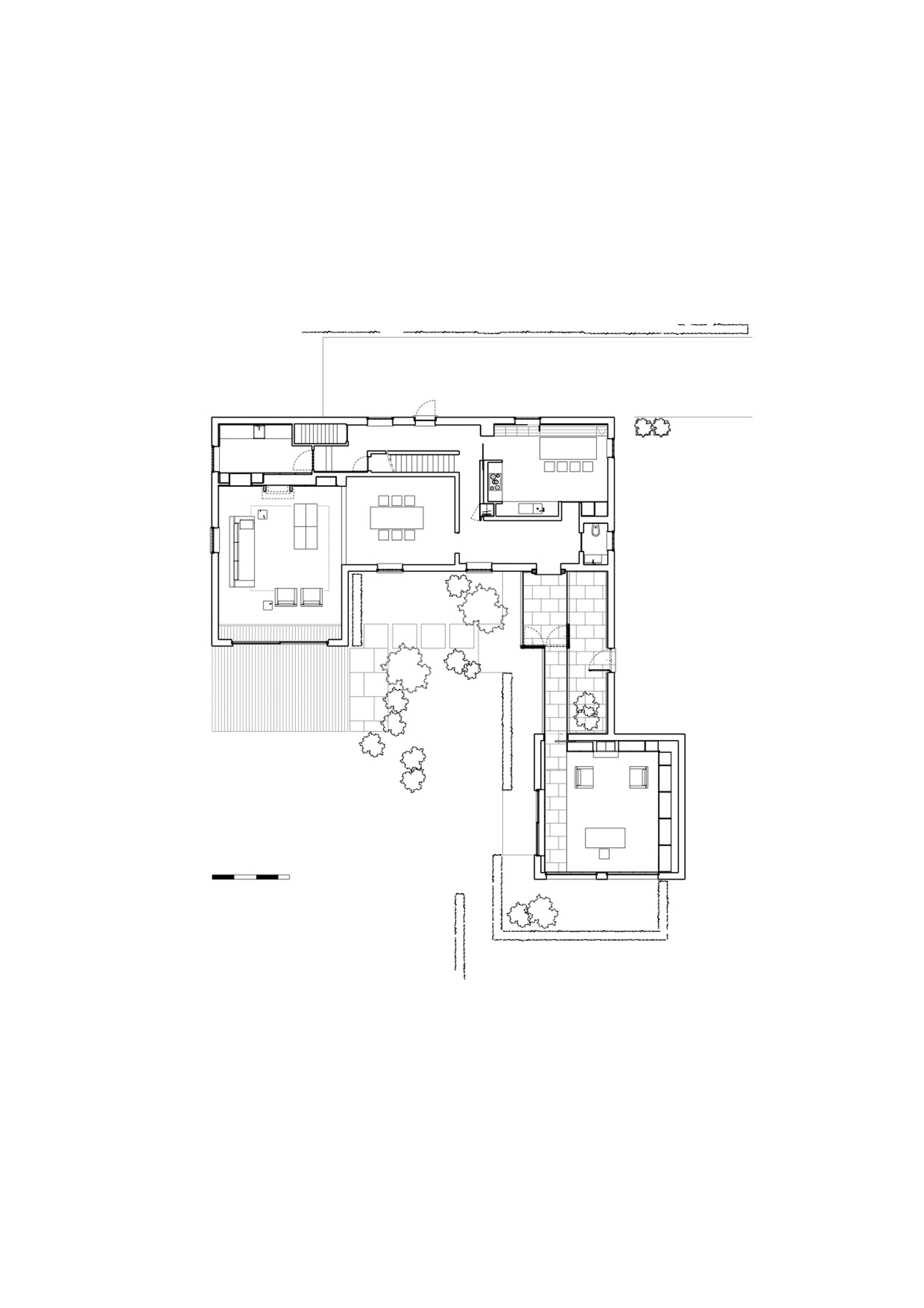
Ceglany raj dla rodziny
Projekt House GL to przebudowa i modernizacja starego, wiejskiego domku z cegły, który powstał w latach 70-tych na przedmieściach Brukseli. Elewacja domu została odnowiona, ale architekci zachowali ją w takiej formie, w jakiej była w swych najlepszych czasach. Wykonano ją bowiem z materiałów o wysokiej jakości, a sama konstrukcja była stabilna i bezpieczna. Powstało natomiast nowe połączenie między miejscem mieszkalnym a miejscem pracy, które w nowym projekcie połączył przeszklony korytarz.Wnętrze zostało zaprojektowane w sposób niezwykle czysty i minimalistyczny, który tworzy spokojną atmosferę i prywatność całego domu. Stonowane barwy i wysokiej jakości materiały świetnie harmonizują z otoczeniem domu i innymi elementami budynku.