Fot. Tom Alarcón | Arch. o2 Arquitectos

Dom inspirowanytradycyjnymi szopami

Obok stadniny koni, pośród gaju orzechowego i na wzgórzu, stoi dom Botafogo, położony w Romeral, w regionie Maule, w Chile. Zbudowany w całości z drewna, dom ten został zainspirowany starymi szopami z południowego Chile, a jednocześnie dostosowany do potrzeb współczesnego życia i wymagań klienta. Między innymi musiał być zarówno gościnny, jak i praktyczny, mieszcząc albo jednego mieszkańca, albo okazjonalnie całą rodzinę z dziećmi i wnukami.

Fot. Tom Alarcón | Arch. o2 Arquitectos

Na podstawie tego założenia powstał projekt, który obejmuje duży centralny punkt dostępu, który pełni funkcję holu wejściowego, pomieszczenia gospodarczego i zadaszonego tarasu, a także łączy dwa skrzydła domu. Ten punkt dostępu można otworzyć na zewnątrz z obu stron przez duże drewniane drzwi przesuwne, które rozciągają się na całą jego długość, tworząc w ten sposób pełne połączenie z otaczającą przyrodą i widokami.

Fot. Tom Alarcón | Arch. o2 Arquitectos

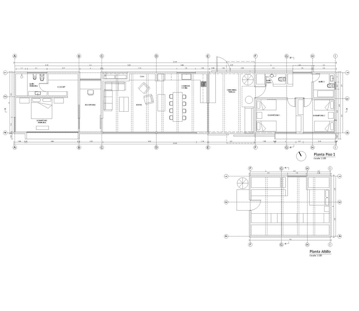
Układ jest w większości na jednym piętrze, gdzie znajdują się wspólne przestrzenie (salon, jadalnia i zintegrowana kuchnia), prowadzące do apartamentu głównego z biurem i garderobą. Po drugiej stronie punktu dostępu znajduje się część gościnna, która obejmuje dwie sypialnie, dwie łazienki i antresolę dostępną z pomieszczenia gospodarczego. Cały projekt jest opracowany w jednej dużej, czystej bryle bez okapów, przeciętej blokami, które tworzą duże okna sięgające do wysokości kalenicy, co pozwala na jasne i przestronne wnętrza.

Fot. Tom Alarcón | Arch. o2 Arquitectos

Naturalne materiały grały dużą rolę w tym domu. Zaprojektowany w całości z drewna, jego struktura i okładzina zewnętrzna są wykonane z lokalnie impregnowanej sosny. Wewnątrz na ścianach znajduje się surowe drewno sosnowe, a na suficie heblowane drewno sosnowe typu pióro-wpust. Montaż zewnętrznej okładziny drewnianej jako wentylowanej elewacji zapewnia lepszą izolację termiczną i ochronę przed wilgocią, wydłużając tym samym żywotność domu.