Fot. NACASA & PARTNERS | Arch. AE5 partners
  • Lokalizacja

    Kaga-shi, Japonia

Współczesna interpretacjajapońskiej Kury

W otoczeniu zielonych, porośniętych lasem gór i wąskich tarasów pól ryżowych, przeciętych krystalicznym górskim strumieniem, znajduje się malownicza osada Kashiwano-machi w japońskim mieście Kaga. To właśnie tutaj powstał projekt House in Kaga, ulokowany na niezagospodarowanej przestrzeni przy drodze krajowej. Architekci z pracowni AE5 partners stanęli przed wyzwaniem: jak zaprojektować współczesny dom, który wpisze się w tkankę miasta budowanego powoli przez wieki – rękami ludzi i siłami natury? Odpowiedzią okazała się forma, która czerpie z lokalnej tradycji i harmonijnie łączy ją z nowoczesnością, przypominając minimalistyczną nowoczesną stodołę.

Fot. NACASA & PARTNERS | Arch. AE5 partners

Inspiracją dla projektu stała się Kura – tradycyjny japoński magazyn, będący nieodłącznym elementem miejskiej zabudowy w Kaga. Każdy dom posiada swoją Kurę – drugorzędną, kompaktową bryłę, która nie tylko pełni funkcję użytkową, ale też osłania prywatność mieszkańców. House in Kaga przyjął formę nowoczesnej interpretacji Kury – budynku wciśniętego pomiędzy główny dom rodzinny a ruchliwą drogę. Dzięki temu wykorzystano lokalną typologię, zachowując proporcje i estetykę tradycyjnej architektury japońskiej, przy jednoczesnym spełnieniu współczesnych potrzeb użytkownika – samotnej kobiety, dla której dom miał być prywatnym azylem i odpowiedzią na ograniczenia przestrzeni.

Fot. NACASA & PARTNERS | Arch. AE5 partners

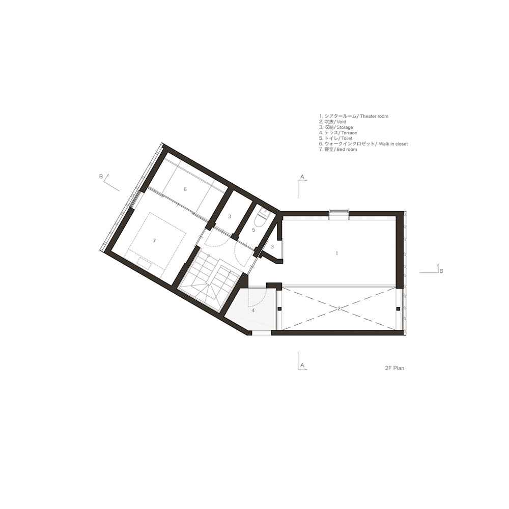
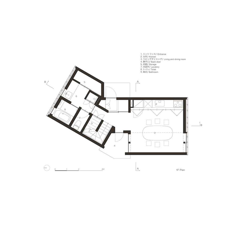
Proces projektowy rozpoczął się od analizy objętościowej, której celem było stworzenie równowagi pomiędzy nowym budynkiem a jego naturalnym i urbanistycznym otoczeniem. Kluczowym założeniem było ukształtowanie dziedzińca w formie szewronu, zwanego w Japonii planem Kunoji. Ta forma pozwoliła nie tylko oddzielić dom od zgiełku drogi, ale też stworzyć prywatny ogród po stronie północno-zachodniej – zgodnie z życzeniem inwestorki. Efektem tego procesu jest projekt, który nie tylko wypełnia przestrzeń pomiędzy budynkami, ale także buduje architektoniczny dialog z otoczeniem, stając się integralną częścią miejskiej struktury Kaga.