Fot. RAPHAËL THIBODEAU | Arch. L'Abri

Energooszczędna architekturainspirowana tradycją

W kanadyjskiej prowincji Quebec powstał wyjątkowy dom pasywny o wysokim standardzie energetycznym. Projekt, zrealizowany przez uznaną pracownię architektoniczną L’Abri we współpracy z firmą Construction Rocket, nawiązuje do lokalnej architektury oraz idei zrównoważonego budownictwa. Ten energooszczędny budynek jednorodzinny, przeznaczony dla czteroosobowej rodziny, został zaprojektowany zgodnie z rygorystycznymi wytycznymi standardu Passive House (Passivhaus), który zyskuje coraz większą popularność w Ameryce Północnej. Co więcej, projekt uzyskał prestiżowe certyfikaty LEED Platinum i PHIUS 2018+, a także został trzecim domem w Quebecu z oficjalnym certyfikatem Passive House.

Fot. RAPHAËL THIBODEAU | Arch. L'Abri

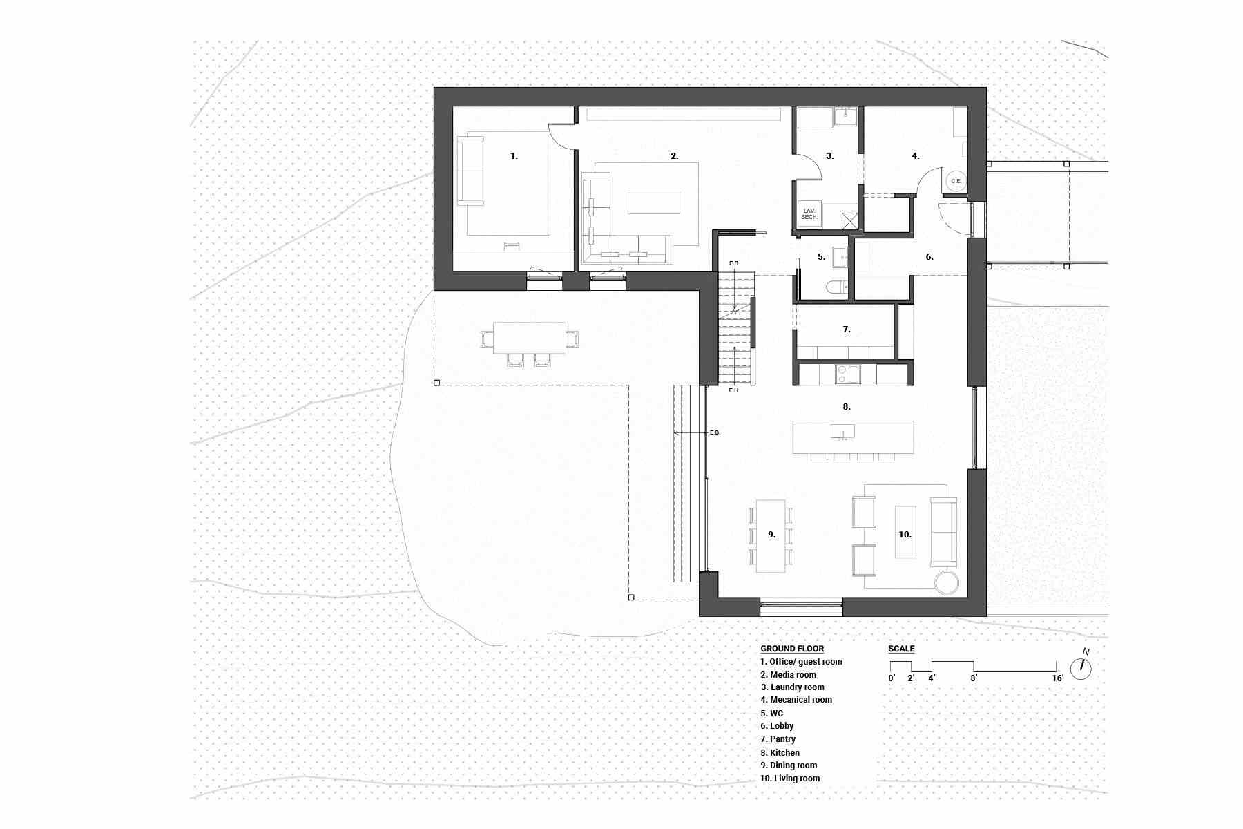
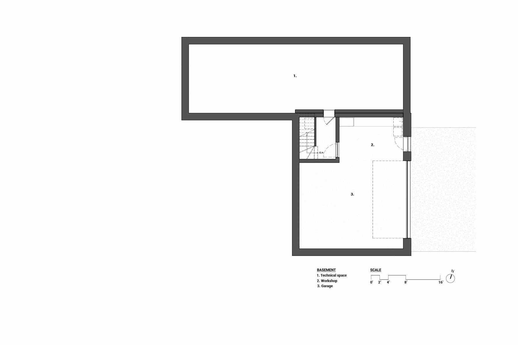
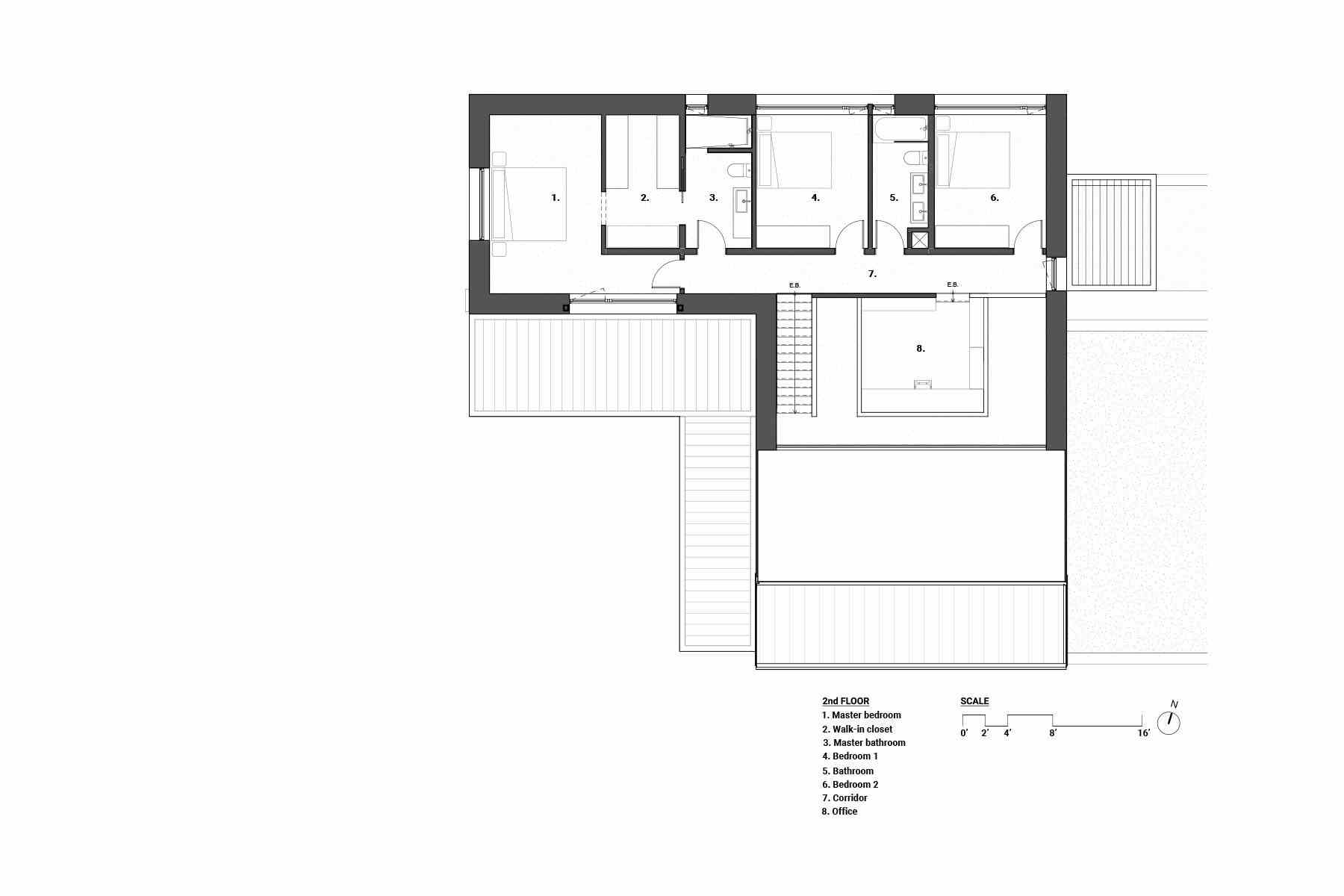
Zlokalizowany na południowym zboczu Mont Gale w miejscowości Bromont, Dom Pasywny Saltbox o powierzchni 288 m² został wkomponowany w naturalny krajobraz działki o powierzchni 2,5 akra. Trójpoziomowa konstrukcja na pochyłym terenie sprzyja efektywnemu wykorzystaniu energii słonecznej, jednocześnie oferując panoramiczne widoki. Projekt bazuje na historycznym stylu saltbox, charakterystycznym dla XVII-wiecznej Nowej Anglii i wschodniej Kanady. Bryła budynku z dwuspadowym i jednospadowym dachem przypomina klasyczną nowoczesną stodołę, łącząc w sobie estetykę przeszłości z innowacyjną technologią pasywnego budownictwa.

Fot. RAPHAËL THIBODEAU | Arch. L'Abri

Standard Passivhaus, rozwinięty w Niemczech ponad 30 lat temu, opiera się na prostych, lecz skutecznych zasadach: szczelnej i mocno izolowanej obudowie budynku, wydajnym systemie wentylacji z odzyskiem ciepła oraz optymalnym ustawieniu budynku względem stron świata. Dzięki tym rozwiązaniom, domy pasywne osiągają nawet 80% oszczędności energii na ogrzewaniu i chłodzeniu. W przypadku Saltboxa z Quebecu, zastosowano również drewnianą elewację, celulozową izolację i okna z potrójnymi szybami, co nie tylko zwiększyło wydajność cieplną, ale również ograniczyło śladowy wpływ budynku na środowisko.