Arch. Studio Nauta

Połączenie tradycjiz industrialnym stylem

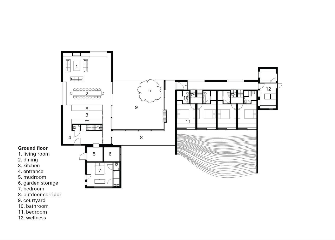
Nowoczesna stodoła o nazwie House in the Woods łączy elegancję z industrialnym charakterem, zachowując jednocześnie tradycyjny kształt budynku. Willa składa się z części dziennej i sypialnej, połączonych otwartym korytarzem, który pozwala na płynne przejście między przestrzeniami. Stare szopy na działce zostały odnowione i zintegrowane z nową konstrukcją, tworząc spójną całość z otaczającym lasem, który przenika do wnętrza domu. Duże okna sięgające podłogi oraz ściana z ażurowej cegły podkreślają bliską więź między przestrzenią wewnętrzną a naturą.

Arch. Studio Nauta

Dzięki przemyślanej niskiej i podzielonej formie nowoczesna stodoła harmonijnie wpisuje się w istniejącą architekturę oraz krajobraz. Korytarz zewnętrzny wytycza granice podwórza, a osłonięta przestrzeń z drzewem wyrastającym z betonowej posadzki tworzy centralny punkt domu. Dach z matowym wykończeniem współgra z otoczeniem, podkreślając zmieniające się kolory lasu w ciągu dnia. Projekt pozwala zachować prywatność mieszkańców wobec sąsiedztwa, jednocześnie zapewniając komfortową przestrzeń wspólną.

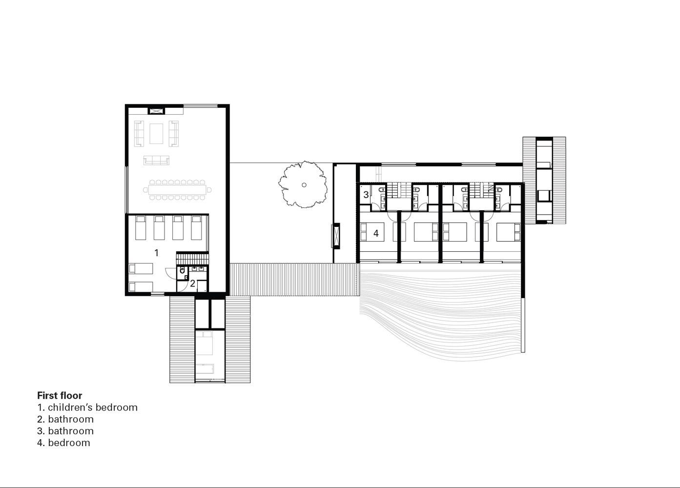
Arch. Studio Nauta

Wnętrze domu zostało zaprojektowane z myślą o wielopokoleniowej rodzinie – nowoczesna stodoła mieści 10 sypialni i 24 łóżka. Szeroki korytarz łączy osiem sąsiadujących ze sobą sypialni, a otwarte klatki schodowe zapewniają przejrzysty układ wnętrza. Każda sypialnia ma wyjątkowy widok na las, a jasna konstrukcja wnętrza ułatwia orientację w przestrzeni, jednocześnie tworząc komfortowe warunki do spędzania czasu wspólnie i prywatnie.